Chancellors says ..
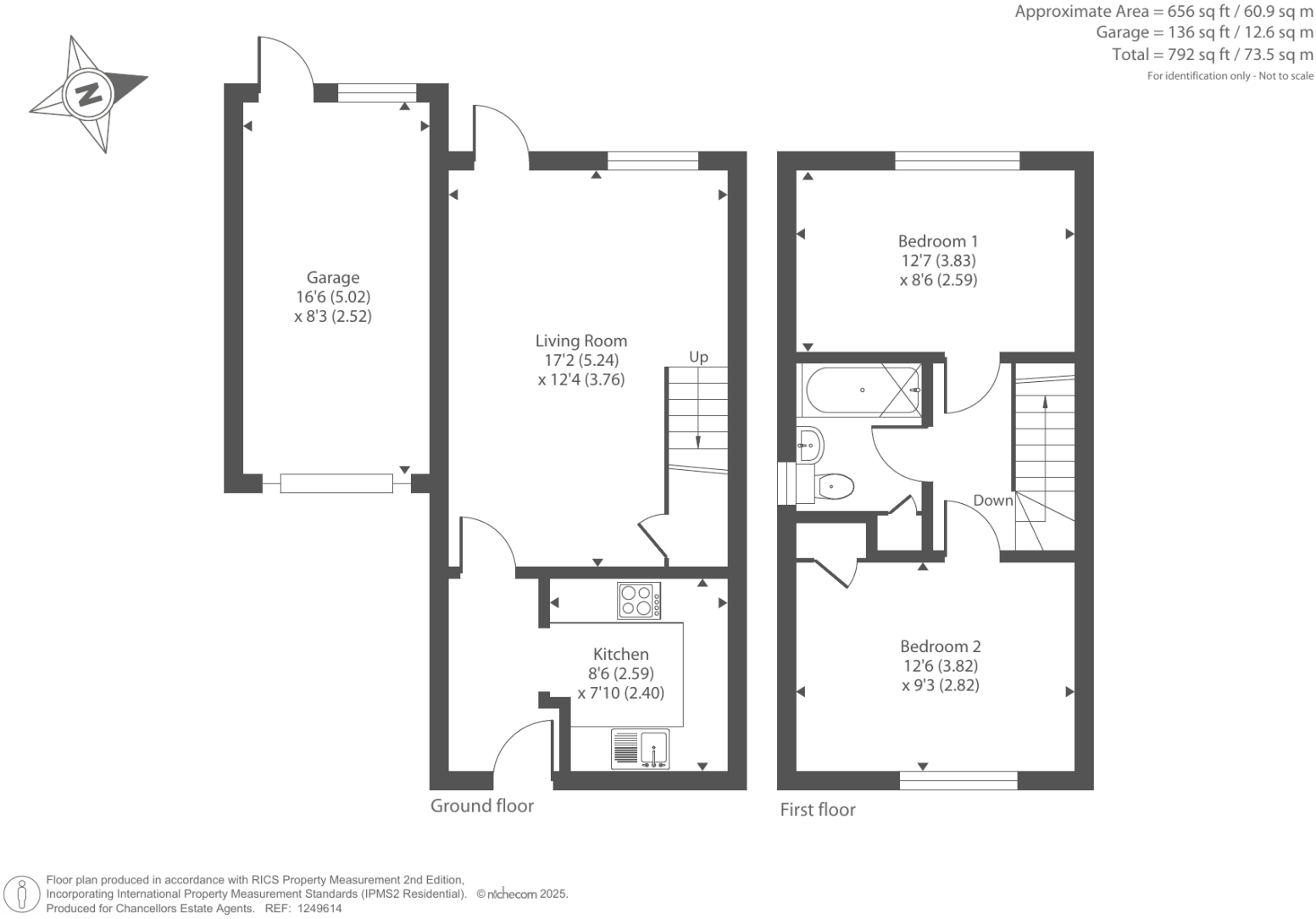
Chancellors present to market this well present two bedroom semi detached home. The property benefits from kitchen and living room, two bedrooms with family bathroom, driveway parking, private garden and garage. No Onward Chain.
Property Oracle says ..
The property is located in Thatcham, Berkshire, a town in West Berkshire with good transport links to Newbury and Reading. The nearby Thatcham train station provides access to Great Western Railway services. Several primary and secondary schools are within a reasonable distance, including the Outstanding-rated Kennet School. This suggests a convenient location for families. The property itself appears to be in reasonably good condition based on the provided photos. While some minor cosmetic updates might enhance its presentation, there are no visible signs of significant damage or disrepair. The property includes a small, enclosed rear garden, offering some outdoor space. Considering the property’s size (638 sqft), condition, and the inclusion of a garden, the list price of £325,000 seems slightly higher than the average price per square foot for the area (£362). However, the average property size in the area is considerably larger (951 sqft), and the location’s proximity to amenities and schools might justify a slightly higher price per square foot. Nearby comparable properties show a range of prices, suggesting some variability in the market.
Therefore, we give this property 7 / 10. *Disclaimer: This is our option and does constitute a recommendation or financial advice. Do your own research. *
- Price
- 7
- Condition
- 7
- Location
- 8
- Land
- 6
- Bedrooms
- 2
- Bathrooms
- 1
- Sqft (est)
- 638.00
- Lot (est)
- 792.00
The heatmap indicates the level of crime in the area. The color of the heatmap indicates the crime severity and recency.
Metrics Year-on-Year
- Average area value
- 525,000.00 £Increased by 70.84 %
- Est sale value
- 301,136.00 £Increased by 10.02 %
- Average area rental value
- 1,050.00 £/moDecreased by 53.02 %
- Est letting value
- 0.00 £/moDecreased by 100.00 %
- Est rental Yield
- 2.40 %Decreased by 72.51 %
- Crime Rate
- 7.00 %Unchanged by 0.00 %
Agent Activity
Chancellors created the listing.
Nearby Schools
| Name | Type | Ofsted | Distance |
|---|---|---|---|
| Spurcroft Primary School | Community School | Good | 0.07 KM |
| Kennet School | Academy Converter | Outstanding | 0.72 KM |
| Francis Baily Primary School | Academy Converter | 1.07 KM | |
| Thatcham Park Cofe Primary | Voluntary Controlled School | Good | 1.17 KM |
| Central Family Hub - Thatcham | Children's Centre | 1.44 KM |
Images
Nearby Streets
| Name | Average Price | Average Sqft | Distance |
|---|---|---|---|
| Oak Tree Road | £ 435,000 | 0 | 0.00 KM |
| Coombe Square | £ 369,950 | 0 | 0.00 KM |
| Station Road | £ 193,000 | 0 | 0.00 KM |
| Kennet Close | £ 0 | 0 | 0.00 KM |
| Bluecoats | £ 254,000 | 0 | 0.00 KM |
Nearby Transport
| Name | NLC | TLC | Distance |
|---|---|---|---|
| Thatcham | 3152 | THA | 1.28 KM |
| Newbury Racecourse | 3071 | NRC | 5.95 KM |
| Newbury | 3074 | NBY | 7.61 KM |
| Midgham | 3159 | MDG | 8.44 KM |
Nearby Listings
| Address | Price | Type | Score | Distance |
|---|---|---|---|---|
| Thatcham, Berkshire, RG19 | £ 325,000 | BUY | 7 / 10 | 0.00 KM |
| Beech Walk, Thatcham, Berkshire, RG19 | £ 410,000 | BUY | 8 / 10 | 0.12 KM |
| Beech Walk, Thatcham | £ 210,000 | BUY | 6 / 10 | 0.14 KM |
| Beech Walk, Thatcham | £ 250,000 | BUY | 6 / 10 | 0.14 KM |
| Longcroft Road, Thatcham, Berkshire, RG19 | £ 350,000 | BUY | 6 / 10 | 0.14 KM |
Nearby Properties
| Address | Price | Distance |
|---|---|---|
| 39 Beech Walk | £ 357,000 | 0.14 KM |
| 31 Beech Walk | £ 281,000 | 0.14 KM |
| 2 Beech Walk | £ 350,000 | 0.14 KM |
| 29 Beech Walk | £ 340,000 | 0.14 KM |
| 1 Beech Walk | £ 391,000 | 0.14 KM |