School Lane, Poynton, Stockport, Cheshire, SK12 1AX
By Lawler & Co
£ 695,000
Reviews
4 out of 5 stars
Lawler & Co says ..
IMMACUATELY PRESENTED AND RENOVATED THREE BED DETACHED BUNGALOW BOASTING MODERN INTERIOR THROUGHOUT POSITIONED IN A CENTRAL HIGHLY SOUGHT AFTER RESIDENTIAL LOCATION
Property Oracle says ..
This property is a detached bungalow located in Poynton, Cheshire. The location is excellent, with nearby schools, transportation links (Poynton train station is 2.26km away), and local amenities. The property itself appears to be in very good condition, having undergone some modernisation while retaining some traditional character. It benefits from a sizable garden. Comparing the list price of £695,000 to the average price of £541,518 and average price per sqft of £532 in the area, and considering the property’s condition, location, and land size, the list price appears slightly higher than the average but justifiable given the property’s apparent high standard of finish and desirable location.
Therefore, we give this property 8 / 10. *Disclaimer: This is our option and does constitute a recommendation or financial advice. Do your own research. *
- Price
- 7
- Condition
- 9
- Location
- 9
- Land
- 8
- Bedrooms
- 3
- Bathrooms
- 2
- Sqft (est)
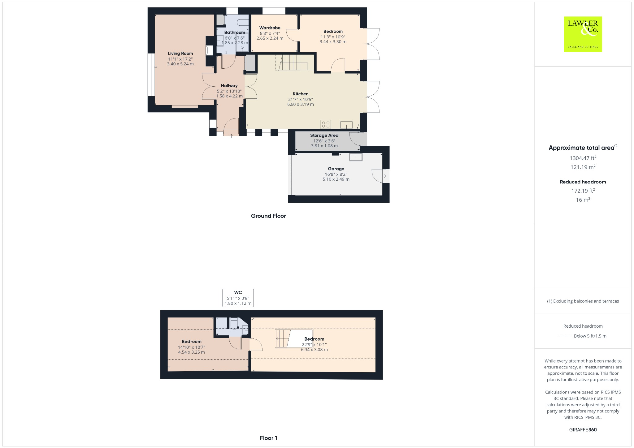
- 1,304.48
The heatmap indicates the level of crime in the area. The color of the heatmap indicates the crime severity and recency.
Metrics Year-on-Year
- Average area value
- 562,143.00 £Decreased by 0.87 %
- Est sale value
- 618,323.52 £Increased by 37.39 %
- Average area rental value
- 1,050.00 £/moDecreased by 21.88 %
- Est letting value
- 0.00 £/mo
- Est rental Yield
- 2.24 %Decreased by 21.13 %
- Crime Rate
- 31.00 %Unchanged by 0.00 %
Agent Activity
Lawler & Co created the listing.
Nearby Schools
| Name | Type | Ofsted | Distance |
|---|---|---|---|
| Vernon Primary School | Community School | Outstanding | 0.51 KM |
| Poynton Children'S Centre | Children's Centre Linked Site | 0.52 KM | |
| Poynton High School | Academy Converter | 0.57 KM | |
| Worth Primary School | Academy Converter | 0.85 KM | |
| St Paul'S Catholic Primary School, A Voluntary Academy | Academy Converter | 0.96 KM |
Images
Nearby Streets
| Name | Average Price | Average Sqft | Distance |
|---|---|---|---|
| School Lane | £ 475,000 | 0 | 0.00 KM |
| Ash Road | £ 0 | 0 | 0.00 KM |
| South Park Drive | £ 1,200,000 | 0 | 0.00 KM |
| Larch Close | £ 525,000 | 0 | 0.00 KM |
| Haseley Close | £ 0 | 0 | 0.00 KM |
Nearby Transport
| Name | NLC | TLC | Distance |
|---|---|---|---|
| Poynton | 2874 | PYT | 2.26 KM |
| Hazel Grove | 2768 | HAZ | 3.35 KM |
| Middlewood | 2971 | MDL | 3.63 KM |
| Adlington (Cheshire) | 2939 | ADC | 3.87 KM |
| Woodsmoor | 2773 | WSR | 5.24 KM |
Nearby Listings
| Address | Price | Type | Score | Distance |
|---|---|---|---|---|
| School Lane, Poynton, Stockport, Cheshire, SK12 1AX | £ 695,000 | BUY | 8 / 10 | 0.00 KM |
| Somerford House, Poynton | £ 300,000 | BUY | 7 / 10 | 0.05 KM |
| Park Lane, Poynton | £ 425,000 | BUY | 7 / 10 | 0.09 KM |
| Holland Court, Willow Close, Poynton, Stockport, Cheshire, SK12 1PL | £ 190,000 | BUY | Unknown | 0.11 KM |
| Beech Crescent, Poynton, Stockport, Cheshire, SK12 1AW | £ 485,000 | BUY | 6 / 10 | 0.14 KM |
Nearby Properties
| Address | Price | Distance |
|---|---|---|
| 23 School Lane | £ 180,000 | 0.00 KM |
| 13 School Lane | £ 85,000 | 0.00 KM |
| 2 School Lane | £ 50,000 | 0.00 KM |
| 6 School Lane | £ 260,000 | 0.00 KM |
| 8 School Lane | £ 190,000 | 0.00 KM |