Robert Watts says ..
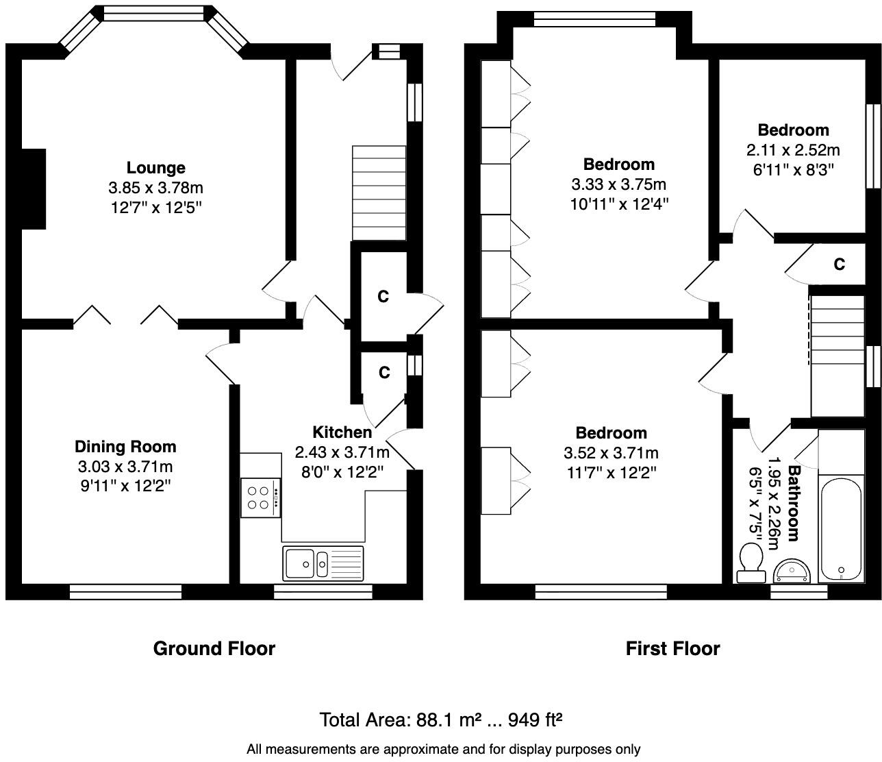
** OFFERED WITH NO CHAIN ** PLEASANT PLOT POSITION WITH A VAST AMOUNT OF SCOPE ** FAMILY SIZED PROPERTY ** Attractive SEMI DETACHED property in this popular residential location which is ideal for young family buyers. Briefly comprising: entrance hall, lounge, dining room and kitchen. THREE GOOD ...
Property Oracle says ..
This semi-detached property on Greyfriar Walk, Bradford, offers three bedrooms and one bathroom. While the property is in a traditional style and could benefit from modernization, it features a well-maintained garden. The location provides access to local schools and transportation, making it suitable for families. The asking price of £170,000 appears reasonable given the property’s condition, size, and location within Great Horton.
Therefore, we give this property 6 / 10. *Disclaimer: This is our option and does constitute a recommendation or financial advice. Do your own research. *
- Price
- 7
- Condition
- 5
- Location
- 6
- Land
- 7
- Bedrooms
- 3
- Bathrooms
- 1
The heatmap indicates the level of crime in the area. The color of the heatmap indicates the crime severity and recency.
Metrics Year-on-Year
- Average area value
- 856,250.00 £Increased by 15.74 %
- Average area rental value
- 2,000.00 £/moDecreased by 15.25 %
- Est rental Yield
- 2.80 %Decreased by 26.89 %
- Crime Rate
- 5.00 %Unchanged by 0.00 %
Agent Activity
Robert Watts created the listing.
Nearby Schools
| Name | Type | Ofsted | Distance |
|---|---|---|---|
| Hollingwood Primary School | Academy Converter | 0.21 KM | |
| St John The Evangelist Catholic Primary School | Academy Converter | Good | 0.84 KM |
| St Anthony'S Catholic Primary School, A Voluntary Academy | Academy Converter | 1.09 KM | |
| Brackenhill Primary School | Community School | Good | 1.10 KM |
| Reevy Hill Children'S Centre | Children's Centre | 1.20 KM |
Images
Nearby Streets
| Name | Average Price | Average Sqft | Distance |
|---|---|---|---|
| Highlands Close | £ 0 | 0 | 0.00 KM |
| Mickledore Close | £ 189,950 | 0 | 0.00 KM |
| Chelsea Road | £ 130,000 | 0 | 0.00 KM |
| Spencer Road | £ 132,000 | 0 | 0.00 KM |
| Ashton Avenue | £ 0 | 0 | 0.00 KM |
Nearby Transport
| Name | NLC | TLC | Distance |
|---|---|---|---|
| Bradford Forster Square | 8346 | BDQ | 5.69 KM |
| Bradford Interchange | 8345 | BDI | 5.84 KM |
| Frizinghall | 8556 | FZH | 5.90 KM |
| Low Moor | 8416 | LMR | 6.07 KM |
| Shipley (Yorks) | 8347 | SHY | 6.85 KM |
Nearby Listings
| Address | Price | Type | Score | Distance |
|---|---|---|---|---|
| Grey Friar Walk, Bradford, BD7 | £ 170,000 | BUY | 6 / 10 | 0.00 KM |
| Dewberry Close, Bradford, West Yorkshire, BD7 | £ 150,000 | BUY | Unknown | 0.14 KM |
| Windermere Road, Bradford | £ 160,000 | BUY | Unknown | 0.17 KM |
| Highlands Close, Horton Bank Top, Bradford, BD7 | £ 450,000 | BUY | 6 / 10 | 0.17 KM |
| Highlands Close, Horton Bank Top, Bradford | £ 415,000 | BUY | 7 / 10 | 0.19 KM |
Nearby Properties
| Address | Price | Distance |
|---|---|---|
| 30 Grey Friar Walk | £ 113,000 | 0.07 KM |
| 22 Grey Friar Walk | £ 85,000 | 0.07 KM |
| 33 Grey Friar Walk | £ 51,750 | 0.07 KM |
| 55 Grey Friar Walk | £ 135,000 | 0.07 KM |
| 6 Grey Friar Walk | £ 130,000 | 0.07 KM |