Gascoigne Halman says ..
An extended three-bedroom semi-detached home, ideally located for easy access to Stockton Heath and Warrington, with nearby train stations and bus routes.
Property Oracle says ..
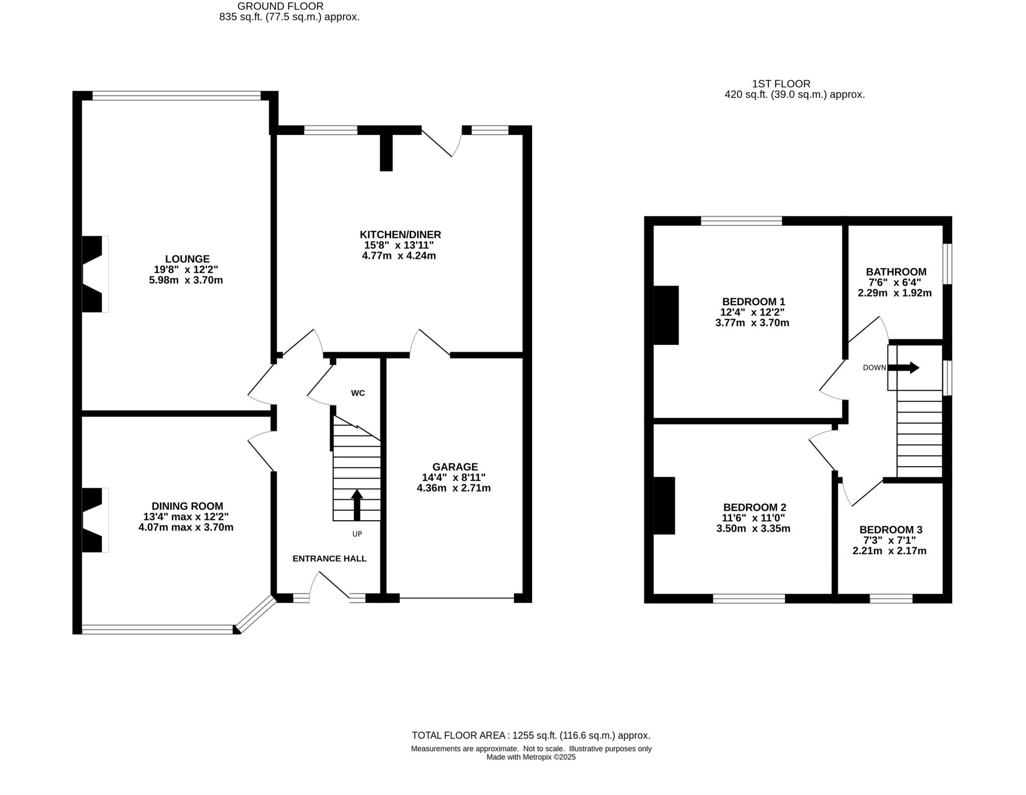
This is a well-presented semi-detached property in Latchford West, Warrington. The house offers three bedrooms, one bathroom, and a spacious 1,255 sqft of living space. The property benefits from a modern interior, a well-maintained garden, and a garage. While the list price is slightly above the average for the area, the property’s condition and size may justify the premium. The proximity to schools and transportation links makes it an attractive option for families and commuters.
Therefore, we give this property 7 / 10. *Disclaimer: This is our option and does constitute a recommendation or financial advice. Do your own research. *
- Price
- 6
- Condition
- 8
- Location
- 7
- Land
- 7
- Bedrooms
- 3
- Bathrooms
- 1
- Sqft (est)
- 1,255.00
The heatmap indicates the level of crime in the area. The color of the heatmap indicates the crime severity and recency.
Metrics Year-on-Year
- Average area value
- 183,878.00 £Decreased by 22.92 %
- Est sale value
- 268,570.00 £Decreased by 17.37 %
- Average area rental value
- 1,019.00 £/moIncreased by 15.93 %
- Est letting value
- 1,255.00 £/mo
- Est rental Yield
- 6.65 %Increased by 50.45 %
- Crime Rate
- 1.00 %Unchanged by 0.00 %
Agent Activity
Gascoigne Halman created the listing.
Nearby Schools
| Name | Type | Ofsted | Distance |
|---|---|---|---|
| Latchford St James Cofe Primary School | Voluntary Aided School | Good | 0.73 KM |
| Priestley College | Academy 16-19 Converter | Good | 1.00 KM |
| Stockton Heath Primary School | Community School | Good | 1.30 KM |
| Utc Warrington | University Technical College | Good | 1.48 KM |
| St Thomas' Cofe Primary School | Voluntary Aided School | Good | 2.11 KM |
Images
Nearby Streets
| Name | Average Price | Average Sqft | Distance |
|---|---|---|---|
| Wallis Street | £ 0 | 0 | 0.00 KM |
| Adamson Street | £ 0 | 0 | 0.00 KM |
| Wordsworth Avenue | £ 228,333 | 0 | 0.00 KM |
| Derwent Road | £ 297,000 | 0 | 0.00 KM |
| Rydal Avenue | £ 286,650 | 0 | 0.00 KM |
Nearby Transport
| Name | NLC | TLC | Distance |
|---|---|---|---|
| Warrington Bank Quay | 2384 | WBQ | 1.23 KM |
| Warrington Central | 2390 | WAC | 1.38 KM |
| Padgate | 2387 | PDG | 5.00 KM |
| Warrington West | 6583 | WAW | 5.20 KM |
| Sankey For Penketh | 2388 | SNK | 6.47 KM |
Nearby Listings
| Address | Price | Type | Score | Distance |
|---|---|---|---|---|
| Sulby Avenue, Warrington | £ 345,000 | BUY | 7 / 10 | 0.00 KM |
| Sulby Avenue, Warrington, Cheshire, WA4 | £ 345,000 | BUY | 7 / 10 | 0.04 KM |
| Greeba Avenue, Warrington, WA4 | £ 289,000 | BUY | 6 / 10 | 0.06 KM |
| Greeba Avenue WA4 | £ 312,500 | BUY | 7 / 10 | 0.08 KM |
| Greeba Avenue WA4 | £ 312,500 | BUY | Unknown | 0.08 KM |
Nearby Properties
| Address | Price | Distance |
|---|---|---|
| 17 Sulby Avenue | £ 200,000 | 0.03 KM |
| 6 Sulby Avenue | £ 167,000 | 0.03 KM |
| 9 Sulby Avenue | £ 155,000 | 0.03 KM |
| 15 Sulby Avenue | £ 290,000 | 0.03 KM |
| 11 Sulby Avenue | £ 162,500 | 0.03 KM |