Cleave Park, Fremington
By Phillips, Smith & Dunn
£ 600,000
Reviews
3 out of 5 stars
Phillips, Smith & Dunn says ..
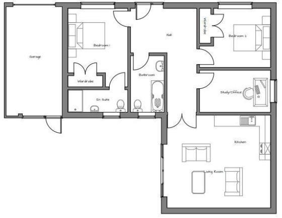
A rare development opportunity for the erection of 4 detached bungalows with garages. Age limit of 55 plus. This exclusive site is situated in the heart of Fremington, which offers excellent village facilities including a parish church, school, pub, restaurant, post office, medical cen...
Property Oracle says ..
This listing presents a development opportunity in Fremington, North Devon, for the construction of four detached bungalows, each with a garage. The location in Fremington offers a mix of village amenities and proximity to the larger town of Barnstaple, which provides further services and transport links. The provided images showcase a planned development of modern, well-designed bungalows. The plots available seem suitable for building, however, additional information such as specific plot sizes, precise dimensions of each dwelling, internal images, and more detailed construction specifications would enable a more comprehensive analysis. The price of £600,000 for the land and project requires a deeper evaluation. While the surrounding property prices would indicate that the project may be viable, an in-depth analysis of potential construction costs, expected sale prices for the completed bungalows, and the overall profitability of the development is crucial before forming a definitive opinion on its value. This information is absent from this property listing.
Therefore, we give this property 6 / 10. *Disclaimer: This is our option and does constitute a recommendation or financial advice. Do your own research. *
- Price
- 6
- Condition
- 8
- Location
- 7
- Land
- 4
- Bedrooms
- 0
- Bathrooms
- 0
- Sqft (est)
- 780.00
The heatmap indicates the level of crime in the area. The color of the heatmap indicates the crime severity and recency.
Metrics Year-on-Year
- Average area value
- 661,000.00 £Increased by 29.29 %
- Est sale value
- 422,760.00 £Increased by 47.28 %
- Average area rental value
- 2,410.00 £/moIncreased by 120.90 %
- Est letting value
- 780.00 £/mo
- Est rental Yield
- 4.38 %Increased by 71.09 %
- Crime Rate
- 9.00 %Unchanged by 0.00 %
Agent Activity
Phillips, Smith & Dunn created the listing.
Nearby Schools
| Name | Type | Ofsted | Distance |
|---|---|---|---|
| Fremington Primary School | Academy Converter | 1.13 KM | |
| Roundswell Community Primary Academy | Free Schools | 2.47 KM | |
| The Shoreline Academy | Academy Alternative Provision Sponsor Led | 2.91 KM | |
| Sticklepath Community Primary Academy | Academy Converter | 3.94 KM | |
| Barnstaple (Sticklepath) | Children's Centre | 4.08 KM |
Images
Nearby Streets
| Name | Average Price | Average Sqft | Distance |
|---|---|---|---|
| Red Lane | £ 0 | 0 | 0.00 KM |
| Park Close | £ 290,000 | 0 | 0.00 KM |
| Tarka Trail | £ 0 | 0 | 0.00 KM |
| Aspen Grove | £ 48,000 | 0 | 0.00 KM |
| Horseshoe Close | £ 0 | 0 | 0.00 KM |
Nearby Transport
| Name | NLC | TLC | Distance |
|---|---|---|---|
| Barnstaple | 5725 | BNP | 6.08 KM |
Nearby Listings
| Address | Price | Type | Score | Distance |
|---|---|---|---|---|
| Cleave Park, Fremington | £ 600,000 | BUY | 6 / 10 | 0.00 KM |
| Cleave Park, Fremington, Barnstaple | £ 390,000 | BUY | 7 / 10 | 0.06 KM |
| Poundfield Close, Fremington, EX31 | £ 450,000 | BUY | 7 / 10 | 0.06 KM |
| Redlands Road, Fremington, Barnstaple | £ 285,000 | BUY | 6 / 10 | 0.13 KM |
| Fremington, Barnstaple | £ 290,000 | BUY | 7 / 10 | 0.19 KM |
Nearby Properties
| Address | Price | Distance |
|---|---|---|
| 3 Broady Strap | £ 316,000 | 0.04 KM |
| 8 Broady Strap | £ 385,000 | 0.04 KM |
| 6 Broady Strap | £ 390,000 | 0.04 KM |
| 11 Cleave Park | £ 200,000 | 0.04 KM |
| 3 Cleave Park | £ 192,000 | 0.04 KM |