James Du Pavey says ..
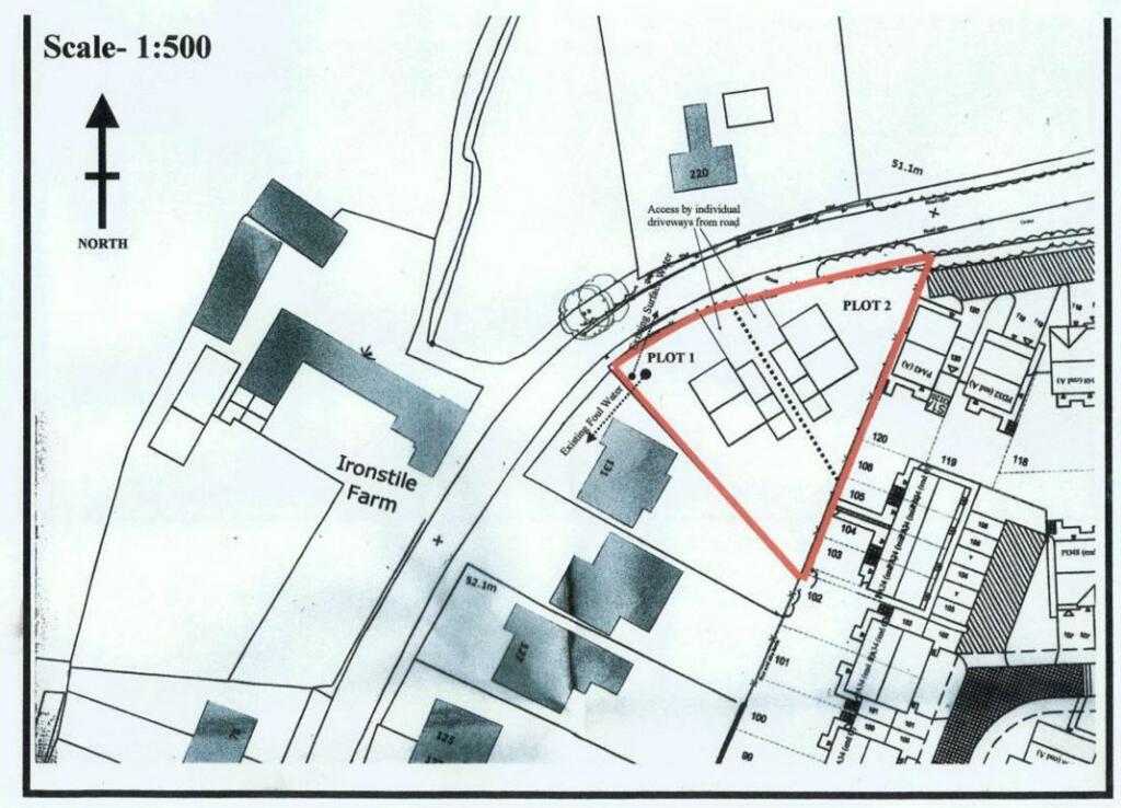
Exciting opportunity to acquire a building plot in Crewe with planning permission for 2 detached, 2-storey residences. Approx. 0.0855ha land with utilities on-site. Planning ref. 22/0109N. Contact Nantwich office for details.
Property Oracle says ..
This property is a building plot located on Stoneley Road in Crewe, Cheshire. The key feature is the existing planning permission for two detached, two-storey houses, making it an attractive proposition for developers or those seeking to build their dream home. The land itself is relatively large and appears suitable for the proposed development. However, it is currently overgrown and requires preparation before construction begins. The location is convenient, with reasonable proximity to transport links, schools, and other amenities in Crewe. While the list price seems potentially reasonable, especially when considering the possibility of developing two properties, prospective buyers should factor in significant building costs and potential delays inherent in new construction projects. Detailed financial analysis including all associated costs is crucial before committing to this purchase. The lack of existing structures and the overall state of the land lowers its current worth, despite the long-term potential.
Therefore, we give this property 6 / 10. *Disclaimer: This is our option and does constitute a recommendation or financial advice. Do your own research. *
- Price
- 7
- Condition
- 4
- Location
- 6
- Land
- 7
- Bedrooms
- 0
- Bathrooms
- 0
The heatmap indicates the level of crime in the area. The color of the heatmap indicates the crime severity and recency.
Metrics Year-on-Year
- Average area value
- 198,130.00 £Decreased by 16.97 %
- Average area rental value
- 1,075.00 £/moIncreased by 14.97 %
- Est rental Yield
- 6.51 %Increased by 38.51 %
- Crime Rate
- 3.00 %Unchanged by 0.00 %
Agent Activity
James Du Pavey marked this listing as sold.
James Du Pavey created the listing.
Nearby Schools
| Name | Type | Ofsted | Distance |
|---|---|---|---|
| Monks Coppenhall Academy | Academy Converter | 0.78 KM | |
| Monks Coppenhall Children'S Centre | Children's Centre | 0.98 KM | |
| St Michael'S Community Academy | Academy Sponsor Led | Requires improvement | 1.32 KM |
| Sir William Stanier Community School | Academy Sponsor Led | Requires improvement | 1.39 KM |
| Crewe Engineering And Design Utc | University Technical College | Good | 1.58 KM |
Images
Nearby Streets
| Name | Average Price | Average Sqft | Distance |
|---|---|---|---|
| Waldron's Lane | £ 400,000 | 0 | 0.00 KM |
| Britannia Close | £ 0 | 0 | 0.00 KM |
| Abbey Place | £ 105,000 | 0 | 0.00 KM |
| Ash Road | £ 130,000 | 0 | 0.00 KM |
| Maple Grove | £ 0 | 0 | 0.00 KM |
Nearby Transport
| Name | NLC | TLC | Distance |
|---|---|---|---|
| Crewe | 1243 | CRE | 2.88 KM |
| Sandbach | 1261 | SDB | 6.45 KM |
Nearby Listings
| Address | Price | Type | Score | Distance |
|---|---|---|---|---|
| 131 Stoneley Road, Coppenhall, Crewe | £ 385,000 | BUY | 7 / 10 | 0.00 KM |
| Wilding Drive, Crewe | £ 150,000 | BUY | 7 / 10 | 0.07 KM |
| Stoneley Road, Crewe | £ 420,000 | BUY | 7 / 10 | 0.08 KM |
| Stoneley Road, Crewe | £ 390,000 | BUY | 7 / 10 | 0.08 KM |
| Stoneley Road, Crewe | £ 275,000 | BUY | Unknown | 0.08 KM |
Nearby Properties
| Address | Price | Distance |
|---|---|---|
| 46 Wilding Drive | £ 139,500 | 0.09 KM |
| 15 Stoneley Road | £ 126,500 | 0.20 KM |
| 13 Stoneley Road | £ 56,950 | 0.20 KM |
| 27 Stoneley Road | £ 111,000 | 0.20 KM |
| 45 Stoneley Road | £ 177,000 | 0.20 KM |