ST
King Street, Hammersmith, W6
By Story of Home
£ 525,000
Reviews
3 out of 5 stars
Story of Home says ..
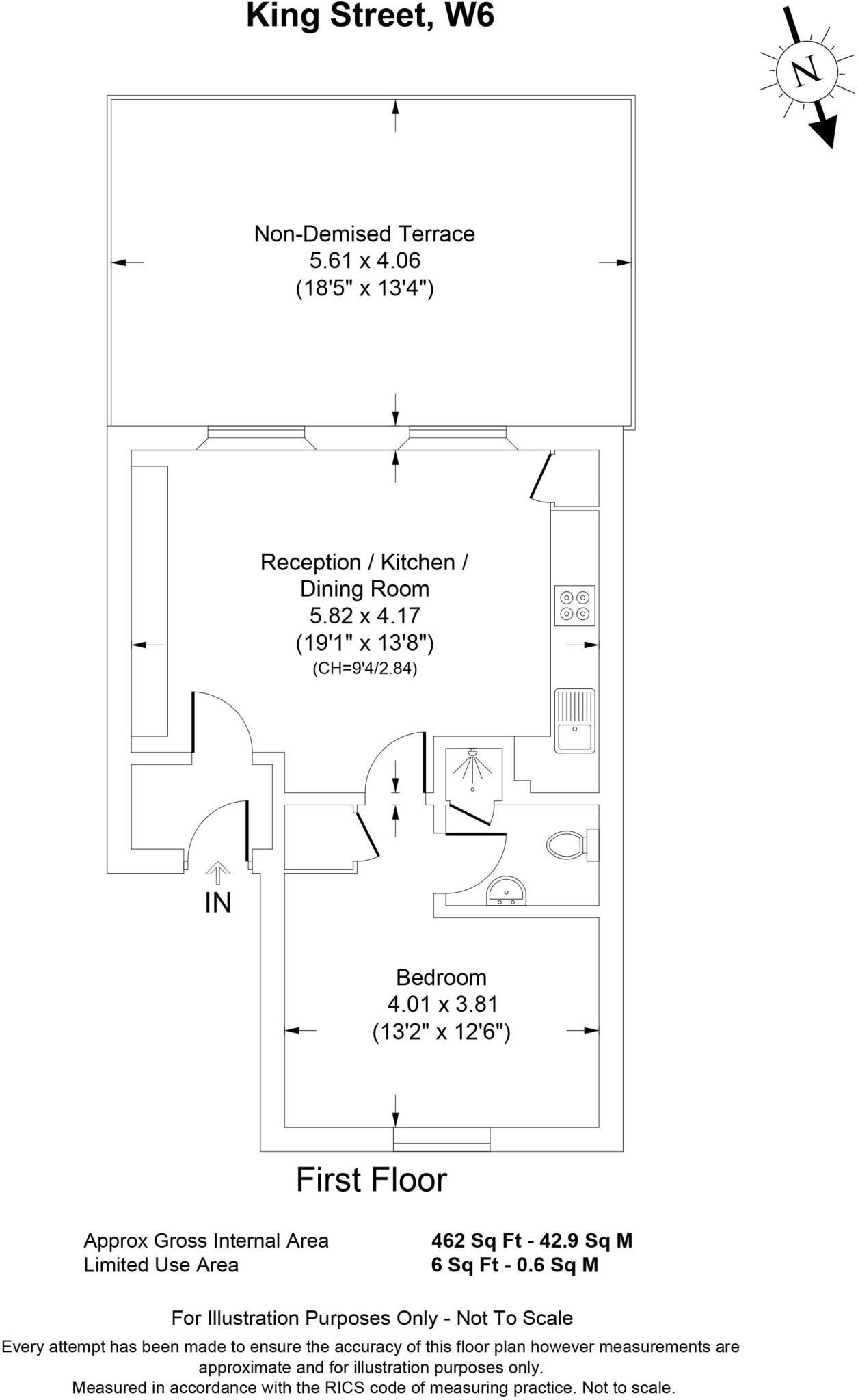
Set on the first floor of a well-maintained residential building, this one-bedroom apartment offers a combination of indoor comfort and generous outdoor space, a private terrace large enough for entertaining, container gardening, or simply a quiet morning coffee.
Property Oracle says ..
Therefore, we give this property 6 / 10. *Disclaimer: This is our option and does constitute a recommendation or financial advice. Do your own research. *
- Price
- 6
- Condition
- 8
- Location
- 9
- Land
- 4
- Bedrooms
- 1
- Bathrooms
- 1
- Sqft (est)
- 461.77
The heatmap indicates the level of crime in the area. The color of the heatmap indicates the crime severity and recency.
Metrics Year-on-Year
- Average area value
- 1,500,000.00 £Increased by 39.77 %
- Est sale value
- 943,396.11 £Increased by 105.95 %
- Average area rental value
- 2,803.00 £/moIncreased by 1.19 %
- Est letting value
- 1,385.31 £/moIncreased by 50.00 %
- Est rental Yield
- 2.24 %Decreased by 27.74 %
- Crime Rate
- 8.00 %Unchanged by 0.00 %
from 1,073,224.00 £
from 458,075.84 £
from 2,770.00 £/mo
from 923.54 £/mo
from 3.10 %
from 8.00 %
Agent Activity
Story of Home created the listing.
Nearby Schools
| Name | Type | Ofsted | Distance |
|---|---|---|---|
| Ravenscourt Park Preparatory School | Other Independent School | 0.15 KM | |
| St Peter'S Primary School | Voluntary Aided School | Outstanding | 0.17 KM |
| West London Free School | Free Schools | Good | 0.24 KM |
| Latymer Upper School | Other Independent School | 0.26 KM | |
| Le Herisson School | Other Independent School | 0.42 KM |
Images
Nearby Streets
| Name | Average Price | Average Sqft | Distance |
|---|---|---|---|
| Hampshire Hog Lane | £ 680,000 | 0 | 0.00 KM |
| Goldhawk Road | £ 800,000 | 0 | 0.00 KM |
| British Grove | £ 0 | 0 | 0.00 KM |
| King Street | £ 0 | 0 | 0.00 KM |
| Wilson Walk | £ 0 | 0 | 0.00 KM |
Nearby Transport
| Name | NLC | TLC | Distance |
|---|---|---|---|
| Shepherd'S Bush | 9587 | SPB | 2.76 KM |
| Barnes Bridge | 5580 | BNI | 2.80 KM |
| Barnes | 5551 | BNS | 2.97 KM |
| Acton Central | 1404 | ACC | 3.07 KM |
| Kensington (Olympia) | 3092 | KPA | 3.28 KM |
Nearby Listings
| Address | Price | Type | Score | Distance |
|---|---|---|---|---|
| King Street, Hammersmith, W6 | £ 525,000 | BUY | 6 / 10 | 0.00 KM |
| King Street, London, W6 | £ 525,000 | BUY | 7 / 10 | 0.00 KM |
| Willoughby House, King Street, London, W6, United Kingdom | £ 5,000,000 | BUY | 8 / 10 | 0.01 KM |
| King Street, Hammersmith | £ 350,000 | BUY | Unknown | 0.04 KM |
| King Street, W6 | £ 450,000 | BUY | 6 / 10 | 0.08 KM |
Nearby Properties
| Address | Price | Distance |
|---|---|---|
| 286f King Street | £ 450,000 | 0.00 KM |
| 260 King Street | £ 1,200,000 | 0.00 KM |
| 286a King Street | £ 41,500 | 0.01 KM |
| 286c King Street | £ 210,000 | 0.01 KM |
| 223 Hamlet Gardens | £ 225,000 | 0.10 KM |