Ellison Road, London, SW16
By Keller Williams Oxygen
£ 285,000
Reviews
2 out of 5 stars
Keller Williams Oxygen says ..
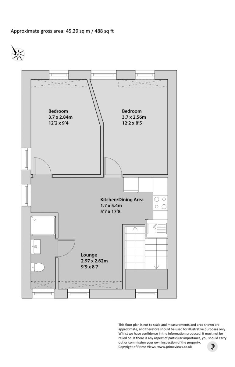
Top-floor two-bedroom flat within a classic period conversion in Streatham, offering spacious living and excellent transport links via Streatham Common Station. A fantastic opportunity in a desirable South London location
Property Oracle says ..
This property is a 2-bedroom apartment located in Streatham South, London. The list price is £285,000, and the property is 487.5 sq ft. The average price per sq ft in the area is £585, suggesting this property may be underpriced compared to the local market average. However, this needs to be considered against the condition of the property. The area benefits from good transport links to Streatham Common and other stations, and is close to several schools, including Immanuel And St Andrew Church Of England Primary School (Outstanding Ofsted rating). While the property itself shows signs of needing renovation, its location and potential make it an interesting investment opportunity for someone willing to undertake modernisation.
Therefore, we give this property 4 / 10. *Disclaimer: This is our option and does constitute a recommendation or financial advice. Do your own research. *
- Price
- 6
- Condition
- 4
- Location
- 7
- Land
- 1
- Bedrooms
- 2
- Bathrooms
- 1
- Sqft (est)
- 487.50
The heatmap indicates the level of crime in the area. The color of the heatmap indicates the crime severity and recency.
Metrics Year-on-Year
- Average area value
- 615,000.00 £Increased by 1.35 %
- Est sale value
- 270,562.50 £Increased by 77.88 %
- Average area rental value
- 2,085.00 £/moDecreased by 14.37 %
- Est letting value
- 487.50 £/moUnchanged by 0.00 %
- Est rental Yield
- 4.07 %Decreased by 15.56 %
- Crime Rate
- 1.00 %Unchanged by 0.00 %
Agent Activity
Keller Williams Oxygen created the listing.
Nearby Schools
| Name | Type | Ofsted | Distance |
|---|---|---|---|
| Immanuel And St Andrew Church Of England Primary School | Voluntary Aided School | Outstanding | 0.33 KM |
| Woodmansterne School | Community School | Good | 0.59 KM |
| Woodmansterne Primary School & Children'S Centre | Children's Centre | 0.65 KM | |
| Streatham Hub Children'S Centre | Children's Centre | 0.72 KM | |
| Goldfinch Primary School | Academy Sponsor Led | 0.84 KM |
Images
Nearby Streets
| Name | Average Price | Average Sqft | Distance |
|---|---|---|---|
| Barrow Road | £ 0 | 0 | 0.00 KM |
| Stirling Close | £ 344,375 | 0 | 0.00 KM |
| Turle Road | £ 625,000 | 0 | 0.00 KM |
| Meadfoot Road | £ 550,000 | 0 | 0.00 KM |
| Hermitage Path | £ 0 | 0 | 0.00 KM |
Nearby Transport
| Name | NLC | TLC | Distance |
|---|---|---|---|
| Streatham Common | 5384 | SRC | 0.26 KM |
| Streatham | 5383 | STE | 0.95 KM |
| Norbury | 5428 | NRB | 1.50 KM |
| Streatham Hill | 5435 | SRH | 2.41 KM |
| Mitcham Eastfields | 5069 | MTC | 2.54 KM |
Nearby Listings
| Address | Price | Type | Score | Distance |
|---|---|---|---|---|
| Ellison Road, London, SW16 | £ 285,000 | BUY | 4 / 10 | 0.00 KM |
| Ellison Road,, Streatham, London, SW16 | £ 525,000 | BUY | 6 / 10 | 0.01 KM |
| Ellison Road, Streatham | £ 350,000 | BUY | 7 / 10 | 0.02 KM |
| Ellison Road, Streatham, London, SW16 | £ 375,000 | BUY | Unknown | 0.02 KM |
| Ellison Road, London, SW16 | £ 500,000 | BUY | 7 / 10 | 0.02 KM |
Nearby Properties
| Address | Price | Distance |
|---|---|---|
| 35 Ellison Road | £ 1,050,000 | 0.01 KM |
| 13 Ellison Road | £ 800,000 | 0.01 KM |
| 3 Ellison Road | £ 95,000 | 0.01 KM |
| 5 Ellison Road | £ 162,000 | 0.01 KM |
| 1 Ellison Road | £ 330,000 | 0.01 KM |