Cooke & Co says ..
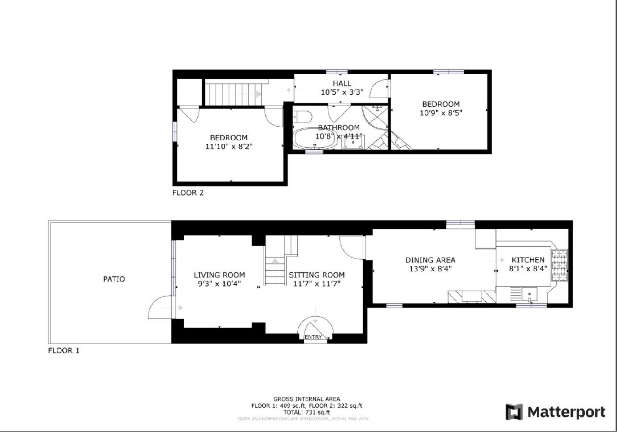
Cooke & Co are extremely privileged to offer for sale this stunning Coach House which is located on the boundary of King George VI Park. This wonderful home has been sympathetically refurbished by the current owners to offer charm and character throughout. The ground floor is approached with an o...
Property Oracle says ..
Therefore, we give this property 6 / 10. *Disclaimer: This is our option and does constitute a recommendation or financial advice. Do your own research. *
- Price
- 7
- Condition
- 8
- Location
- 7
- Land
- 5
- Bedrooms
- 2
- Bathrooms
- 1
- Sqft (est)
- 689.62
The heatmap indicates the level of crime in the area. The color of the heatmap indicates the crime severity and recency.
Metrics Year-on-Year
- Average area value
- 338,398.00 £Increased by 11.63 %
- Est sale value
- 259,297.12 £Increased by 5.92 %
- Average area rental value
- 995.00 £/moDecreased by 10.28 %
- Est letting value
- 689.62 £/moUnchanged by 0.00 %
- Est rental Yield
- 3.53 %Decreased by 19.59 %
- Crime Rate
- 3.00 %Unchanged by 0.00 %
from 303,148.00 £
from 244,815.10 £
from 1,109.00 £/mo
from 689.62 £/mo
from 4.39 %
from 3.00 %
Agent Activity
Cooke & Co created the listing.
Nearby Schools
| Name | Type | Ofsted | Distance |
|---|---|---|---|
| Ramsgate, Holy Trinity Church Of England Primary School | Voluntary Aided School | Outstanding | 0.26 KM |
| St Ethelbert'S Catholic Primary School | Voluntary Aided School | Good | 0.85 KM |
| Newlands Children'S Centre | Children's Centre | 1.20 KM | |
| Newlands Primary School | Academy Sponsor Led | Good | 1.20 KM |
| Bradstow School | Community Special School | Outstanding | 1.21 KM |
Images
Nearby Streets
| Name | Average Price | Average Sqft | Distance |
|---|---|---|---|
| Wickham Avenue | £ 285,625 | 0 | 0.00 KM |
| Salisbury Avenue | £ 521,919 | 0 | 0.00 KM |
| Victoria Parade | £ 198,333 | 0 | 0.00 KM |
| Rosebery Avenue | £ 0 | 0 | 0.00 KM |
| Bay View Road | £ 750,000 | 0 | 0.00 KM |
Nearby Transport
| Name | NLC | TLC | Distance |
|---|---|---|---|
| Dumpton Park | 5034 | DMP | 0.58 KM |
| Broadstairs | 5006 | BSR | 1.87 KM |
| Ramsgate | 5023 | RAM | 2.72 KM |
| Margate | 5018 | MAR | 7.97 KM |
Nearby Listings
| Address | Price | Type | Score | Distance |
|---|---|---|---|---|
| Montefiore Avenue, Ramsgate | £ 325,000 | BUY | 6 / 10 | 0.00 KM |
| Dumpton Park Drive, Ramsgate | £ 650,000 | BUY | 7 / 10 | 0.04 KM |
| Dumpton Park Drive, Ramsgate, Kent, CT11 | £ 700,000 | BUY | 7 / 10 | 0.08 KM |
| Dumpton Park Drive, Ramsgate, CT11 8BH | £ 400,000 | BUY | 7 / 10 | 0.09 KM |
| Dumpton Park Drive, Ramsgate, CT11 8BA | £ 660,000 | BUY | Unknown | 0.12 KM |
Nearby Properties
| Address | Price | Distance |
|---|---|---|
| 120 Dumpton Park Drive | £ 200,000 | 0.08 KM |
| 117 Dumpton Park Drive | £ 170,000 | 0.08 KM |
| 118 Dumpton Park Drive | £ 209,950 | 0.08 KM |
| 116 Dumpton Park Drive | £ 480,000 | 0.08 KM |
| 13 Harebrook | £ 234,000 | 0.12 KM |