BU
Warrant Road, Shropshire
By Butters John Bee Land
£ 3,500,000
Reviews
2 out of 5 stars
Butters John Bee Land says ..
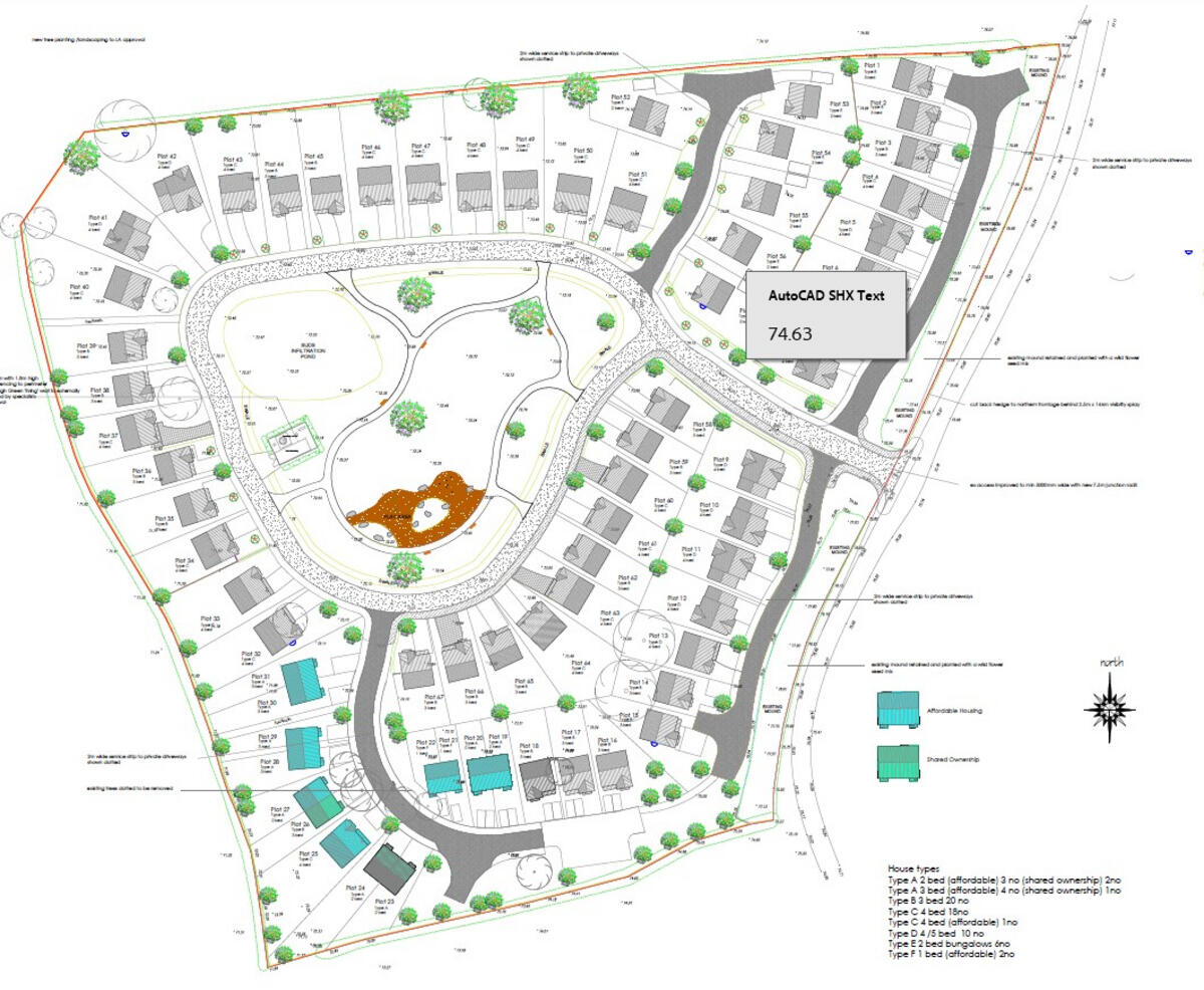
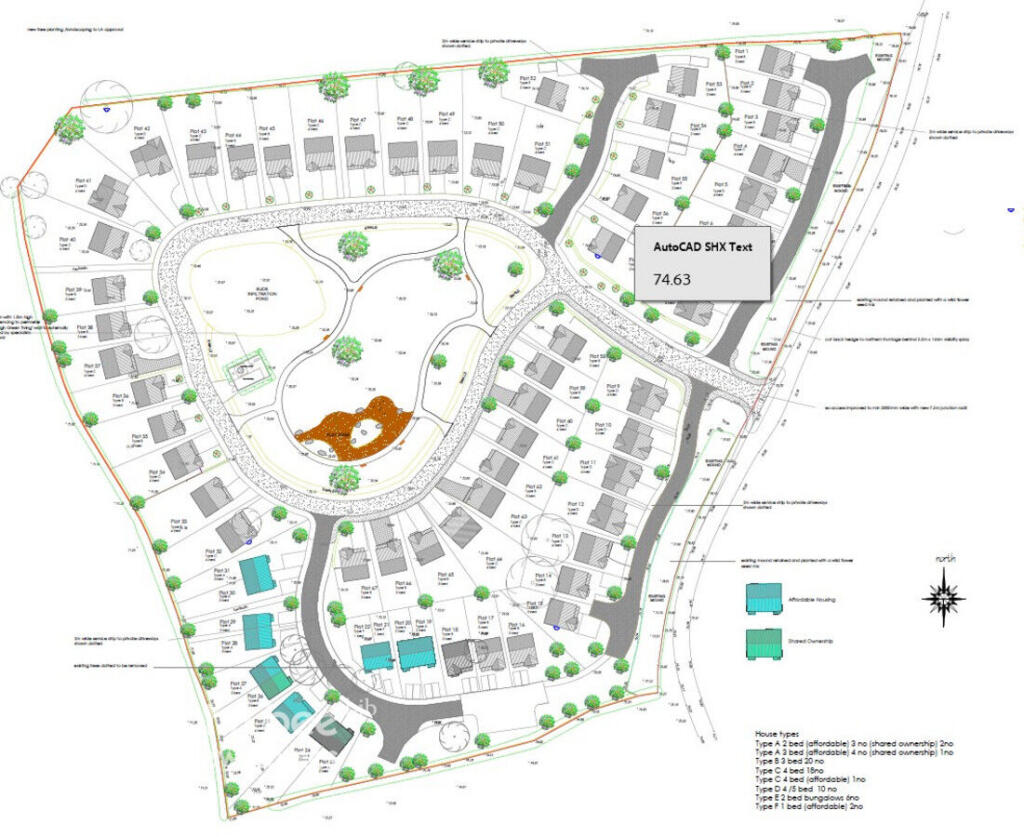
Residential Development Site - Estimated GDV £36,000,000 Expired consent for 38 Executive Units - Consent Pending for 67 Units Offered for Sale by Informal Tender Full Info Pack Available on Request
Property Oracle says ..
Therefore, we give this property 4 / 10. *Disclaimer: This is our option and does constitute a recommendation or financial advice. Do your own research. *
- Price
- 1
- Condition
- 2
- Location
- 6
- Land
- 7
- Bedrooms
- 0
- Bathrooms
- 0
- Sqft (est)
- 803.31
The heatmap indicates the level of crime in the area. The color of the heatmap indicates the crime severity and recency.
Metrics Year-on-Year
- Average area value
- 171,250.00 £Decreased by 5.66 %
- Est sale value
- 135,759.39 £Decreased by 0.59 %
- Average area rental value
- 772.00 £/moIncreased by 6.19 %
- Est letting value
- 0.00 £/mo
- Est rental Yield
- 5.41 %Increased by 12.47 %
- Crime Rate
- 8.00 %Unchanged by 0.00 %
from 181,517.00 £
from 136,562.70 £
from 727.00 £/mo
from 0.00 £/mo
from 4.81 %
from 8.00 %
Agent Activity
Butters John Bee Land created the listing.
Nearby Schools
| Name | Type | Ofsted | Distance |
|---|---|---|---|
| All Saints Catholic Primary School | Voluntary Aided School | Good | 0.46 KM |
| Thomas Gray Primary School | Community School | Requires improvement | 0.58 KM |
| Linacre Primary School | Community School | Requires improvement | 1.19 KM |
| Lander Road Primary School | Community School | Good | 1.27 KM |
| Hugh Baird College | Further Education | Good | 1.29 KM |
Images
Nearby Streets
| Name | Average Price | Average Sqft | Distance |
|---|---|---|---|
| Church Walk | £ 0 | 0 | 0.00 KM |
| Sea View Road | £ 99,950 | 0 | 0.00 KM |
| Milton Street | £ 0 | 0 | 0.00 KM |
| Marsh Lane | £ 0 | 0 | 0.00 KM |
| Talisman Way | £ 65,000 | 0 | 0.00 KM |
Nearby Transport
| Name | NLC | TLC | Distance |
|---|---|---|---|
| Bootle New Strand | 2195 | BNW | 0.47 KM |
| Bootle Oriel Road | 2239 | BOT | 0.68 KM |
| Seaforth And Litherland | 2250 | SFL | 1.76 KM |
| Bank Hall | 2238 | BAH | 2.03 KM |
| Kirkdale | 2245 | KKD | 2.31 KM |
Nearby Listings
| Address | Price | Type | Score | Distance |
|---|---|---|---|---|
| Warrant Road, Shropshire | £ 3,500,000 | BUY | 4 / 10 | 0.00 KM |
| Peter Mahon Way, Bootle, Merseyside, L20 | £ 105,000 | BUY | Unknown | 0.08 KM |
| Bushley Close, Bootle, Waterloo, L20 | £ 75,000 | BUY | 5 / 10 | 0.26 KM |
| Church Walk, Bootle, Liverpool, Merseyside, L20 | £ 176,500 | BUY | 6 / 10 | 0.42 KM |
| Church Walk, Bootle | £ 176,500 | BUY | 6 / 10 | 0.43 KM |
Nearby Properties
| Address | Price | Distance |
|---|---|---|
| 28 Peter Mahon Way | £ 98,000 | 0.11 KM |
| 30 Peter Mahon Way | £ 74,950 | 0.11 KM |
| 15 St James Drive | £ 34,595 | 0.14 KM |
| 5 St James Drive | £ 92,500 | 0.14 KM |
| 86 Strand Road | £ 52,000 | 0.17 KM |