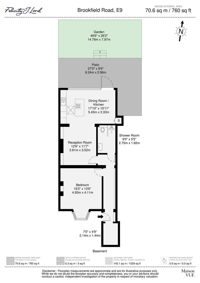
Brookfield Road, London E9
By Felicity J Lord
£ 575,000
Reviews
3 out of 5 stars
Felicity J Lord says ..
Positioned within a charming Victorian house on the sought after Brookfield Road, this exceptional lower ground floor one bedroom apartment offers an impressive 760 sqft of internal living space - an unusually generous size for a one bedroom home in the area
Property Oracle says ..
This is a well-presented one-bedroom flat in a desirable location in Hackney Wick. The property is in good condition and has a good-sized garden. The price is slightly above average for the area, but this is justified by the property’s condition and location. The flat is close to local schools and transport links.
Therefore, we give this property 7 / 10. *Disclaimer: This is our option and does constitute a recommendation or financial advice. Do your own research. *
- Price
- 7
- Condition
- 8
- Location
- 8
- Land
- 7
- Bedrooms
- 1
- Bathrooms
- 1
- Sqft (est)
- 760.00
- Lot (est)
- 1,529.00
The heatmap indicates the level of crime in the area. The color of the heatmap indicates the crime severity and recency.
Metrics Year-on-Year
- Average area value
- 465,625.00 £Decreased by 23.81 %
- Est sale value
- 449,920.00 £Decreased by 23.12 %
- Average area rental value
- 2,831.00 £/moIncreased by 5.44 %
- Est letting value
- 2,280.00 £/moUnchanged by 0.00 %
- Est rental Yield
- 7.30 %Increased by 38.52 %
- Crime Rate
- 6.00 %Unchanged by 0.00 %
Agent Activity
Felicity J Lord created the listing.
Nearby Schools
| Name | Type | Ofsted | Distance |
|---|---|---|---|
| St. Dominic'S Catholic Primary School | Voluntary Aided School | Good | 0.30 KM |
| Ickburgh School | Community Special School | Good | 0.40 KM |
| Wentworth Nursery School And Children'S Centre | Local Authority Nursery School | Outstanding | 0.70 KM |
| Wentworth Nursery School And Children'S Centre | Children's Centre | 0.70 KM | |
| Daubeney Children'S Centre | Children's Centre | 0.88 KM |
Images
Nearby Streets
| Name | Average Price | Average Sqft | Distance |
|---|---|---|---|
| East Cross Route | £ 0 | 0 | 0.00 KM |
| Harrowgate Road | £ 0 | 0 | 0.00 KM |
| Cassland Road | £ 0 | 0 | 0.00 KM |
| Crozier Terrace | £ 0 | 0 | 0.00 KM |
| Cadogan Close | £ 0 | 0 | 0.00 KM |
Nearby Transport
| Name | NLC | TLC | Distance |
|---|---|---|---|
| Homerton | 6979 | HMN | 0.81 KM |
| Hackney Wick | 6978 | HKW | 1.16 KM |
| Hackney Central | 6977 | HKC | 2.31 KM |
| Lea Bridge | 6927 | LEB | 2.42 KM |
| London Fields | 6966 | LOF | 2.52 KM |
Nearby Listings
| Address | Price | Type | Score | Distance |
|---|---|---|---|---|
| Brookfield Road, London E9 | £ 575,000 | BUY | 7 / 10 | 0.00 KM |
| Morgan Court, Homer Road, Hackney, E9 | £ 400,000 | BUY | 6 / 10 | 0.04 KM |
| Brookfield Road, Hackney, London, E9 | £ 600,000 | BUY | 6 / 10 | 0.05 KM |
| Brookfield Road, Victoria Park, Hackney, E9 | £ 950,000 | BUY | 8 / 10 | 0.06 KM |
| Brookfield Road, by Victoria Park, E9 | £ 570,000 | BUY | 6 / 10 | 0.06 KM |
Nearby Properties
| Address | Price | Distance |
|---|---|---|
| 257 Wick Road | £ 22,000 | 0.05 KM |
| 257b Wick Road | £ 150,000 | 0.05 KM |
| 249a Wick Road | £ 235,000 | 0.05 KM |
| 33 Brookfield Road | £ 595,000 | 0.06 KM |
| 12a Brookfield Road | £ 320,000 | 0.06 KM |