Julie Philpot says ..
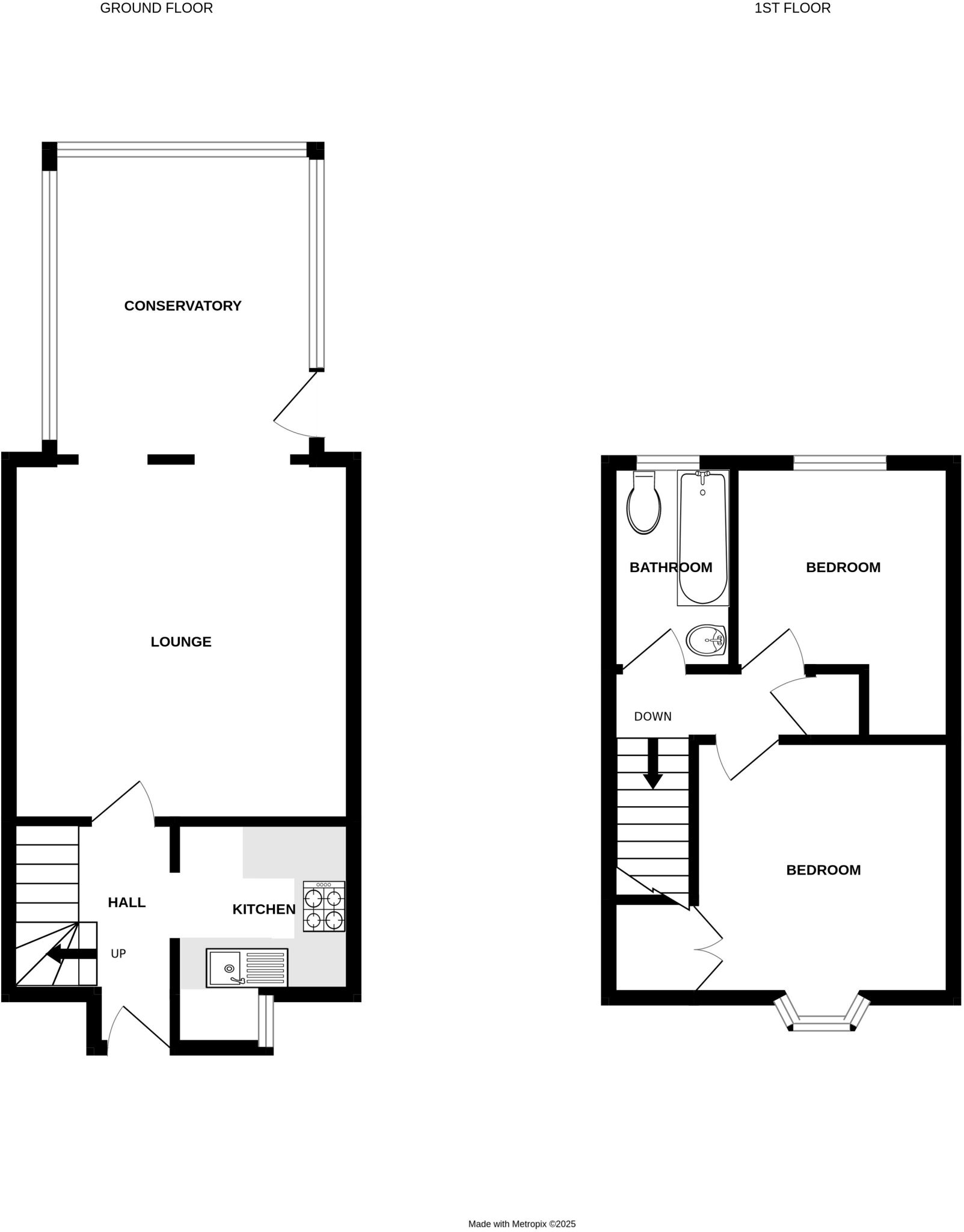
An opportunity to purchase this well planned end terraced property with larger than average garden on a well established corner plot enjoying a high degree of privacy in the rear garden. The house has two good size bedrooms, gas central heating, double glazing and an extension to the rear to incr...
Property Oracle says ..
Therefore, we give this property 7 / 10. *Disclaimer: This is our option and does constitute a recommendation or financial advice. Do your own research. *
- Price
- 6
- Condition
- 7
- Location
- 8
- Land
- 7
- Bedrooms
- 2
- Bathrooms
- 1
- Sqft (est)
- 686.00
The heatmap indicates the level of crime in the area. The color of the heatmap indicates the crime severity and recency.
Metrics Year-on-Year
- Average area value
- 450,680.00 £Increased by 2.66 %
- Est sale value
- 323,106.00 £Increased by 11.61 %
- Average area rental value
- 1,290.00 £/moIncreased by 8.77 %
- Est letting value
- 686.00 £/moUnchanged by 0.00 %
- Est rental Yield
- 3.43 %Increased by 5.86 %
- Crime Rate
- 7.00 %Unchanged by 0.00 %
from 438,987.00 £
from 289,492.00 £
from 1,186.00 £/mo
from 686.00 £/mo
from 3.24 %
from 7.00 %
Agent Activity
Julie Philpot created the listing.
Nearby Schools
| Name | Type | Ofsted | Distance |
|---|---|---|---|
| Park Hill Junior School | Community School | Good | 0.24 KM |
| Kenilworth School And Sixth Form | Academy Converter | 0.54 KM | |
| Crackley Hall School | Other Independent School | 0.83 KM | |
| Thorns Community Infant School | Community School | Good | 1.23 KM |
| St Nicholas Cofe Primary School | Voluntary Controlled School | Good | 1.56 KM |
Images
Nearby Streets
| Name | Average Price | Average Sqft | Distance |
|---|---|---|---|
| Field Close | £ 0 | 0 | 0.00 KM |
| Dalebrook Place | £ 0 | 0 | 0.00 KM |
| Hidcote Road | £ 0 | 0 | 0.00 KM |
| Cannadine Road | £ 375,000 | 0 | 0.00 KM |
| Denemoor Court | £ 0 | 0 | 0.00 KM |
Nearby Transport
| Name | NLC | TLC | Distance |
|---|---|---|---|
| Kenilworth | 7985 | KNW | 1.49 KM |
| Canley | 1129 | CNL | 5.65 KM |
| Tile Hill | 1035 | THL | 6.30 KM |
| Warwick | 4600 | WRW | 7.46 KM |
| Coventry | 1030 | COV | 7.74 KM |
Nearby Listings
| Address | Price | Type | Score | Distance |
|---|---|---|---|---|
| Sturley Close, Kenilworth | £ 289,950 | BUY | 7 / 10 | 0.00 KM |
| Sturley Close, Kenilworth, CV8 | £ 260,000 | BUY | 8 / 10 | 0.03 KM |
| Tisdale Rise, Kenilworth | £ 325,000 | BUY | 7 / 10 | 0.03 KM |
| Sturley Close, Kenilworth | £ 280,000 | BUY | Unknown | 0.04 KM |
| Sturley Close, Kenilworth | £ 275,000 | BUY | 7 / 10 | 0.04 KM |
Nearby Properties
| Address | Price | Distance |
|---|---|---|
| 14 Sturley Close | £ 169,000 | 0.04 KM |
| 2 Sturley Close | £ 222,000 | 0.04 KM |
| 17 Sturley Close | £ 154,000 | 0.04 KM |
| 31 Sturley Close | £ 249,000 | 0.04 KM |
| 19 Sturley Close | £ 189,950 | 0.04 KM |