Northwood Road, Prenton
BR

Northwood Road, Prenton

By Brennan Ayre O'Neill

£ 320,000

Reviews

2 out of 5 stars

Brennan Ayre O'Neill says ..

Bearing in mind how very few bungalows of any description come to market or indeed are available within the CH43/42 Postcodes, we suggest this particular dormer bungalow will be of interest to many variants of buyers; those purely looking for a 'down size' from their current home; those looking f...

Property Oracle says ..

This property is located on Northwood Road in Prenton, Wirral. The area benefits from nearby schools such as Prenton Primary School (rated good by Ofsted) and several others within a reasonable distance. Transport links include several Merseyrail stations within approximately 4km.

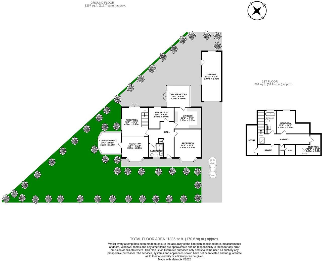
The property itself is a 3-bedroom, 2-bathroom house. While the images show a property with some character, particularly the interior design, it also shows signs of needing some modernisation and maintenance. The garden appears to be in need of attention. The property includes a conservatory and a garage.

Considering the average house price in the area is £243,499 and the average price per sqft is £203, the listed price of £320,000 requires further investigation due to the lack of sqft data for this property and the need for renovations. Comparable properties on Northwood Road have sold for significantly less, ranging from £69,950 to £180,000. However, other nearby properties have sold for higher prices, suggesting that the asking price may be justifiable if the property is larger than comparable properties on Northwood Road and the condition is improved. More information regarding the size of the property and the extent of necessary renovations is needed for a more precise valuation.

Therefore, we give this property 5 / 10. *Disclaimer: This is our option and does constitute a recommendation or financial advice. Do your own research. *

Price
6
Condition
5
Location
7
Land
4
Bedrooms
3
Bathrooms
2

The heatmap indicates the level of crime in the area. The color of the heatmap indicates the crime severity and recency.

Metrics Year-on-Year

Average area value
287,500.00 £
Increased by 19.71 %
from 240,163.00 £
Average area rental value
850.00 £/mo
Increased by 25.00 %
from 680.00 £/mo
Est rental Yield
3.55 %
Increased by 4.41 %
from 3.40 %
Crime Rate
12.00 %
Unchanged by 0.00 %
from 12.00 %

Agent Activity

  • Brennan Ayre O'Neill created the listing.

Nearby Schools

NameTypeOfstedDistance
Prenton Children'S CentreChildren's Centre Linked Site0.07 KM
Prenton Primary SchoolCommunity SchoolGood0.28 KM
Oxton St Saviour'S Cofe Aided Primary SchoolVoluntary Aided SchoolGood1.10 KM
Townfield Primary SchoolAcademy ConverterGood1.45 KM
Prenton Preparatory SchoolOther Independent School1.68 KM

Images

DSC_0002.JPG Screenshot 2025-03-10 095233.png DSC_0006.JPG DSC_0008.JPG DSC_0009.JPG DSC_0011.JPG DSC_0012.JPG DSC_0013.JPG DSC_0014.JPG DSC_0016.JPG DSC_0019.JPG DSC_0017.JPG DSC_0036.JPG DSC_0020.JPG DSC_0022.JPG DSC_0025.JPG DSC_0026.JPG DSC_0028.JPG DSC_0031.JPG DSC_0032.JPG DSC_0034.JPG DSC_0035.JPG DSC_0004.JPG DSC_0047.JPG DSC_0006.JPG DSC_0022.JPG DSC_0008.JPG DSC_0031.JPG DSC_0009.JPG DSC_0011.JPG DSC_0012.JPG DSC_0013.JPG DSC_0014.JPG DSC_0016.JPG DSC_0019.JPG DSC_0017.JPG DSC_0036.JPG DSC_0020.JPG DSC_0025.JPG DSC_0026.JPG DSC_0028.JPG DSC_0032.JPG DSC_0034.JPG DSC_0035.JPG Screenshot 2025-03-10 095233.png

Nearby Streets

NameAverage PriceAverage SqftDistance
Redwood Close £ 000.00 KM
Bryanston Road £ 630,00000.00 KM
Hartford Close £ 000.00 KM
OvertonClose £ 250,00000.00 KM
Mill Hill £ 000.00 KM

Nearby Transport

NameNLCTLCDistance
Birkenhead Park2220BKP3.67 KM
Upton (Merseyside)2141UPT3.88 KM
Birkenhead North2145BKN4.06 KM
Birkenhead Central2217BKC4.34 KM
Conway Park3624CNP4.50 KM

Nearby Listings

AddressPriceTypeScoreDistance
Northwood Road, Prenton £ 320,000BUY5 / 100.00 KM
Northwood Road, Prenton, CH43 £ 310,000BUY5 / 100.00 KM
Northwood Road, Prenton, Wirral £ 320,000BUY6 / 100.09 KM
Northwood Road, Prenton, CH43 £ 270,000BUY7 / 100.09 KM
Northwood Road, Prenton £ 280,000BUY7 / 100.11 KM

Nearby Properties

AddressPriceDistance
53 Northwood Road £ 172,0000.06 KM
41 Northwood Road £ 170,0000.06 KM
39 Northwood Road £ 69,9500.06 KM
51 Northwood Road £ 180,0000.06 KM
37 Northwood Road £ 154,0000.06 KM