7 Wordsworth Road, Thatcham, Berkshire, RG18 3FP
By Auction House London
£ 180,000
Reviews
2 out of 5 stars
Auction House London says ..
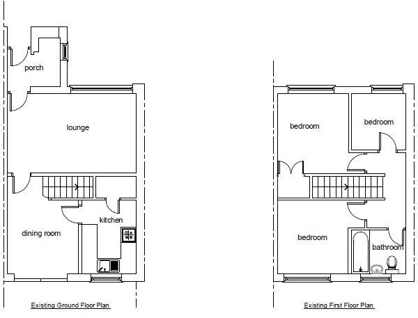
**For Sale By Public Auction 16th October 2025 09:30 AM To inspect the legal documents for this property go to our website to download the legal pack** A Vacant Five Room Mid Terrace House Freehold Guide Price = £180,000+ Location The property is situate...
Property Oracle says ..
7 Wordsworth Road is a terraced property in Thatcham, Berkshire, requiring significant renovation. The house has three bedrooms and is approximately 930 sq ft. While the location offers proximity to schools and transportation, the property’s condition is poor, reflected in the low list price. This property presents an opportunity for buyers willing to undertake a comprehensive refurbishment project.
Therefore, we give this property 5 / 10. *Disclaimer: This is our option and does constitute a recommendation or financial advice. Do your own research. *
- Price
- 8
- Condition
- 2
- Location
- 7
- Land
- 5
- Bedrooms
- 3
- Bathrooms
- 0
- Sqft (est)
- 930.00
The heatmap indicates the level of crime in the area. The color of the heatmap indicates the crime severity and recency.
Metrics Year-on-Year
- Average area value
- 456,667.00 £Increased by 7.33 %
- Est sale value
- 447,330.00 £Increased by 0.42 %
- Average area rental value
- 1,375.00 £/moIncreased by 25.00 %
- Est letting value
- 930.00 £/moUnchanged by 0.00 %
- Est rental Yield
- 3.61 %Increased by 16.45 %
- Crime Rate
- 18.00 %Unchanged by 0.00 %
Agent Activity
Auction House London created the listing.
Nearby Schools
| Name | Type | Ofsted | Distance |
|---|---|---|---|
| Whitelands Park Primary School | Academy Sponsor Led | Good | 0.15 KM |
| Central Family Hub - Thatcham | Children's Centre | 0.63 KM | |
| Thatcham Park Cofe Primary | Voluntary Controlled School | Good | 0.65 KM |
| Parsons Down Infant School | Community School | Good | 1.26 KM |
| Parsons Down Junior School | Community School | Good | 1.41 KM |
Images
Nearby Streets
| Name | Average Price | Average Sqft | Distance |
|---|---|---|---|
| Kendal Close | £ 0 | 0 | 0.00 KM |
| Kipling Close | £ 385,000 | 0 | 0.00 KM |
| Brownsfield Road | £ 0 | 0 | 0.00 KM |
| Tudor Court | £ 0 | 0 | 0.00 KM |
| Whitelands Road | £ 347,500 | 0 | 0.00 KM |
Nearby Transport
| Name | NLC | TLC | Distance |
|---|---|---|---|
| Thatcham | 3152 | THA | 2.85 KM |
| Newbury Racecourse | 3071 | NRC | 4.89 KM |
| Newbury | 3074 | NBY | 6.54 KM |
| Midgham | 3159 | MDG | 9.70 KM |
Nearby Listings
| Address | Price | Type | Score | Distance |
|---|---|---|---|---|
| 7 Wordsworth Road, Thatcham, Berkshire, RG18 3FP | £ 220,000 | BUY | 5 / 10 | 0.00 KM |
| 7 Wordsworth Road, Thatcham, Berkshire, RG18 3FP | £ 220,000 | BUY | 5 / 10 | 0.00 KM |
| 7 Wordsworth Road, Thatcham, Berkshire, RG18 3FP | £ 180,000 | BUY | 6 / 10 | 0.00 KM |
| 7 Wordsworth Road, Thatcham, Berkshire, RG18 3FP | £ 180,000 | BUY | 5 / 10 | 0.00 KM |
| Burns Walk, Thatcham, Berkshire, RG18 | £ 315,000 | BUY | 6 / 10 | 0.11 KM |
Nearby Properties
| Address | Price | Distance |
|---|---|---|
| 18 Wordsworth Road | £ 195,000 | 0.05 KM |
| 33 Wordsworth Road | £ 367,000 | 0.05 KM |
| 37 Wordsworth Road | £ 243,000 | 0.05 KM |
| 31 Wordsworth Road | £ 300,000 | 0.05 KM |
| 27 Wordsworth Road | £ 187,000 | 0.05 KM |