Farningham Road, Caterham, Surrey
By Cubitt & West
£ 300,000
Reviews
3 out of 5 stars
Cubitt & West says ..
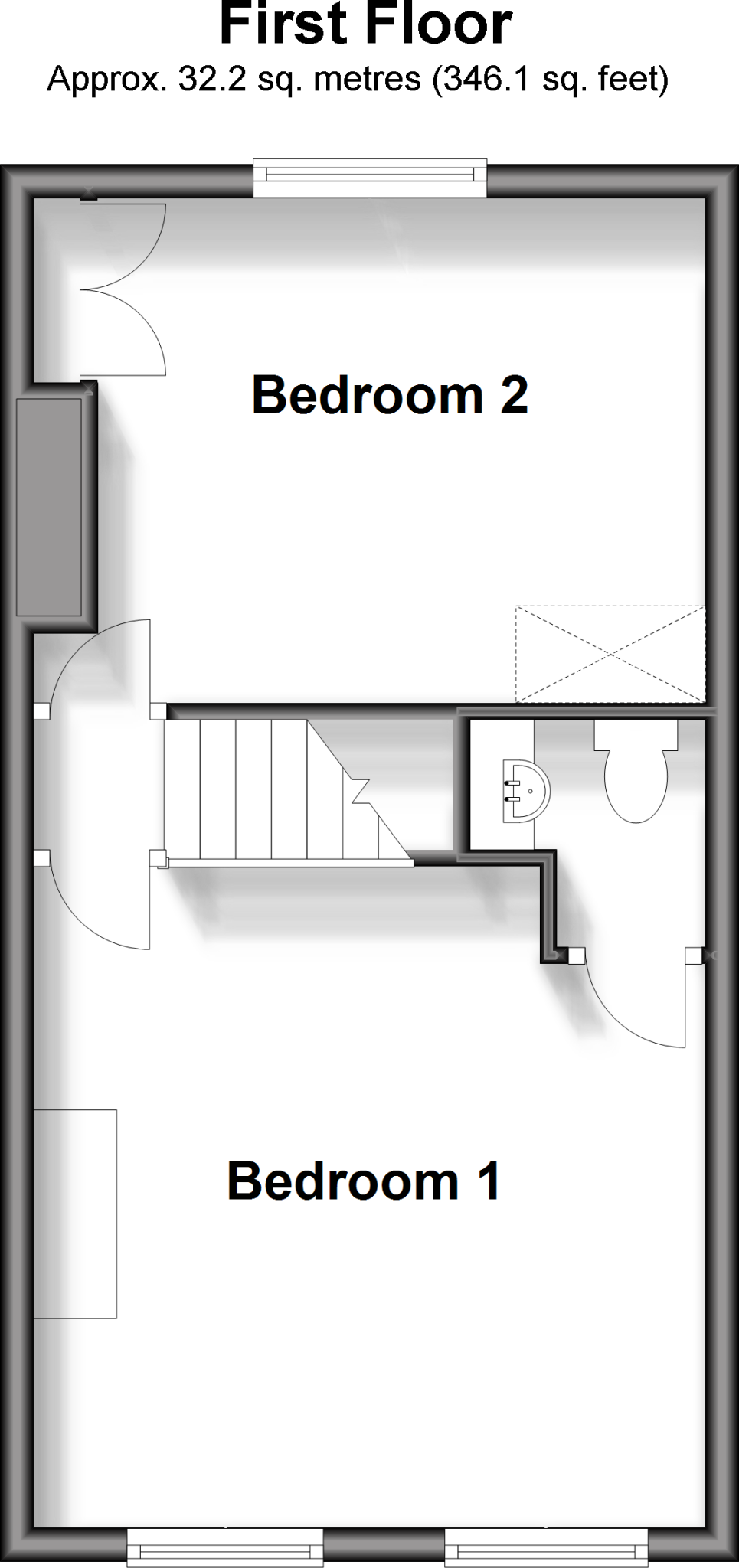
This beautifully presented split-level maisonette offers the perfect blend of house-like space and privacy, combined with the practicality and value of maisonette living. Set over two floors, it boasts two generously sized bedrooms upstairs, providing ample room for families, professionals, or th...
Property Oracle says ..
This is a 2-bedroom ground floor maisonette located on Farningham Road in Caterham, Surrey. The property is in reasonable condition and benefits from its proximity to Caterham railway station and local schools. However, the property has no garden and is relatively small. The property is overpriced compared to other properties in the area. Overall, this property would suit a first-time buyer or investor looking for a well-connected property close to local amenities. The maisonette offers convenient access to transportation and nearby schools, making it an attractive option for those prioritizing accessibility and local resources. While the lack of a private garden may be a drawback for some, the property’s modern features and overall condition present a comfortable living space.
Therefore, we give this property 6 / 10. *Disclaimer: This is our option and does constitute a recommendation or financial advice. Do your own research. *
- Price
- 6
- Condition
- 7
- Location
- 7
- Land
- 4
- Bedrooms
- 2
- Bathrooms
- 1
- Sqft (est)
- 375.00
The heatmap indicates the level of crime in the area. The color of the heatmap indicates the crime severity and recency.
Metrics Year-on-Year
- Average area value
- 399,804.00 £Increased by 21.66 %
- Est sale value
- 183,000.00 £Increased by 37.08 %
- Average area rental value
- 1,499.00 £/moIncreased by 9.18 %
- Est letting value
- 375.00 £/moUnchanged by 0.00 %
- Est rental Yield
- 4.50 %Decreased by 10.18 %
- Crime Rate
- 56.00 %Unchanged by 0.00 %
Agent Activity
Cubitt & West created the listing.
Nearby Schools
| Name | Type | Ofsted | Distance |
|---|---|---|---|
| Caterham Sure Start Children'S Centre | Children's Centre | 0.61 KM | |
| Essendene Lodge School | Other Independent School | 1.23 KM | |
| De Stafford School | Academy Converter | Good | 1.31 KM |
| St John'S Cofe Aided Primary School | Voluntary Aided School | Good | 1.33 KM |
| Sunnydown School | Community Special School | Good | 1.47 KM |
Images
Nearby Streets
| Name | Average Price | Average Sqft | Distance |
|---|---|---|---|
| Crescent Road | £ 553,000 | 0 | 0.00 KM |
| Mead Road | £ 385,000 | 0 | 0.00 KM |
| Grange Road | £ 1,350,000 | 0 | 0.00 KM |
| The Circle | £ 550,000 | 0 | 0.00 KM |
| Tillingdown Hill | £ 0 | 0 | 0.00 KM |
Nearby Transport
| Name | NLC | TLC | Distance |
|---|---|---|---|
| Caterham | 5351 | CAT | 0.20 KM |
| Whyteleafe South | 5439 | WHS | 2.18 KM |
| Upper Warlingham | 5391 | UWL | 2.75 KM |
| Woldingham | 5440 | WOH | 2.93 KM |
| Whyteleafe | 5396 | WHY | 2.94 KM |
Nearby Listings
| Address | Price | Type | Score | Distance |
|---|---|---|---|---|
| Farningham Road, Caterham, Surrey | £ 300,000 | BUY | 6 / 10 | 0.00 KM |
| Farningham Road, Caterham, Surrey | £ 198,500 | BUY | 6 / 10 | 0.00 KM |
| Farningham Road, Caterham, CR3 6LL | £ 415,000 | BUY | 6 / 10 | 0.00 KM |
| Farningham Road, Caterham, CR3 | £ 230,000 | BUY | 5 / 10 | 0.01 KM |
| 9B Farningham Road, Caterham, CR3 6LL | £ 165,000 | BUY | 6 / 10 | 0.01 KM |
Nearby Properties
| Address | Price | Distance |
|---|---|---|
| 29 Farningham Road | £ 225,000 | 0.01 KM |
| 21b Farningham Road | £ 107,000 | 0.01 KM |
| 37 Farningham Road | £ 395,000 | 0.01 KM |
| 19a Farningham Road | £ 185,000 | 0.01 KM |
| 41 Farningham Road | £ 345,000 | 0.01 KM |