Broad Walk, Blackheath
By Peter James Estate Agents
£ 775,000
Reviews
3 out of 5 stars
Peter James Estate Agents says ..
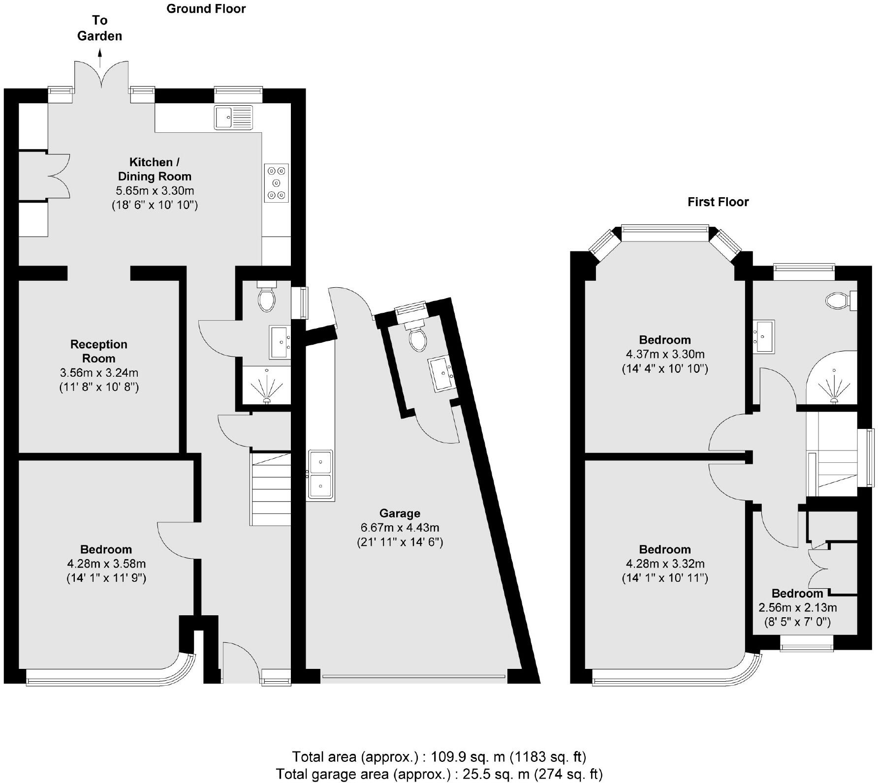
Immaculate three bedroom extended 1930's semi detached house with a large driveway, large rear garden and in excellent order throughout.
Property Oracle says ..
Therefore, we give this property 7 / 10. *Disclaimer: This is our option and does constitute a recommendation or financial advice. Do your own research. *
- Price
- 6
- Condition
- 7
- Location
- 8
- Land
- 7
- Bedrooms
- 3
- Bathrooms
- 2
- Sqft (est)
- 1,182.95
The heatmap indicates the level of crime in the area. The color of the heatmap indicates the crime severity and recency.
Metrics Year-on-Year
- Average area value
- 569,167.00 £Increased by 19.48 %
- Est sale value
- 720,416.55 £Increased by 8.17 %
- Average area rental value
- 1,814.00 £/moIncreased by 1.06 %
- Est letting value
- 1,182.95 £/moDecreased by 50.00 %
- Est rental Yield
- 3.82 %Decreased by 15.49 %
- Crime Rate
- 1.00 %Unchanged by 0.00 %
from 476,380.00 £
from 666,000.85 £
from 1,795.00 £/mo
from 2,365.90 £/mo
from 4.52 %
from 1.00 %
Agent Activity
Peter James Estate Agents created the listing.
Nearby Schools
| Name | Type | Ofsted | Distance |
|---|---|---|---|
| Storkway And Shooter'S Hill Children'S Centre | Children's Centre | 0.32 KM | |
| Kidbrooke Park Primary School | Community School | Good | 0.53 KM |
| Holy Family Catholic Primary School | Voluntary Aided School | Good | 0.76 KM |
| Newhaven Pupil Referral Unit | Pupil Referral Unit | Good | 0.78 KM |
| Thomas Tallis School | Community School | Good | 0.87 KM |
Images
Nearby Streets
| Name | Average Price | Average Sqft | Distance |
|---|---|---|---|
| Kidbrooke Park Road | £ 216,458 | 0 | 0.00 KM |
| Henley Cross | £ 0 | 0 | 0.00 KM |
| Banks Road | £ 0 | 0 | 0.00 KM |
| Anderson Road | £ 375,000 | 0 | 0.00 KM |
| Kimbell Place | £ 300,000 | 0 | 0.00 KM |
Nearby Transport
| Name | NLC | TLC | Distance |
|---|---|---|---|
| Kidbrooke | 5108 | KDB | 0.83 KM |
| Eltham | 5103 | ELW | 2.32 KM |
| Charlton | 5144 | CTN | 2.37 KM |
| Westcombe Park | 5151 | WCB | 2.69 KM |
| Blackheath | 5095 | BKH | 2.79 KM |
Nearby Listings
| Address | Price | Type | Score | Distance |
|---|---|---|---|---|
| Broad Walk, Blackheath | £ 775,000 | BUY | 7 / 10 | 0.00 KM |
| Broad Walk, London, SE3 | £ 800,000 | BUY | 7 / 10 | 0.06 KM |
| Broad Walk, London, SE3 | £ 550,000 | BUY | 6 / 10 | 0.06 KM |
| Rochester Way, Blackheath, SE3 | £ 750,000 | BUY | 7 / 10 | 0.11 KM |
| Rochester Way, London, SE3 | £ 700,000 | BUY | 7 / 10 | 0.15 KM |
Nearby Properties
| Address | Price | Distance |
|---|---|---|
| 32 Broad Walk | £ 295,000 | 0.05 KM |
| 58 Broad Walk | £ 182,000 | 0.05 KM |
| 24 Broad Walk | £ 107,500 | 0.05 KM |
| 30 Broad Walk | £ 350,000 | 0.05 KM |
| 14 Broad Walk | £ 457,200 | 0.05 KM |