Walwyn Road, Colwall, Malvern, Herefordshire, WR13 6QW
By Price Estate Agents
£ 595,000
Reviews
3 out of 5 stars
Price Estate Agents says ..
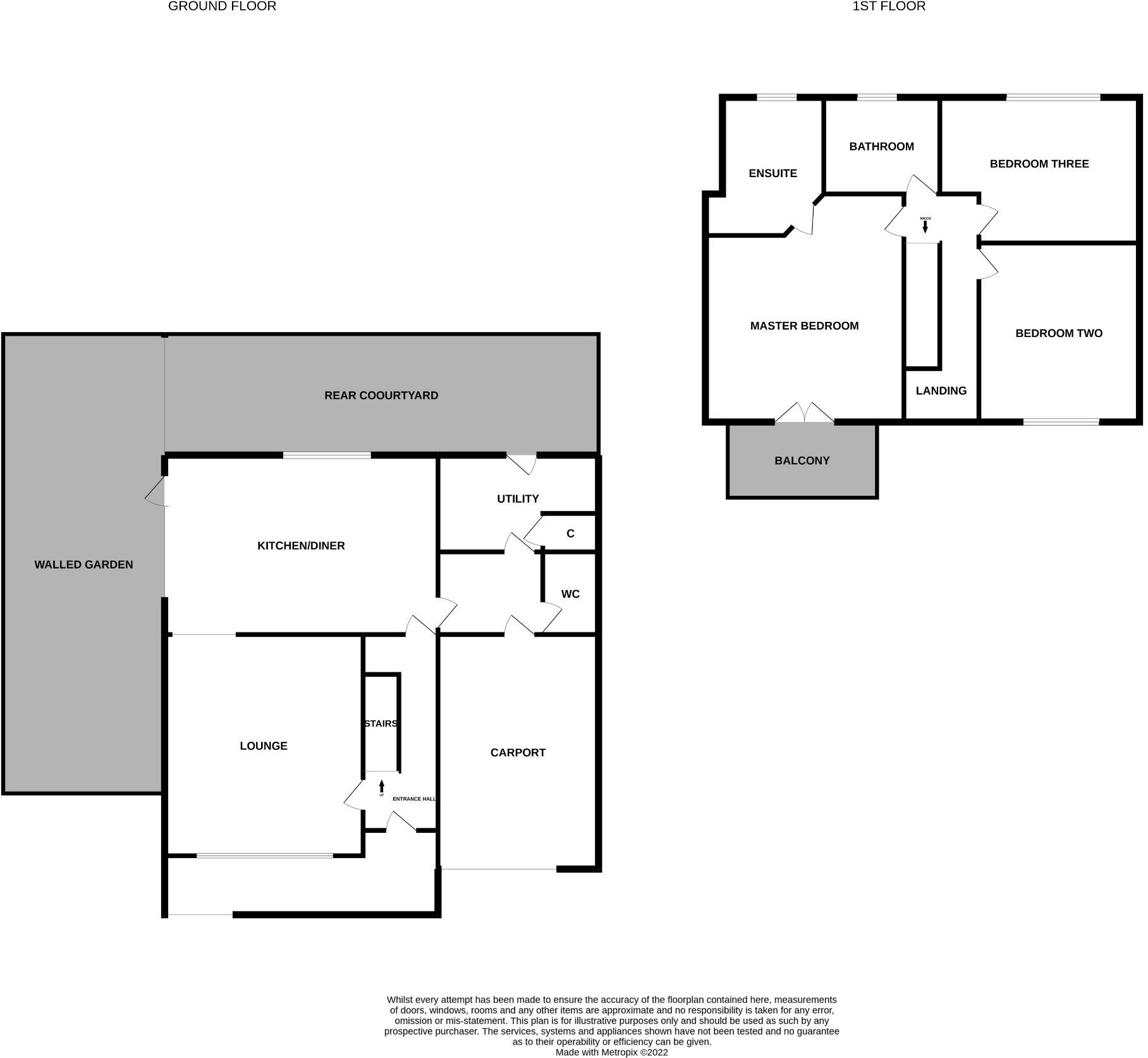
Currently under construction. Brand new architect designed three bedroom detached house over 1800sqft nestled in the sought after and well served village of Colwall. High quality finish and specification throughout.
Property Oracle says ..
This property is a newly built or extensively renovated three-bedroom, two-bathroom house located in the village of Colwall, Herefordshire. Colwall is a sought-after area, offering a tranquil setting with access to amenities and transport links. The property’s modern design is evident in the architectural style and finishes visible in the photographs. The exterior appears well-maintained, suggesting a high standard of construction. The garden, while present, seems relatively small. The list price of £595,000 appears to be competitive with other properties in the area, but a more detailed assessment would require further information, including internal photographs and a complete specification. The proximity to Colwall train station and several schools, including a ‘Good’-rated primary school, adds to its appeal. However, the lack of precise plot size data and more detailed information on the property’s internal features and finishes limits a comprehensive evaluation.
Therefore, we give this property 6 / 10. *Disclaimer: This is our option and does constitute a recommendation or financial advice. Do your own research. *
- Price
- 7
- Condition
- 8
- Location
- 7
- Land
- 4
- Bedrooms
- 3
- Bathrooms
- 2
- Sqft (est)
- 1,000.00
The heatmap indicates the level of crime in the area. The color of the heatmap indicates the crime severity and recency.
Metrics Year-on-Year
- Average area value
- 225,619.00 £Decreased by 6.60 %
- Est sale value
- 217,000.00 £Decreased by 18.73 %
- Average area rental value
- 850.00 £/moDecreased by 4.92 %
- Est letting value
- 0.00 £/mo
- Est rental Yield
- 4.52 %Increased by 1.80 %
- Crime Rate
- 9.00 %Unchanged by 0.00 %
Agent Activity
Price Estate Agents created the listing.
Nearby Schools
| Name | Type | Ofsted | Distance |
|---|---|---|---|
| The Downs, Malvern College Prep School | Other Independent School | 0.50 KM | |
| Colwall Cofe Primary School | Voluntary Controlled School | Good | 1.38 KM |
| The Elms School | Other Independent School | 1.46 KM | |
| Malvern Wyche Cofe Primary School | Voluntary Controlled School | Good | 2.71 KM |
| Malvern Wells Cofe Primary School | Voluntary Aided School | Requires improvement | 2.72 KM |
Images
Nearby Streets
| Name | Average Price | Average Sqft | Distance |
|---|---|---|---|
| Acorn Close | £ 625,000 | 0 | 0.00 KM |
| The Orchards | £ 0 | 0 | 0.00 KM |
| Parkside | £ 0 | 0 | 0.00 KM |
| Crescent Road | £ 530,000 | 0 | 0.00 KM |
| Chase Road | £ 0 | 0 | 0.00 KM |
Nearby Transport
| Name | NLC | TLC | Distance |
|---|---|---|---|
| Colwall | 4876 | CWL | 0.34 KM |
| Great Malvern | 4892 | GMV | 5.08 KM |
| Malvern Link | 4884 | MVL | 6.22 KM |
| Ledbury | 4784 | LED | 8.81 KM |
Nearby Listings
| Address | Price | Type | Score | Distance |
|---|---|---|---|---|
| Walwyn Road, Colwall, Malvern, Herefordshire, WR13 6QW | £ 595,000 | BUY | 6 / 10 | 0.00 KM |
| Lime Tree Gardens, Walwyn Road, Colwall, Malvern, Herefordshire, WR13 | £ 545,000 | BUY | 7 / 10 | 0.05 KM |
| Oak Drive, Colwall, Malvern, Herefordshire, WR13 | £ 625,000 | BUY | 8 / 10 | 0.12 KM |
| Colwall, Nr. Malvern | £ 1,000,000 | BUY | 7 / 10 | 0.21 KM |
| 5 Oak Drive, Colwall, Herefordshire, WR13 | £ 450,000 | BUY | 6 / 10 | 0.22 KM |
Nearby Properties
| Address | Price | Distance |
|---|---|---|
| Holmleigh | £ 850,000 | 0.14 KM |
| New Court | £ 810,000 | 0.14 KM |
| Hadley | £ 420,000 | 0.14 KM |
| The Gables | £ 1,200,000 | 0.14 KM |
| The Grey House | £ 650,000 | 0.14 KM |