Devonshire Road, Chiswick, London
By Clements Habba
£ 2,500,000
Reviews
3 out of 5 stars
Clements Habba says ..
An exceptional opportunity to acquire a prime development site located in the heart of Chiswick, London.
Property Oracle says ..
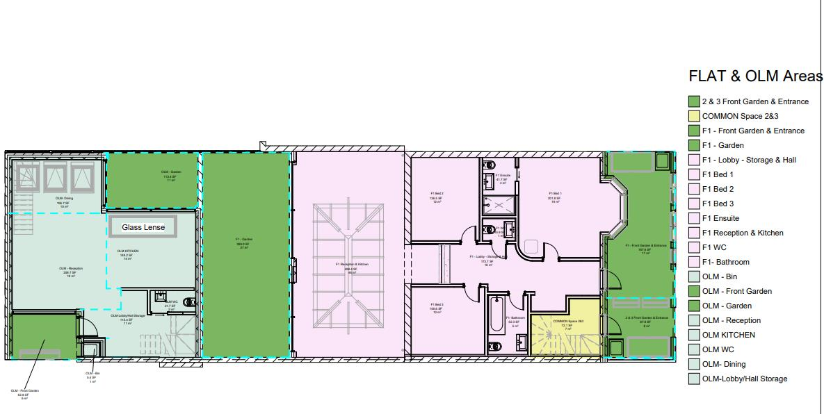
This property is located in the desirable Chiswick Homefields area of London, known for its excellent schools and transport links. The property itself is a large terraced house with a significant extension to the rear, creating a substantial amount of living space. While the provided images show a property that appears to be in good condition and recently renovated, the lack of plot size data prevents a full assessment of the land. The list price of £2,500,000 is significantly higher than the average price for the area (£1,347,876), but the size of the property (2,916.70 sqft) and the number of bedrooms and bathrooms (9 bedrooms, 7 bathrooms) could justify a higher price per square foot. More information on the plot size and a detailed internal inspection would be needed to fully assess the value.
Therefore, we give this property 7 / 10. *Disclaimer: This is our option and does constitute a recommendation or financial advice. Do your own research. *
- Price
- 6
- Condition
- 9
- Location
- 10
- Land
- 3
- Bedrooms
- 9
- Bathrooms
- 7
- Sqft (est)
- 2,916.70
The heatmap indicates the level of crime in the area. The color of the heatmap indicates the crime severity and recency.
Metrics Year-on-Year
- Average area value
- 953,000.00 £Decreased by 11.81 %
- Est sale value
- 1,957,105.70 £Decreased by 19.45 %
- Average area rental value
- 1,783.00 £/moDecreased by 30.51 %
- Est letting value
- 2,916.70 £/moUnchanged by 0.00 %
- Est rental Yield
- 2.25 %Decreased by 21.05 %
- Crime Rate
- 7.00 %Unchanged by 0.00 %
Agent Activity
Clements Habba created the listing.
Nearby Schools
| Name | Type | Ofsted | Distance |
|---|---|---|---|
| The William Hogarth Primary School | Community School | Good | 0.19 KM |
| Chiswick Children'S Centre | Children's Centre Linked Site | 0.30 KM | |
| St Mary'S Catholic Primary School ,Chiswick | Voluntary Aided School | Good | 0.35 KM |
| Artsed Day School And Sixth Form | Other Independent School | 0.74 KM | |
| Chiswick And Bedford Park Preparatory School | Other Independent School | 0.77 KM |
Images
Nearby Streets
| Name | Average Price | Average Sqft | Distance |
|---|---|---|---|
| Wood Street | £ 0 | 0 | 0.00 KM |
| Alkerden Road | £ 0 | 0 | 0.00 KM |
| Ingress Street | £ 0 | 0 | 0.00 KM |
| Elliott Road | £ 0 | 0 | 0.00 KM |
| Turnham Green Terrace | £ 0 | 0 | 0.00 KM |
Nearby Transport
| Name | NLC | TLC | Distance |
|---|---|---|---|
| Chiswick | 5583 | CHK | 1.72 KM |
| Barnes Bridge | 5580 | BNI | 1.99 KM |
| South Acton | 1452 | SAT | 2.02 KM |
| Gunnersbury | 5588 | GUN | 2.26 KM |
| Acton Central | 1404 | ACC | 2.29 KM |
Nearby Listings
| Address | Price | Type | Score | Distance |
|---|---|---|---|---|
| Devonshire Road, Chiswick, London | £ 2,500,000 | BUY | 7 / 10 | 0.00 KM |
| Devonshire Road, Chiswick | £ 600,000 | BUY | Unknown | 0.02 KM |
| Devonshire Road, Chiswick, London, W4 | £ 900,000 | BUY | 6 / 10 | 0.03 KM |
| Devonshire Road, London, W4. | £ 1,700,000 | BUY | 4 / 10 | 0.04 KM |
| Dale Street, Chiswick, W4 | £ 1,600,000 | BUY | 6 / 10 | 0.07 KM |
Nearby Properties
| Address | Price | Distance |
|---|---|---|
| 92 Devonshire Road | £ 571,000 | 0.02 KM |
| 84 Devonshire Road | £ 1,300,000 | 0.02 KM |
| 82 Devonshire Road | £ 700,000 | 0.02 KM |
| 86 Devonshire Road | £ 815,000 | 0.02 KM |
| 76 Devonshire Road | £ 1,102,005 | 0.02 KM |