Williams Road, Shoreham by Sea
By Jacobs Steel
£ 225,000
Reviews
3 out of 5 stars
Jacobs Steel says ..
We are delighted to offer for sale this spacious studio apartment situated over three floors benefitting from feature private rear garden and off road parking
Property Oracle says ..
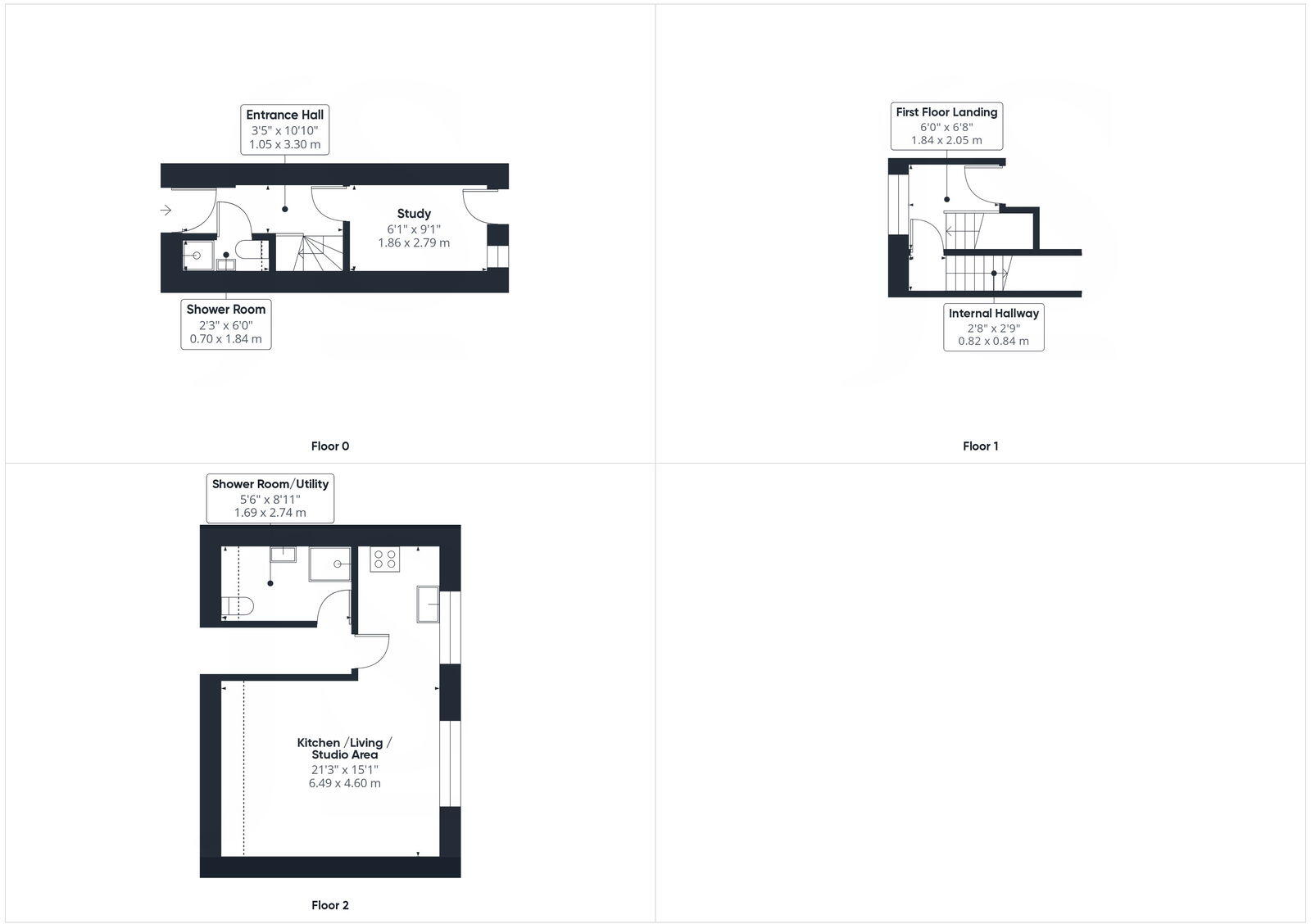
This property is a studio apartment located on Williams Road in Shoreham-by-Sea, West Sussex. The area benefits from nearby transportation links, including Shoreham-by-Sea train station approximately 2km away, providing convenient access to Brighton and other locations. There are also several schools within a reasonable distance, including Shoreham Academy (rated Outstanding by Ofsted) and Herons Dale School (rated Good). The property itself is presented in good condition and benefits from a small, enclosed rear garden with decking. However, the list price of £225,000 is significantly lower than the average house price in the area (£705,248) and the average price per sqft (£498). This could be due to the small size of the property (479.42 sqft) and the fact that it is a studio apartment rather than a house. Nearby properties on Williams Road have sold for prices ranging from £197,000 to £420,000, which provides some context to the listing price. While the property is presented well and in a convenient location, potential buyers should carefully consider the size and type of property in relation to the price before making an offer.
Therefore, we give this property 6 / 10. *Disclaimer: This is our option and does constitute a recommendation or financial advice. Do your own research. *
- Price
- 6
- Condition
- 8
- Location
- 7
- Land
- 6
- Bedrooms
- 0
- Bathrooms
- 2
- Sqft (est)
- 479.42
The heatmap indicates the level of crime in the area. The color of the heatmap indicates the crime severity and recency.
Metrics Year-on-Year
- Average area value
- 830,864.00 £Increased by 21.56 %
- Est sale value
- 424,766.12 £Increased by 57.65 %
- Average area rental value
- 1,899.00 £/moIncreased by 17.22 %
- Est letting value
- 958.84 £/moIncreased by 100.00 %
- Est rental Yield
- 2.74 %Decreased by 3.52 %
- Crime Rate
- 5.00 %Unchanged by 0.00 %
Agent Activity
Jacobs Steel created the listing.
Nearby Schools
| Name | Type | Ofsted | Distance |
|---|---|---|---|
| Shoreham College | Other Independent School | 0.81 KM | |
| Shoreham Academy | Academy Sponsor Led | Outstanding | 0.82 KM |
| Kingston Buci Children & Family Centre | Children's Centre | 0.89 KM | |
| Herons Dale School | Community Special School | Good | 1.00 KM |
| Holmbush Primary Academy | Academy Converter | Good | 1.10 KM |
Images
Nearby Streets
| Name | Average Price | Average Sqft | Distance |
|---|---|---|---|
| Middle Road | £ 300,000 | 0 | 0.00 KM |
| Middle Road | £ 325,000 | 0 | 0.00 KM |
| Chiltern Close | £ 400,000 | 0 | 0.00 KM |
| Kent Close | £ 0 | 0 | 0.00 KM |
| Royal George Parade | £ 0 | 0 | 0.00 KM |
Nearby Transport
| Name | NLC | TLC | Distance |
|---|---|---|---|
| Southwick | 5286 | SWK | 1.94 KM |
| Shoreham-By-Sea | 5277 | SSE | 2.09 KM |
| Fishersgate | 5284 | FSG | 3.72 KM |
| Portslade | 5276 | PLD | 5.27 KM |
| Aldrington | 5280 | AGT | 7.65 KM |
Nearby Listings
| Address | Price | Type | Score | Distance |
|---|---|---|---|---|
| Williams Road, Shoreham by Sea | £ 225,000 | BUY | 6 / 10 | 0.00 KM |
| Williams Road, Shoreham by Sea | £ 600,000 | BUY | 7 / 10 | 0.00 KM |
| Williams Road, Shoreham by Sea | £ 375,000 | BUY | 7 / 10 | 0.01 KM |
| Williams Road, Shoreham-by-Sea | £ 350,000 | BUY | 7 / 10 | 0.08 KM |
| Williams Road, Shoreham-by-Sea | £ 300,000 | BUY | 6 / 10 | 0.08 KM |
Nearby Properties
| Address | Price | Distance |
|---|---|---|
| 100 Williams Road | £ 370,000 | 0.06 KM |
| 104 Williams Road | £ 420,000 | 0.06 KM |
| 92 Williams Road | £ 218,000 | 0.06 KM |
| 90 Williams Road | £ 190,000 | 0.06 KM |
| 66 Williams Road | £ 325,000 | 0.06 KM |