High Street, Martin, Lincoln, LN4
Pygott & Crone logo

High Street, Martin, Lincoln, LN4

By Pygott & Crone

£ 220,000

Reviews

3 out of 5 stars

Pygott & Crone says ..

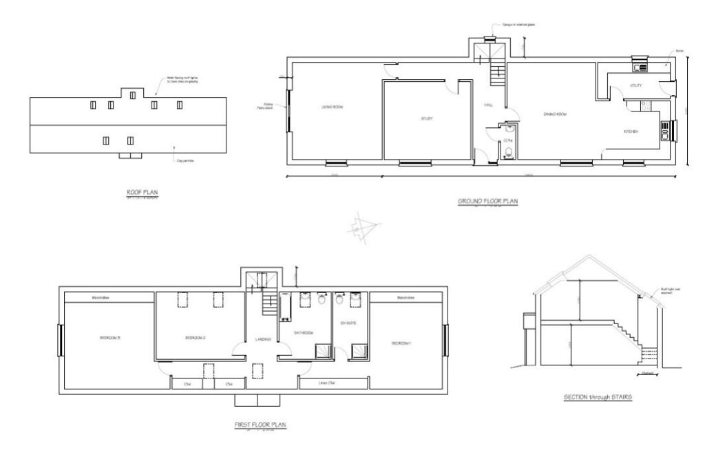
Modern Method Of Auction - T & C's ApplyUnusual but exciting opportunity and offered for sale with no onward chain. All on one title are two adjoining one bedroomed bungalows together with gardens that have planning permission for the erection of a detached thr...

Property Oracle says ..

This is a detached bungalow located on High Street, Martin, Lincoln. It features 5 bedrooms and 4 bathrooms. The property appears to be in generally good condition, with a modern kitchen and bathroom, and includes a substantial garden. The location is in a village setting with access to local amenities, including a nearby primary school. The asking price of £220,000 seems reasonable given the property’s features and location. The property could be appealing to families or those seeking a spacious home with a large garden in a village environment.

Therefore, we give this property 7 / 10. *Disclaimer: This is our option and does constitute a recommendation or financial advice. Do your own research. *

Price
8
Condition
7
Location
6
Land
7
Bedrooms
5
Bathrooms
4

The heatmap indicates the level of crime in the area. The color of the heatmap indicates the crime severity and recency.

Metrics Year-on-Year

Average area value
921,429.00 £
Increased by 70.18 %
from 541,443.00 £
Average area rental value
1,672.00 £/mo
Decreased by 4.68 %
from 1,754.00 £/mo
Est rental Yield
2.18 %
Decreased by 43.96 %
from 3.89 %
Crime Rate
45.00 %
Unchanged by 0.00 %
from 45.00 %

Agent Activity

  • Pygott & Crone created the listing.

Nearby Schools

NameTypeOfstedDistance
Mrs Mary King'S Cofe (Controlled) Primary SchoolVoluntary Controlled SchoolGood0.83 KM
Walcott Primary SchoolCommunity SchoolRequires improvement3.43 KM
The Billinghay Church Of England Primary SchoolVoluntary Controlled SchoolGood6.22 KM
Billinghay Children'S CentreChildren's Centre Linked Site6.40 KM
Digby Church Of England SchoolVoluntary Controlled SchoolRequires improvement9.01 KM

Images

1277425 (9) 1277425 (1) 3 1277425 (4) 1277425 (2) 1277425 (5) 1277425 (3) 1277425 (6) 1277425 (18) 1277425 (14) 1277425 (17) 1277425 (10) 1277425 (20) 1277425 (16) 1277425 (22) 1277425 (11) 1277425 (12) 1277425 (7) 1277425 (21) 1277425 (15) Map 1 2 Map Proposed Elevations Proposed Floor Plans Proposed Site Plan

Nearby Streets

NameAverage PriceAverage SqftDistance
Linwood Road £ 000.00 KM

Nearby Transport

NameNLCTLCDistance
Metheringham6297MGM8.06 KM

Nearby Listings

AddressPriceTypeScoreDistance
High Street, Martin, Lincoln, LN4 £ 220,000BUY7 / 100.00 KM
High Street, Martin, Lincoln, LN4 £ 325,000BUY6 / 100.00 KM
94 High Street, Martin, Lincoln, Lincolnshire, LN4 £ 350,000BUY6 / 100.00 KM
The Low Barn, High Street, Martin, Lincolnshire, LN4 3QY £ 475,000BUYUnknown0.04 KM
High Street, Lincoln, LN4 £ 320,000BUY7 / 100.06 KM

Nearby Properties

AddressPriceDistance
71 High Street £ 182,0000.06 KM
43 High Street £ 155,9500.06 KM
Stepping Stone £ 310,0000.06 KM
61a High Street £ 154,9500.06 KM
17 High Street £ 275,0000.06 KM