Carman Friend says ..
Tucked away at the very end of Cambrian Road, the position of this end terraced property is truly unique, nestled alongside the canal which boasts a certain a tranquil feeling.
Property Oracle says ..
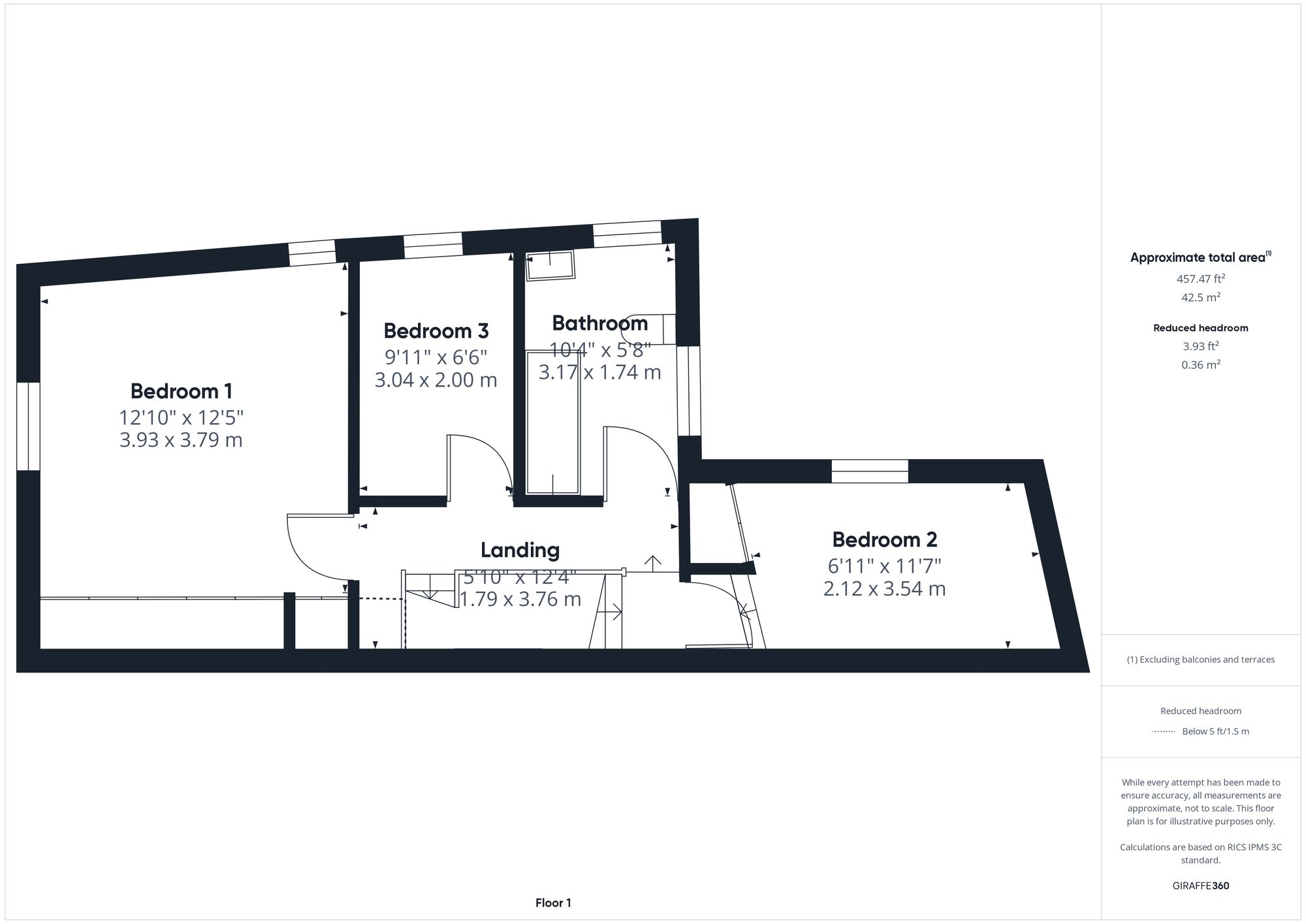
This property is a 3 bedroom end of terrace house located in Chester. It is situated on Cambrian Road, which is within Chester City & The Garden Quarter. The property benefits from being close to local amenities, schools and transport links. The property itself appears to be in good condition and has been recently renovated to a high standard. The property also benefits from having a rear garden. The list price is slightly above the average price for the area, however given the condition, location and size of the property, it could be considered good value for money.
Therefore, we give this property 8 / 10. *Disclaimer: This is our option and does constitute a recommendation or financial advice. Do your own research. *
- Price
- 8
- Condition
- 9
- Location
- 9
- Land
- 7
- Bedrooms
- 3
- Bathrooms
- 1
- Sqft (est)
- 475.33
The heatmap indicates the level of crime in the area. The color of the heatmap indicates the crime severity and recency.
Metrics Year-on-Year
- Average area value
- 260,000.00 £Decreased by 8.00 %
- Est sale value
- 149,253.62 £Increased by 25.10 %
- Average area rental value
- 1,117.00 £/moIncreased by 13.40 %
- Est letting value
- 475.33 £/mo
- Est rental Yield
- 5.16 %Increased by 23.44 %
- Crime Rate
- 6.00 %Unchanged by 0.00 %
Agent Activity
Carman Friend marked this listing as sold.
Carman Friend created the listing.
Nearby Schools
| Name | Type | Ofsted | Distance |
|---|---|---|---|
| Chester Victoria Children'S Centre | Children's Centre Linked Site | 0.24 KM | |
| University Of Chester | Higher Education Institutions | 0.38 KM | |
| Chester Blue Coat Church Of England Primary School | Voluntary Aided School | Good | 0.43 KM |
| The Queen'S School | Other Independent School | 0.71 KM | |
| Abbey School For Exceptional Children | Other Independent Special School | 1.11 KM |
Images
Nearby Streets
| Name | Average Price | Average Sqft | Distance |
|---|---|---|---|
| Deva Link | £ 550,000 | 0 | 0.00 KM |
| Prince Rupert's Trench | £ 0 | 0 | 0.00 KM |
| Garden Court | £ 0 | 0 | 0.00 KM |
| Rufus Court | £ 0 | 0 | 0.00 KM |
| Abbey Green | £ 0 | 0 | 0.00 KM |
Nearby Transport
| Name | NLC | TLC | Distance |
|---|---|---|---|
| Bache | 2187 | BAC | 1.70 KM |
| Chester | 2412 | CTR | 2.33 KM |
| Capenhurst | 2186 | CPU | 8.46 KM |
| Ellesmere Port | 2121 | ELP | 9.55 KM |
Nearby Listings
| Address | Price | Type | Score | Distance |
|---|---|---|---|---|
| Cambrian Road, Chester, CH1 | £ 310,000 | BUY | 8 / 10 | 0.00 KM |
| Cambrian Road, Chester, Cheshire | £ 280,000 | BUY | 8 / 10 | 0.05 KM |
| Upper Cambrian Road, Chester | £ 240,000 | BUY | 6 / 10 | 0.06 KM |
| Upper Cambrian Road, Chester, Cheshire, CH1 | £ 240,000 | BUY | 6 / 10 | 0.07 KM |
| Upper Cambrian Road | £ 230,000 | BUY | 6 / 10 | 0.07 KM |
Nearby Properties
| Address | Price | Distance |
|---|---|---|
| 17 Cambrian Road | £ 169,950 | 0.05 KM |
| 11 Cambrian Road | £ 156,000 | 0.05 KM |
| 14 Cambrian Road | £ 163,500 | 0.05 KM |
| 13 Cambrian Road | £ 165,000 | 0.05 KM |
| 16 Cambrian Road | £ 197,000 | 0.05 KM |