Edge View Crescent, Merrymans Lane, Alderley Edge
By Gascoigne Halman
£ 550,000
Reviews
3 out of 5 stars
Gascoigne Halman says ..
A well balanced and high specification home of distinction. Enjoying a favourable location within this modern gated development. Boasting a generous plot surrounded by open farmland and conveniently positioned for all amenities within Alderley Edge village.
Property Oracle says ..
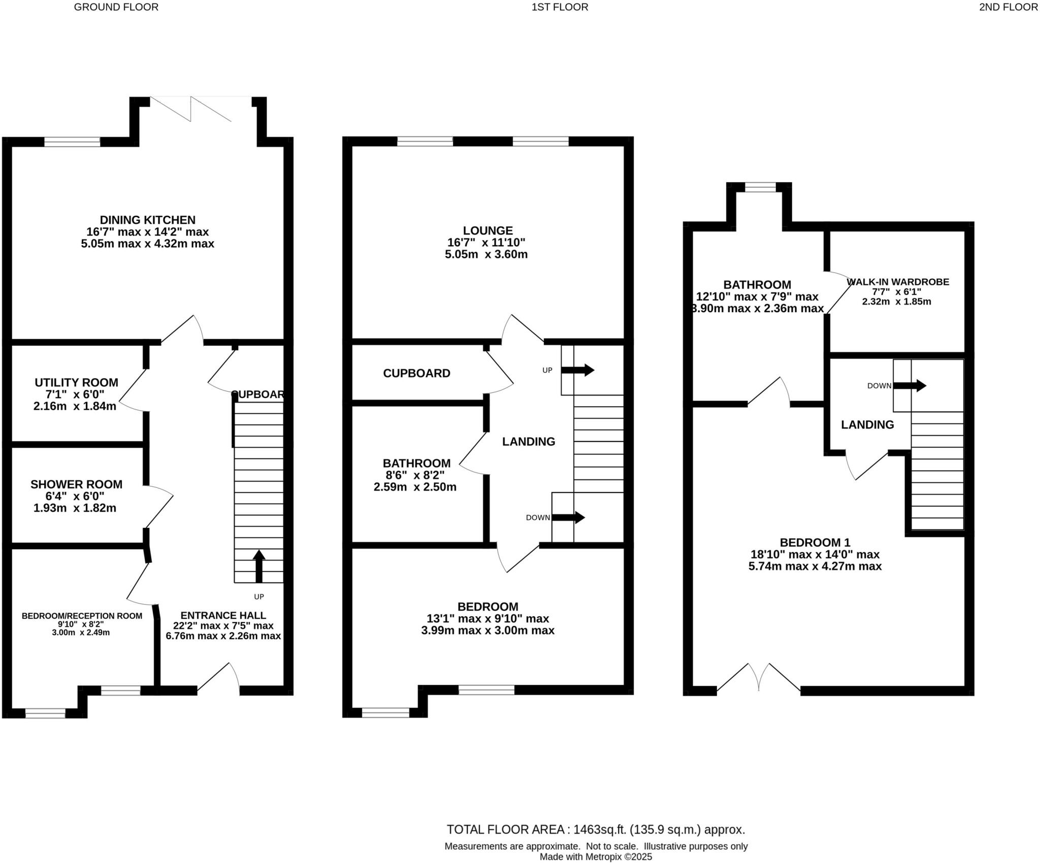
This is a well-presented, modern end-of-terrace property in a sought-after location. The interior is in excellent condition, with a contemporary kitchen and stylish bathrooms. The garden provides a pleasant outdoor space. While the square footage is unknown, the property offers three bedrooms and three bathrooms, making it suitable for a family. The proximity to good schools and transportation links adds to its appeal.
Therefore, we give this property 7 / 10. *Disclaimer: This is our option and does constitute a recommendation or financial advice. Do your own research. *
- Price
- 7
- Condition
- 9
- Location
- 7
- Land
- 7
- Bedrooms
- 3
- Bathrooms
- 3
The heatmap indicates the level of crime in the area. The color of the heatmap indicates the crime severity and recency.
Metrics Year-on-Year
- Average area value
- 607,999.00 £Decreased by 19.74 %
- Average area rental value
- 1,708.00 £/moDecreased by 59.57 %
- Est rental Yield
- 3.37 %Decreased by 49.63 %
- Crime Rate
- 0.00 %
Agent Activity
Gascoigne Halman created the listing.
Nearby Schools
| Name | Type | Ofsted | Distance |
|---|---|---|---|
| David Lewis School | Non-maintained Special School | Good | 1.76 KM |
| The David Lewis Centre | Special Post 16 Institution | Outstanding | 1.76 KM |
| Chelford Cofe Primary School | Voluntary Controlled School | Good | 2.59 KM |
| Lindow Community Primary School | Community School | Good | 2.75 KM |
| The Ryleys School | Other Independent School | 3.18 KM |
Images
Nearby Transport
| Name | NLC | TLC | Distance |
|---|---|---|---|
| Chelford (Cheshire) | 2764 | CEL | 2.54 KM |
| Alderley Edge | 2760 | ALD | 3.97 KM |
| Wilmslow | 2774 | WML | 6.30 KM |
| Styal | 2868 | SYA | 7.20 KM |
| Mobberley | 2849 | MOB | 8.22 KM |
Nearby Listings
| Address | Price | Type | Score | Distance |
|---|---|---|---|---|
| Edge View Crescent, Merrymans Lane, Alderley Edge | £ 595,000 | BUY | 8 / 10 | 0.00 KM |
| Edge View Crescent, Merrymans Lane, Alderley Edge | £ 550,000 | BUY | 7 / 10 | 0.00 KM |
| Edge View Crescent, Merrymans Lane, Alderley Edge | £ 499,995 | BUY | 7 / 10 | 0.03 KM |
| Merrymans Lane, Alderley Edge, Cheshire, SK9 | £ 500,000 | BUY | 8 / 10 | 0.03 KM |
| Edge View Crescent, Merrymans Lane, Alderley Edge | £ 550,000 | BUY | 8 / 10 | 0.15 KM |
Nearby Properties
| Address | Price | Distance |
|---|---|---|
| Dane Villa Farm | £ 1,095,000 | 0.57 KM |
| Swan Bank | £ 770,000 | 0.57 KM |
| Manorfield | £ 425,000 | 0.57 KM |
| Beyond The Edge | £ 2,900,000 | 0.57 KM |
| Kynnersley | £ 685,000 | 0.57 KM |