Barnard Marcus says ..
AUCTION SALE 16 December 2025 - Freehold three floor terrace houseFull vacant possessionTO SELL YOUR PROPERTY IN OUR NEXT AUCTION CALL US NOW
Property Oracle says ..
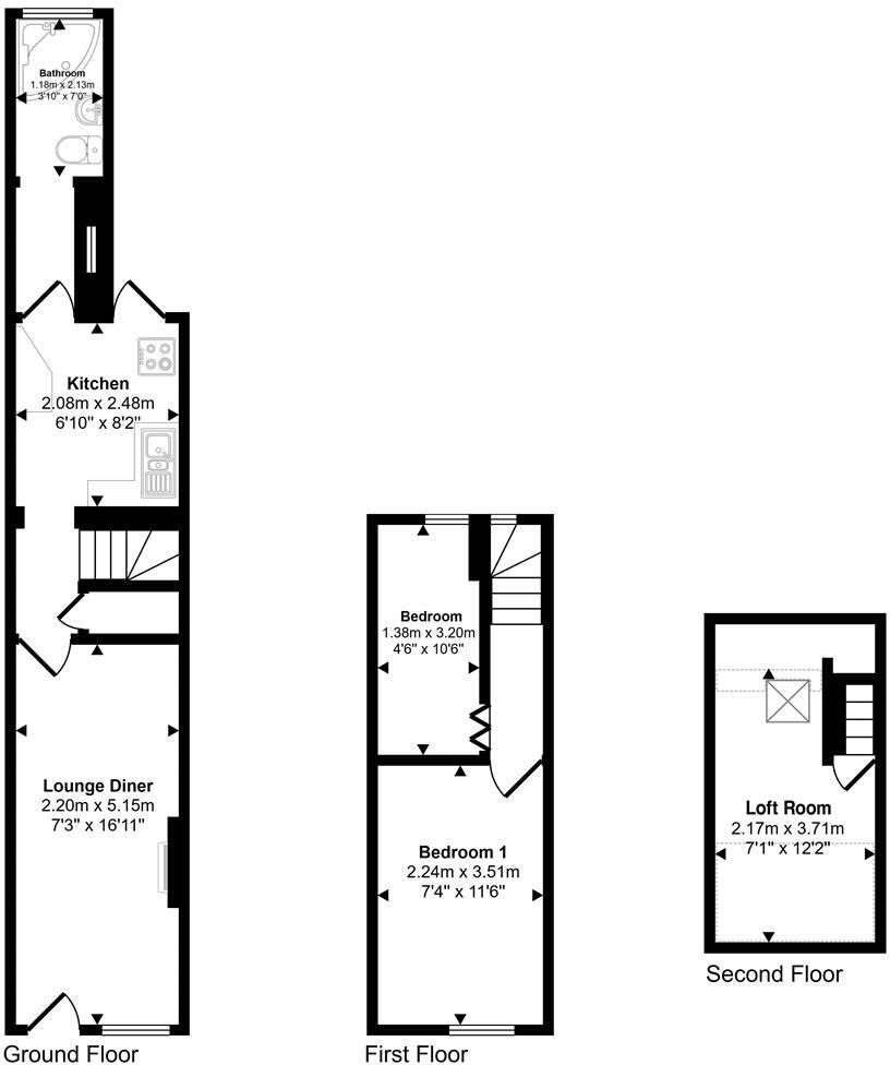
This is a two-bedroom terraced house in Chatham, Kent, requiring extensive renovation. While the location offers proximity to schools and transport, the property’s condition significantly impacts its appeal. The garden offers potential, and the price reflects the need for refurbishment, presenting an opportunity for investors or buyers willing to undertake a project.
Therefore, we give this property 5 / 10. *Disclaimer: This is our option and does constitute a recommendation or financial advice. Do your own research. *
- Price
- 8
- Condition
- 3
- Location
- 6
- Land
- 6
- Bedrooms
- 2
- Bathrooms
- 1
The heatmap indicates the level of crime in the area. The color of the heatmap indicates the crime severity and recency.
Metrics Year-on-Year
- Average area value
- 272,750.00 £Decreased by 5.37 %
- Average area rental value
- 1,449.00 £/moIncreased by 2.04 %
- Est rental Yield
- 6.38 %Increased by 7.95 %
- Crime Rate
- 11.00 %Unchanged by 0.00 %
Agent Activity
Barnard Marcus created the listing.
Nearby Schools
| Name | Type | Ofsted | Distance |
|---|---|---|---|
| Hospital And Medical Tuition Service | Miscellaneous | 0.33 KM | |
| Luton Primary School | Community School | Outstanding | 0.63 KM |
| All Saints Church Of England Primary School | Academy Converter | Good | 0.66 KM |
| All Saints Sure Start Children'S Centre | Children's Centre | 0.69 KM | |
| Brompton Academy | Academy Sponsor Led | Good | 0.73 KM |
Images
Nearby Streets
| Name | Average Price | Average Sqft | Distance |
|---|---|---|---|
| Bus Lane | £ 0 | 0 | 0.00 KM |
| Seymour Road | £ 203,500 | 0 | 0.00 KM |
| York Hill | £ 250,000 | 0 | 0.00 KM |
| Castle Road | £ 0 | 0 | 0.00 KM |
| Longhill Avenue | £ 0 | 0 | 0.00 KM |
Nearby Transport
| Name | NLC | TLC | Distance |
|---|---|---|---|
| Gillingham (Kent) | 5169 | GLM | 1.58 KM |
| Chatham | 5199 | CTM | 2.16 KM |
| Rochester | 5203 | RTR | 3.47 KM |
| Strood (Kent) | 5191 | SOO | 4.98 KM |
| Rainham (Kent) | 5177 | RAI | 7.94 KM |
Nearby Listings
| Address | Price | Type | Score | Distance |
|---|---|---|---|---|
| Grange Hill, CHATHAM | £ 90,000 | BUY | 5 / 10 | 0.00 KM |
| Grange Hill, CHATHAM | £ 75,000 | BUY | 6 / 10 | 0.00 KM |
| Grange Hill, Chatham, Kent | £ 135,000 | BUY | 3 / 10 | 0.00 KM |
| 24 Grange Hill, Chatham, ME5 7AH | £ 75,000 | BUY | 6 / 10 | 0.01 KM |
| 24 Grange Hill, Chatham, Kent, ME5 7AH | £ 80,000 | BUY | 5 / 10 | 0.01 KM |
Nearby Properties
| Address | Price | Distance |
|---|---|---|
| 3 Grange Hill | £ 115,000 | 0.00 KM |
| 6 Grange Hill | £ 108,000 | 0.00 KM |
| 19 Grange Hill | £ 43,000 | 0.00 KM |
| 21 Grange Hill | £ 93,500 | 0.00 KM |
| 4 Grange Hill | £ 94,000 | 0.00 KM |