Tankerton Road, Tankerton, Whitstable
CH

Tankerton Road, Tankerton, Whitstable

By Christopher Hodgson

£ 209,950

Reviews

3 out of 5 stars

Christopher Hodgson says ..

This bright, spacious, and smartly presented ground floor flat was created following the conversion of an attractive period building and is ideally situated between Tankerton and Whitstable, moments from the beach and a short walk to Whitstable’s fashionable town centre with its highly regarded r...

Property Oracle says ..

This property is a one-bedroom flat located on Tankerton Road in Tankerton, Whitstable. The area benefits from its proximity to the seaside and local amenities. While the provided images showcase a well-presented and recently renovated interior, the lack of square footage data prevents a comprehensive assessment of value per square foot. The list price of £209,950 appears relatively reasonable compared to other nearby flats, although the average house price in the area is significantly higher. More information on the property’s size would allow for a more precise evaluation of its price.

Therefore, we give this property 6 / 10. *Disclaimer: This is our option and does constitute a recommendation or financial advice. Do your own research. *

Price
7
Condition
9
Location
8
Land
3
Bedrooms
1
Bathrooms
1
Lot (est)
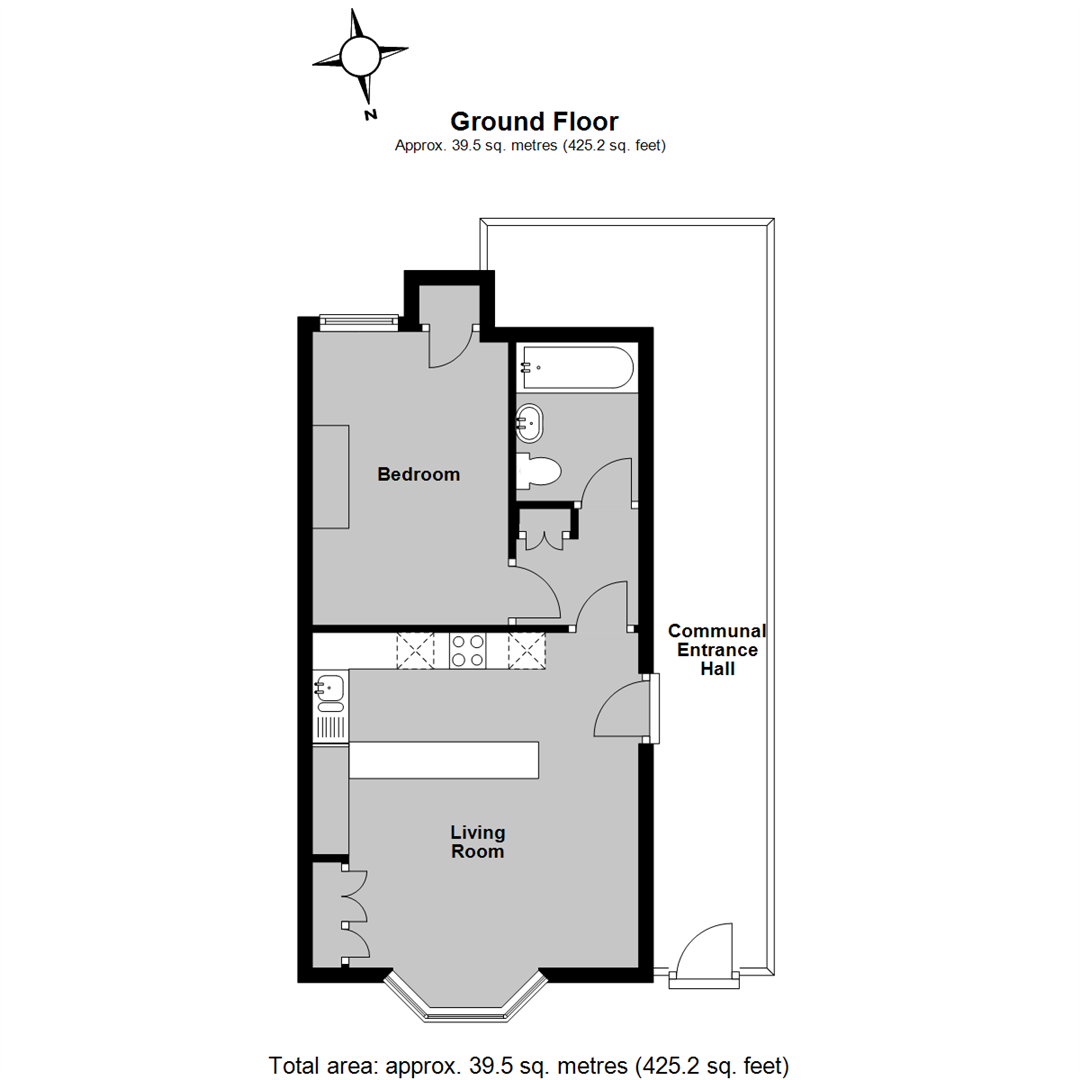
425.20

The heatmap indicates the level of crime in the area. The color of the heatmap indicates the crime severity and recency.

Metrics Year-on-Year

Average area value
975,000.00 £
Increased by 29.96 %
from 750,202.00 £
Average area rental value
1,098.00 £/mo
Decreased by 33.70 %
from 1,656.00 £/mo
Est rental Yield
1.35 %
Decreased by 49.06 %
from 2.65 %
Crime Rate
8.00 %
Unchanged by 0.00 %
from 8.00 %

Agent Activity

  • Christopher Hodgson created the listing.

Nearby Schools

NameTypeOfstedDistance
St Mary'S Catholic Primary School, WhitstableAcademy ConverterGood0.53 KM
Westmeads Community Infant SchoolCommunity SchoolOutstanding0.59 KM
Isp Polar Re Start CentreOther Independent Special School1.01 KM
Whitstable And Seasalter Endowed Church Of England Junior SchoolVoluntary Aided SchoolOutstanding1.06 KM
Whitstable Junior SchoolFoundation SchoolGood1.29 KM

Images

Tankerton Road, Tankerton, Whitstable Tankerton Road, Tankerton, Whitstable Tankerton Road, Tankerton, Whitstable Tankerton Road, Tankerton, Whitstable Tankerton Road, Tankerton, Whitstable Tankerton Road, Tankerton, Whitstable Tankerton Road, Tankerton, Whitstable Tankerton Road, Tankerton, Whitstable Tankerton Road, Tankerton, Whitstable Tankerton Road, Tankerton, Whitstable

Nearby Streets

NameAverage PriceAverage SqftDistance
Northwood Road £ 449,99500.00 KM
Tower Road £ 000.00 KM
Old Millfield Works £ 000.00 KM
Wheelers Alley (CWX32) £ 000.00 KM
Freeman's Yard £ 000.00 KM

Nearby Transport

NameNLCTLCDistance
Whitstable5196WHI0.64 KM
Chestfield And Swalecliffe5200CSW3.66 KM
Herne Bay5174HNB9.26 KM
Canterbury West5007CBW9.91 KM

Nearby Listings

AddressPriceTypeScoreDistance
Tankerton Road, Tankerton, Whitstable £ 209,950BUY6 / 100.00 KM
Tankerton Road, Tankerton, Whitstable £ 235,000BUY5 / 100.02 KM
Tankerton Road, Whitstable, Kent £ 285,000BUY6 / 100.02 KM
Tankerton Road, Tankerton, Whitstable £ 350,000BUY6 / 100.05 KM
Northwood Road, Whitstable, Kent £ 396,500BUYUnknown0.10 KM

Nearby Properties

AddressPriceDistance
13 Tankerton Road £ 650,0000.03 KM
3 Tankerton Road £ 1,090,0000.03 KM
30a Tankerton Road £ 130,0000.03 KM
4 Tankerton Road £ 130,0000.03 KM
16 Northwood Road £ 730,0000.12 KM