Woodlawn Crescent, Twickenham
SH

Woodlawn Crescent, Twickenham

By Shaw & Co

£ 724,950

Reviews

3 out of 5 stars

Shaw & Co says ..

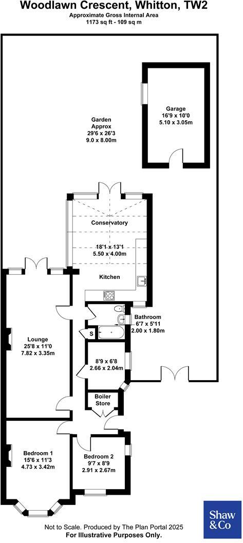
A charming and well-presented three-bedroom semi-detached bungalow, ideal for those seeking the ease of single-level living. Offered with no onward chain! The property has been lovingly maintained over the years and is offered in excellent condition throughout. At its heart is a fully re...

Property Oracle says ..

This is a semi-detached bungalow in Twickenham, offering three bedrooms and one bathroom. The property benefits from a modern kitchen and a garden with a shed. While the interior is generally well-maintained, some aspects may benefit from cosmetic updates. The location is desirable, with good access to local amenities and transportation. However, the asking price appears to be slightly above the average for the area, considering the price per square foot.

Therefore, we give this property 6 / 10. *Disclaimer: This is our option and does constitute a recommendation or financial advice. Do your own research. *

Price
6
Condition
7
Location
7
Land
6
Bedrooms
3
Bathrooms
1
Sqft (est)
1,088.00

The heatmap indicates the level of crime in the area. The color of the heatmap indicates the crime severity and recency.

Metrics Year-on-Year

Average area value
195,000.00 £
Decreased by 33.36 %
from 292,624.00 £
Est sale value
269,824.00 £
Decreased by 22.01 %
from 345,984.00 £
Average area rental value
998.00 £/mo
Increased by 5.05 %
from 950.00 £/mo
Est letting value
1,088.00 £/mo
Unchanged by 0.00 %
from 1,088.00 £/mo
Est rental Yield
6.14 %
Increased by 57.44 %
from 3.90 %
Crime Rate
12.00 %
Unchanged by 0.00 %
from 12.00 %

Agent Activity

  • Shaw & Co created the listing.

Nearby Schools

NameTypeOfstedDistance
Heathfield/WhittonChildren's Centre0.33 KM
Twickenham SchoolAcademy Sponsor LedGood0.40 KM
Heathfield Junior SchoolCommunity SchoolGood0.43 KM
Heathfield Infant SchoolCommunity SchoolGood0.43 KM
Bishop Perrin Church Of England Primary SchoolVoluntary Aided SchoolOutstanding0.51 KM

Images

tempImageI45l95.jpg tempImagefm2cji.jpg tempImageENRY29.jpg tempImageKXxqo7.jpg tempImagelZ7Hd3.jpg tempImageZ4espG.jpg tempImage1YIUmC.jpg tempImageRxWaGR.jpg tempImageaLKCbc.jpg tempImageWzZdyi.jpg tempImageGlUiEO.jpg tempImageDsuLXn.jpg tempImageLTZsJI.jpg tempImageuDDmlb.jpg tempImageVhp4BE.jpg

Nearby Streets

NameAverage PriceAverage SqftDistance
Chiltern Avenue £ 000.00 KM
Percy Way £ 1,100,00000.00 KM
Gerard Avenue £ 000.00 KM
St. Edmund's Lane £ 595,00000.00 KM
Mayfair Avenue £ 000.00 KM

Nearby Transport

NameNLCTLCDistance
Whitton5611WTN1.18 KM
Hounslow5563HOU2.04 KM
Fulwell5587FLW2.24 KM
Strawberry Hill5607STW3.10 KM
Hampton5560HMP3.20 KM

Nearby Listings

AddressPriceTypeScoreDistance
Woodlawn Crescent, Twickenham £ 724,950BUY6 / 100.00 KM
Woodlawn Crescent, Whitton £ 724,950BUY6 / 100.07 KM
Woodlawn Crescent, Twickenham, TW2 £ 625,000BUY6 / 100.08 KM
Longford Road, Twickenham £ 625,000BUY6 / 100.14 KM
Longford Road, Twickenham, TW2 £ 650,000BUY6 / 100.14 KM

Nearby Properties

AddressPriceDistance
25 Powder Mill Lane £ 140,0000.02 KM
1 Powder Mill Lane £ 389,0000.02 KM
21 Powder Mill Lane £ 164,0000.02 KM
23 Powder Mill Lane £ 395,0000.02 KM
19 Powder Mill Lane £ 355,0000.02 KM