Old Main Road, Bulcote, NG14
By Fine & Country
£ 850,000
Reviews
3 out of 5 stars
Fine & Country says ..
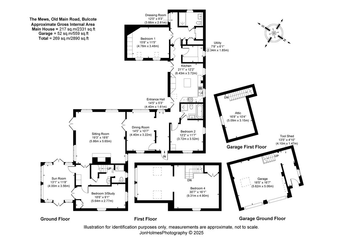
A delightful detached stable and coach house conversion, beautifully appointed in the sought-after heart of Bulcote village
Property Oracle says ..
This charming coach house in Bulcote presents a unique opportunity for discerning buyers. The property features four bedrooms and three bathrooms, offering ample space for family living. The interior is well-presented, with a blend of traditional and modern elements. The property’s standout feature is its extensive garden, providing a private and tranquil retreat. While the price is above the local average, the property’s condition, land, and desirable location make it a compelling investment.
Therefore, we give this property 7 / 10. *Disclaimer: This is our option and does constitute a recommendation or financial advice. Do your own research. *
- Price
- 6
- Condition
- 8
- Location
- 7
- Land
- 9
- Bedrooms
- 4
- Bathrooms
- 3
- Sqft (est)
- 227.33
The heatmap indicates the level of crime in the area. The color of the heatmap indicates the crime severity and recency.
Metrics Year-on-Year
- Average area value
- 412,987.00 £Decreased by 13.76 %
- Est sale value
- 75,473.56 £Increased by 2.15 %
- Average area rental value
- 1,198.00 £/moIncreased by 8.32 %
- Est letting value
- 0.00 £/mo
- Est rental Yield
- 3.48 %Increased by 25.63 %
- Crime Rate
- 0.00 %
Agent Activity
Fine & Country created the listing.
Nearby Schools
| Name | Type | Ofsted | Distance |
|---|---|---|---|
| Burton Joyce Primary School | Academy Converter | Good | 2.14 KM |
| Lowdham Cofe Primary School | Voluntary Aided School | Outstanding | 2.59 KM |
| Gunthorpe Cofe Primary School | Academy Converter | Good | 3.89 KM |
| Lambley Primary School | Community School | Good | 5.28 KM |
| Wood'S Foundation Cofe Primary School | Voluntary Aided School | Outstanding | 5.38 KM |
Images
Nearby Streets
| Name | Average Price | Average Sqft | Distance |
|---|---|---|---|
| Church Road | £ 264,200 | 0 | 0.00 KM |
| Shaftesbury Avenue | £ 600,000 | 0 | 0.00 KM |
| Gordon Road | £ 0 | 0 | 0.00 KM |
| Langham Drive | £ 0 | 0 | 0.00 KM |
Nearby Transport
| Name | NLC | TLC | Distance |
|---|---|---|---|
| Burton Joyce | 6200 | BUJ | 2.65 KM |
| Lowdham | 6202 | LOW | 2.69 KM |
| Radcliffe (Nottinghamshire) | 6242 | RDF | 5.45 KM |
| Carlton | 6201 | CTO | 7.30 KM |
| Thurgarton | 6203 | THU | 7.41 KM |
Nearby Listings
| Address | Price | Type | Score | Distance |
|---|---|---|---|---|
| Old Main Road, Bulcote, NG14 | £ 850,000 | BUY | 7 / 10 | 0.00 KM |
| Old Main Road, Bulcote, Nottingham, Nottinghamshire, NG14 | £ 1,950,000 | BUY | 7 / 10 | 0.15 KM |
| Old Main Road, Bulcote, Nottingham | £ 725,000 | BUY | 7 / 10 | 0.24 KM |
| Old Main Road, Bulcote, Nottingham | £ 795,000 | BUY | 7 / 10 | 0.24 KM |
| Old Main Road, Bulcote, Nottingham | £ 725,000 | BUY | 7 / 10 | 0.24 KM |
Nearby Properties
| Address | Price | Distance |
|---|---|---|
| 9 Corporation Cottages | £ 160,000 | 0.17 KM |
| 1 Corporation Cottages | £ 184,995 | 0.17 KM |
| 11 Corporation Cottages | £ 345,000 | 0.17 KM |
| 12 Corporation Cottages | £ 165,995 | 0.17 KM |
| 8 Corporation Cottages | £ 163,500 | 0.19 KM |