Moor End, Kelfield, YO19
By Wishart Estate Agents
£ 725,000
Reviews
4 out of 5 stars
Wishart Estate Agents says ..
A beautiful EXECUTIVE home in the PICTURESQUE VILLAGE of Kelfield, beautifully RENOVATED with LUXURY FINISHES throughout. Offering VERSATILE LIVING and a PRIVATE GARDEN, all within 10 miles of YORK and major transport links. Offered in TURN-KEY condition.
Property Oracle says ..
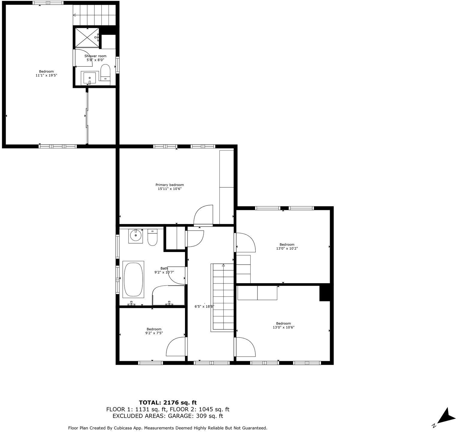
This property is a 5 bedroom detached house located in Kelfield, North Yorkshire. It is on the market for £725,000. The property is in excellent condition and has been recently renovated to a high standard. The property has a large garden and is located close to good schools and transport links. The average price for a property in this area is £316,897, and the average price per square foot is £336. This property is priced slightly above the average for the area, but this is justified by its size, condition, and location.
Therefore, we give this property 8 / 10. *Disclaimer: This is our option and does constitute a recommendation or financial advice. Do your own research. *
- Price
- 7
- Condition
- 10
- Location
- 7
- Land
- 8
- Bedrooms
- 5
- Bathrooms
- 2
- Sqft (est)
- 1,251.20
- Lot (est)
- 2,176.00
The heatmap indicates the level of crime in the area. The color of the heatmap indicates the crime severity and recency.
Metrics Year-on-Year
- Average area value
- 227,143.00 £Decreased by 21.02 %
- Est sale value
- 311,548.80 £Decreased by 24.55 %
- Average area rental value
- 1,237.00 £/moIncreased by 11.34 %
- Est letting value
- 1,251.20 £/moUnchanged by 0.00 %
- Est rental Yield
- 6.54 %Increased by 40.95 %
- Crime Rate
- 0.00 %
Agent Activity
Wishart Estate Agents created the listing.
Nearby Schools
| Name | Type | Ofsted | Distance |
|---|---|---|---|
| Wistow Parochial Church Of England Voluntary Controlled Primary School | Voluntary Controlled School | Good | 2.82 KM |
| Riccall Community Primary School | Community School | Good | 3.77 KM |
| Cawood Church Of England Voluntary Aided Primary School | Voluntary Aided School | Good | 3.89 KM |
| Selby North Children'S Centre | Children's Centre | 6.24 KM | |
| Selby Community Primary School | Academy Converter | 6.30 KM |
Images
Nearby Transport
| Name | NLC | TLC | Distance |
|---|---|---|---|
| Selby | 8201 | SBY | 7.23 KM |
Nearby Listings
| Address | Price | Type | Score | Distance |
|---|---|---|---|---|
| Moor End, Kelfield, YO19 | £ 725,000 | BUY | 8 / 10 | 0.00 KM |
| The Gables, Moor End, Kelfield, YO19 | £ 699,999 | BUY | 7 / 10 | 0.00 KM |
| Moor End, Kelfield, York, North Yorkshire, YO19 | £ 1,100,000 | BUY | Unknown | 0.04 KM |
| Riccall Lane, Kelfield, York YO19 6RE | £ 625,000 | BUY | 7 / 10 | 0.07 KM |
| Moor End, Kelfield, York YO19 6RJ | £ 325,000 | BUY | 7 / 10 | 0.33 KM |
Nearby Properties
| Address | Price | Distance |
|---|---|---|
| The Hawthorns | £ 410,000 | 0.20 KM |
| Greystones | £ 321,000 | 0.20 KM |
| The Gables | £ 392,500 | 0.20 KM |
| Apple Tree Cottage | £ 235,000 | 0.20 KM |
| Jasmine Cottage | £ 365,000 | 0.20 KM |