The Street, North Warnborough
By Charlton Grace
£ 650,000
Reviews
3 out of 5 stars
Charlton Grace says ..
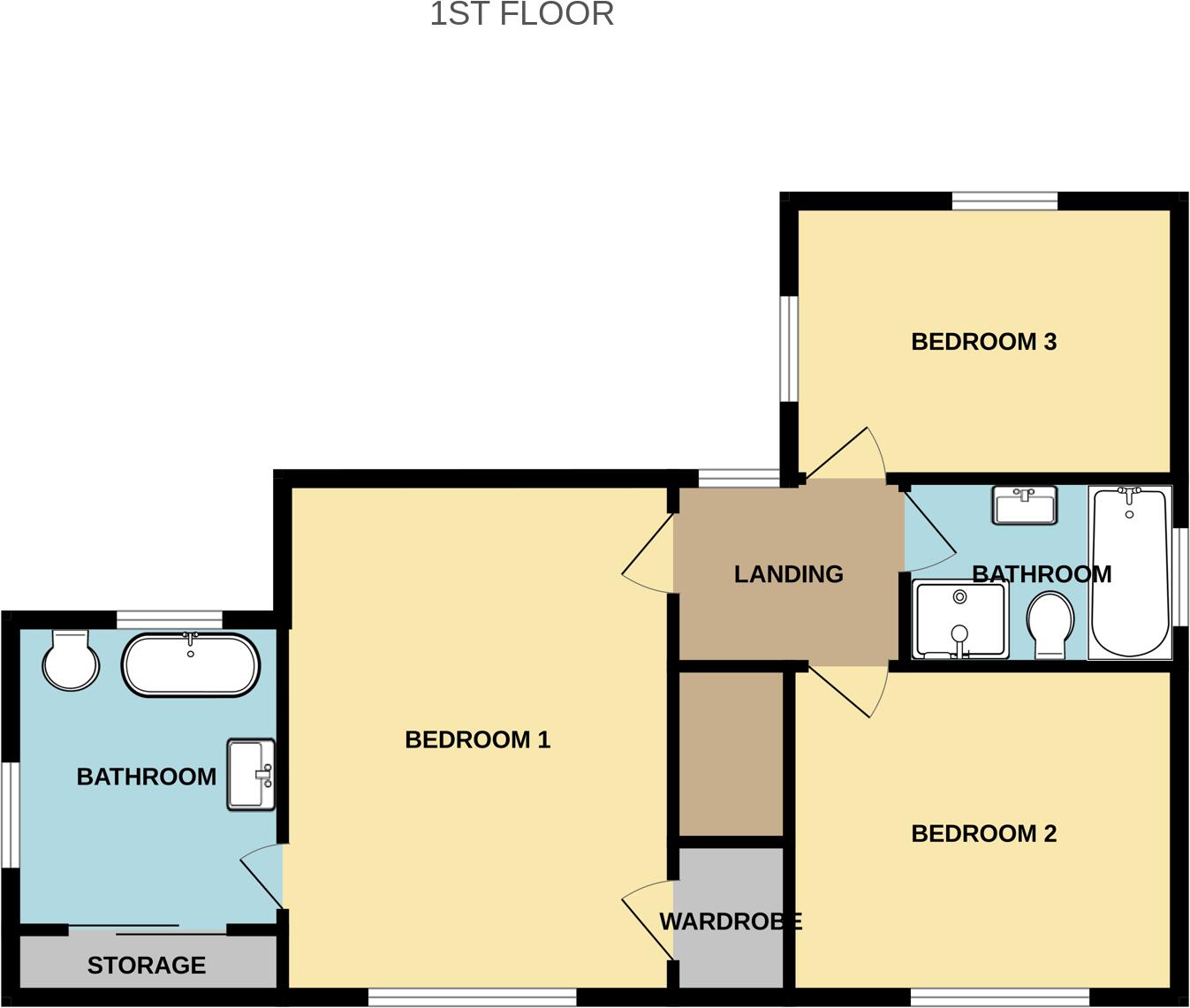
Charlton Grace are delighted to present to the market this truly unique and most attractive period double fronted extended three double bedroom cottage, situated within this sought after non-estate location.
Property Oracle says ..
The property is located in North Warnborough, a village in Hampshire, England. Based on the provided information and images, the property appears to be a charming cottage that has undergone recent renovations, particularly in the kitchen and bathrooms. The property shows evidence of modernisation and is presented in good condition. The exterior is well-maintained and the garden is visible in the provided images. The location is within reasonable proximity to Hook and Winchfield train stations, offering convenient access to rail transportation. Several schools with good Ofsted ratings are also nearby. This suggests a desirable location for families. While the plot size is listed as 0.00 sqft, the images show a garden area. The size of this garden is not specified, however, it does appear to be of a reasonable size for a property of this type. The list price of £650,000 is significantly higher than the average house price in the area (£220,958). However, the average price per square foot in the area is £239, and this property is larger than average at 1020 sqft. The higher list price may be justified by the property’s apparent good condition, recent renovations, and desirable location within North Warnborough. Further analysis of comparable properties in the immediate vicinity would be needed to definitively assess the value for money. The provided nearby listings show a wide range of prices, with some properties significantly more expensive, suggesting that the price may be within the range of similar properties in the area.
Therefore, we give this property 7 / 10. *Disclaimer: This is our option and does constitute a recommendation or financial advice. Do your own research. *
- Price
- 6
- Condition
- 9
- Location
- 8
- Land
- 7
- Bedrooms
- 3
- Bathrooms
- 2
- Sqft (est)
- 1,020.00
The heatmap indicates the level of crime in the area. The color of the heatmap indicates the crime severity and recency.
Metrics Year-on-Year
- Average area value
- 239,000.00 £Increased by 24.44 %
- Est sale value
- 274,380.00 £Increased by 15.95 %
- Average area rental value
- 850.00 £/moDecreased by 8.60 %
- Est letting value
- 0.00 £/moDecreased by 100.00 %
- Est rental Yield
- 4.27 %Decreased by 26.51 %
- Crime Rate
- 9.00 %Unchanged by 0.00 %
Agent Activity
Charlton Grace created the listing.
Nearby Schools
| Name | Type | Ofsted | Distance |
|---|---|---|---|
| Robert May'S School | Academy Converter | Good | 0.56 KM |
| Wisteria Children'S Centre | Children's Centre Linked Site | 1.70 KM | |
| Mayhill Junior School | Community School | Good | 1.75 KM |
| Buryfields Infant School | Community School | Good | 1.95 KM |
| Hook Junior School | Community School | Outstanding | 2.88 KM |
Images
Nearby Streets
| Name | Average Price | Average Sqft | Distance |
|---|---|---|---|
| B3349 | £ 0 | 0 | 0.00 KM |
| Castle Rise | £ 405,000 | 0 | 0.00 KM |
| Crumplins Business Court | £ 575,000 | 0 | 0.00 KM |
| The Green | £ 0 | 0 | 0.00 KM |
| Recreation Road | £ 0 | 0 | 0.00 KM |
Nearby Transport
| Name | NLC | TLC | Distance |
|---|---|---|---|
| Hook | 5523 | HOK | 2.60 KM |
| Winchfield | 5528 | WNF | 6.08 KM |
Nearby Listings
| Address | Price | Type | Score | Distance |
|---|---|---|---|---|
| The Street, North Warnborough | £ 650,000 | BUY | 7 / 10 | 0.00 KM |
| The Street, North Warnborough, RG29 | £ 425,000 | BUY | 7 / 10 | 0.03 KM |
| Hook Road, North Warnborough, RG29 | £ 795,000 | BUY | 7 / 10 | 0.14 KM |
| Laurel Close, North Warnborough, Hampshire, RG29 | £ 500,000 | BUY | 7 / 10 | 0.15 KM |
| Laurel Close, North Warnborough, Hook, RG29 | £ 425,000 | BUY | 7 / 10 | 0.18 KM |
Nearby Properties
| Address | Price | Distance |
|---|---|---|
| Springwell Cottage | £ 580,000 | 0.03 KM |
| April Cottage | £ 599,950 | 0.03 KM |
| Cedar Tree House | £ 1,020,000 | 0.03 KM |
| Choseley House | £ 1,000,000 | 0.03 KM |
| Orchard Cottage | £ 390,000 | 0.03 KM |