Flying Keys says ..
Charming 2 bed detached bungalow, formerly a gospel hall, with special accessibility features. Bright interiors, low maintenance garden, and ample parking. Ideal for unique and practical living.
Property Oracle says ..
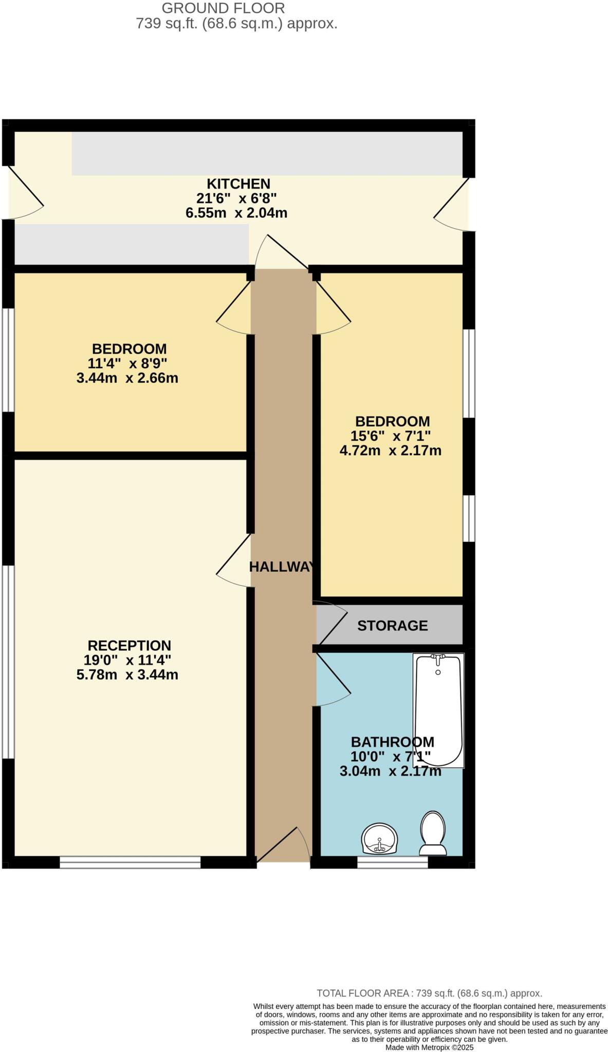
This property is a 2 bedroom detached bungalow located in Bargoed, Caerphilly. It benefits from a modern fitted kitchen and bathroom, and appears to be in excellent condition. The property is situated on a corner plot with a paved rear garden. There are several primary and secondary schools within walking distance, and Bargoed train station is also easily accessible. While the plot size is small, the property itself is well presented and benefits from recent renovations. The list price is slightly above the average for the area, but comparable properties in the vicinity are listed at similar prices.
Therefore, we give this property 6 / 10. *Disclaimer: This is our option and does constitute a recommendation or financial advice. Do your own research. *
- Price
- 7
- Condition
- 9
- Location
- 7
- Land
- 3
- Bedrooms
- 2
- Bathrooms
- 1
- Sqft (est)
- 738.40
The heatmap indicates the level of crime in the area. The color of the heatmap indicates the crime severity and recency.
Metrics Year-on-Year
- Average area value
- 222,596.00 £Increased by 28.13 %
- Est sale value
- 186,815.20 £Increased by 76.92 %
- Average area rental value
- 744.00 £/moIncreased by 0.81 %
- Est letting value
- 0.00 £/mo
- Est rental Yield
- 4.01 %Decreased by 21.37 %
- Crime Rate
- 4.00 %Unchanged by 0.00 %
Agent Activity
Flying Keys created the listing.
Nearby Schools
| Name | Type | Ofsted | Distance |
|---|---|---|---|
| Park Primary School Bargoed | Welsh Establishment | 0.11 KM | |
| St Gwladys Bargoed School | Welsh Establishment | 0.81 KM | |
| Ysgol Gymraeg Gilfach Fargoed | Welsh Establishment | 0.89 KM | |
| Gilfach Fargoed Primary School | Welsh Establishment | 1.00 KM | |
| Aberbargoed Primary School | Welsh Establishment | 1.25 KM |
Images
Nearby Streets
| Name | Average Price | Average Sqft | Distance |
|---|---|---|---|
| Hanbury Road | £ 0 | 0 | 0.00 KM |
| Western Drive | £ 267,498 | 0 | 0.00 KM |
| Cross Street | £ 123,300 | 0 | 0.00 KM |
| Heol Ddu Road | £ 107,000 | 0 | 0.00 KM |
| Church Street | £ 125,000 | 0 | 0.00 KM |
Nearby Transport
| Name | NLC | TLC | Distance |
|---|---|---|---|
| Gilfach Fargoed | 4022 | GFF | 0.73 KM |
| Bargoed | 4011 | BGD | 0.93 KM |
| Pengam | 4021 | PGM | 1.62 KM |
| Brithdir | 4012 | BHD | 2.89 KM |
| Hengoed | 4028 | HNG | 4.27 KM |
Nearby Listings
| Address | Price | Type | Score | Distance |
|---|---|---|---|---|
| Heol Fargoed, Bargoed, CF81 | £ 259,000 | BUY | 6 / 10 | 0.00 KM |
| Heol Fargoed, Bargoed | £ 350,000 | BUY | 7 / 10 | 0.10 KM |
| Heol Fargoed, Bargoed | £ 290,000 | BUY | Unknown | 0.12 KM |
| Ruth Street, Bargoed | £ 129,995 | BUY | 6 / 10 | 0.21 KM |
| John Street, Bargoed | £ 180,000 | BUY | 5 / 10 | 0.23 KM |
Nearby Properties
| Address | Price | Distance |
|---|---|---|
| 17 Park Crescent | £ 100,000 | 0.10 KM |
| 12 Park Crescent | £ 124,995 | 0.10 KM |
| 8 Park Crescent | £ 127,000 | 0.10 KM |
| 18 Park Crescent | £ 80,000 | 0.10 KM |
| 4 Park Crescent | £ 159,000 | 0.10 KM |