Lower Camden, Chislehurst
By Langford Russell
£ 780,000
Reviews
3 out of 5 stars
Langford Russell says ..
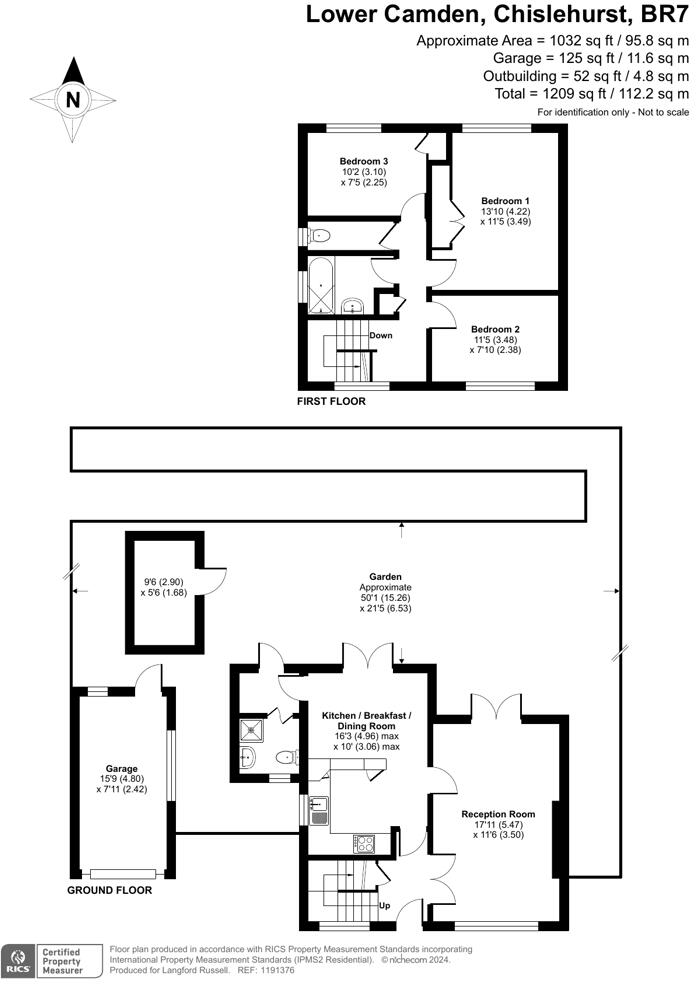
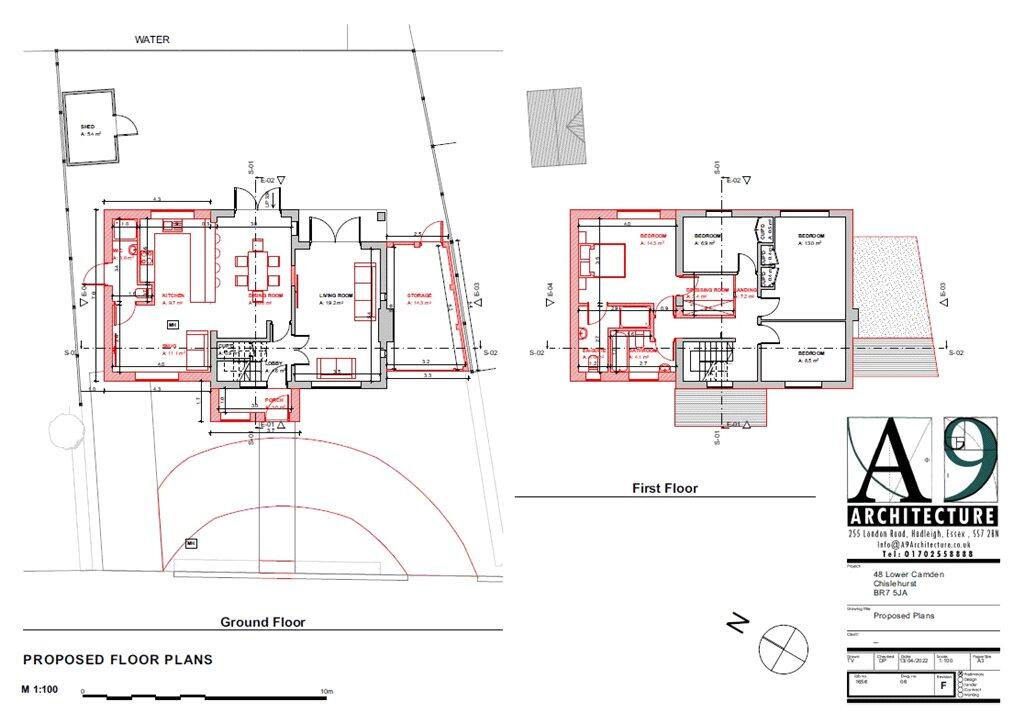
In need of modernisation with potential to extend to the side with an option for a single or double story extension along with potential for a loft conversion (STPP). The current owners have drawings for a single-story extension (available upon request), planning permission is required. <...
Property Oracle says ..
Lower Camden is a desirable location in Chislehurst, known for its proximity to excellent schools and good transport links. The property itself benefits from a garden. However, the property appears to be in need of modernisation, as evidenced by the dated kitchen and bathroom fixtures. The list price of £780,000 is slightly below the average price for the area, but considering the required modernisation and relatively small size, the price seems reasonable, though not necessarily a bargain. The average price per sqft in the area is £554, making the property’s price per sqft slightly lower. However, the need for renovations should be factored into any assessment of value. Nearby comparable properties show a range of prices, reflecting the variation in condition and size. The property’s potential for extension (subject to planning permission) could increase its value significantly upon completion.
Therefore, we give this property 6 / 10. *Disclaimer: This is our option and does constitute a recommendation or financial advice. Do your own research. *
- Price
- 7
- Condition
- 5
- Location
- 8
- Land
- 7
- Bedrooms
- 3
- Bathrooms
- 2
- Sqft (est)
- 1,209.00
The heatmap indicates the level of crime in the area. The color of the heatmap indicates the crime severity and recency.
Metrics Year-on-Year
- Average area value
- 1,340,769.00 £Increased by 43.16 %
- Est sale value
- 922,467.00 £Increased by 5.39 %
- Average area rental value
- 1,875.00 £/moDecreased by 23.75 %
- Est letting value
- 1,209.00 £/moUnchanged by 0.00 %
- Est rental Yield
- 1.68 %Decreased by 46.67 %
- Crime Rate
- 3.00 %Unchanged by 0.00 %
Agent Activity
Langford Russell created the listing.
Nearby Schools
| Name | Type | Ofsted | Distance |
|---|---|---|---|
| Bullers Wood School | Academy Converter | Outstanding | 0.52 KM |
| Babington House School | Other Independent School | 0.84 KM | |
| Bickley Park School | Other Independent School | 1.43 KM | |
| Bullers Wood School For Boys | Free Schools | 1.60 KM | |
| Red Hill Primary School | Academy Converter | Good | 1.62 KM |
Images
Nearby Streets
| Name | Average Price | Average Sqft | Distance |
|---|---|---|---|
| St George's Road West | £ 0 | 0 | 0.00 KM |
| Little Redlands | £ 0 | 0 | 0.00 KM |
| Onslow Crescent | £ 875,000 | 0 | 0.00 KM |
| Hillview Road | £ 0 | 0 | 0.00 KM |
| St. Michael's Close | £ 800,000 | 0 | 0.00 KM |
Nearby Transport
| Name | NLC | TLC | Distance |
|---|---|---|---|
| Chislehurst | 5099 | CIT | 0.87 KM |
| Elmstead Woods | 5135 | ESD | 1.08 KM |
| Bickley | 5063 | BKL | 1.45 KM |
| Mottingham | 5118 | MTG | 3.23 KM |
| Sundridge Park | 5155 | SUP | 3.39 KM |
Nearby Listings
| Address | Price | Type | Score | Distance |
|---|---|---|---|---|
| Lower Camden, Chislehurst | £ 780,000 | BUY | 6 / 10 | 0.00 KM |
| Lower Camden, Chislehurst, Kent, BR7 | £ 750,000 | BUY | 7 / 10 | 0.10 KM |
| Lower Camden, Chislehurst, Kent, BR7 | £ 350,000 | BUY | 5 / 10 | 0.11 KM |
| Lubbock Road, Chislehurst, Kent, BR7 | £ 350,000 | BUY | 6 / 10 | 0.12 KM |
| Lower Camden, Chislehurst, BR7 | £ 1,000,000 | BUY | 8 / 10 | 0.13 KM |
Nearby Properties
| Address | Price | Distance |
|---|---|---|
| 34 Lubbock Road | £ 2,250,000 | 0.07 KM |
| 8 Lubbock Road | £ 495,000 | 0.07 KM |
| 6 Lubbock Road | £ 775,000 | 0.07 KM |
| 38 Lower Camden | £ 872,000 | 0.07 KM |
| Tara | £ 1,120,000 | 0.07 KM |