Chancellors says ..
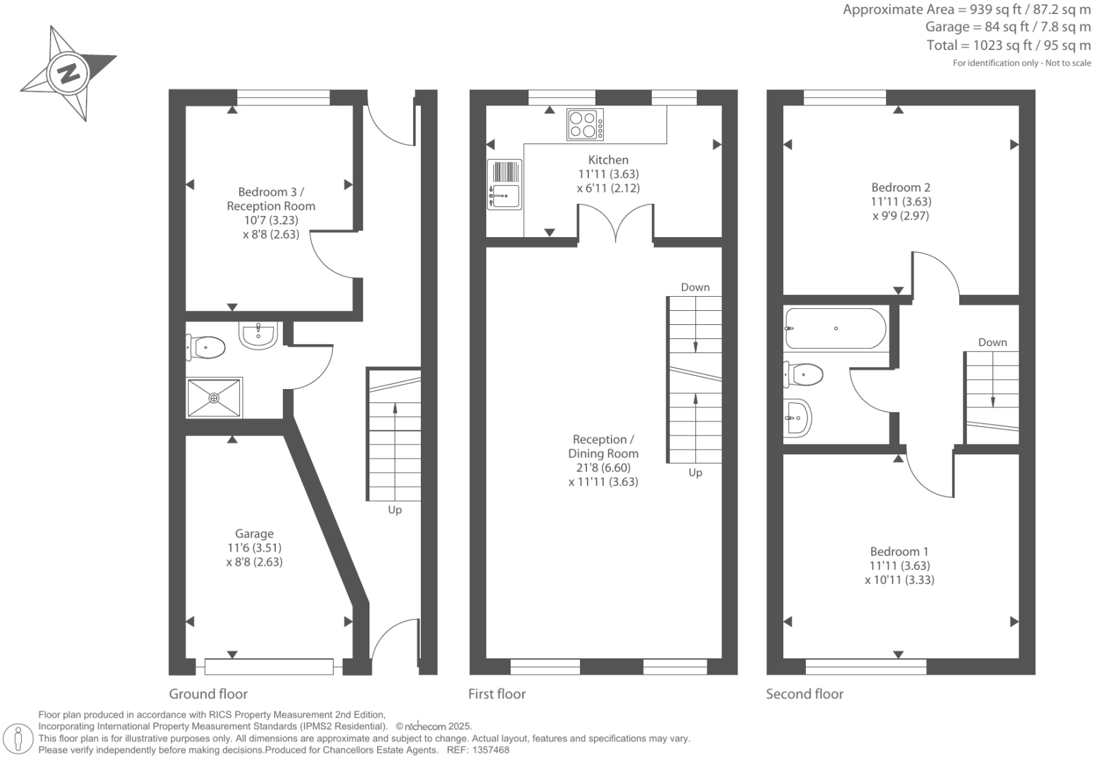
Offered with no onward chain, this well-presented mid-terrace townhouse is arranged over three floors and offers flexible living space, making it an ideal choice for first-time buyers or investors.
Property Oracle says ..
This is a three-bedroom terraced property located in Headington, Oxford. The property is in a good location, with access to nearby schools and transport links. The property has a garden, which is a desirable feature. The property would benefit from some modernisation. The property is listed at £375,000, which is slightly above the average price for the area.
Therefore, we give this property 6 / 10. *Disclaimer: This is our option and does constitute a recommendation or financial advice. Do your own research. *
- Price
- 7
- Condition
- 5
- Location
- 7
- Land
- 6
- Bedrooms
- 3
- Bathrooms
- 2
- Sqft (est)
- 700.33
The heatmap indicates the level of crime in the area. The color of the heatmap indicates the crime severity and recency.
Metrics Year-on-Year
- Average area value
- 359,000.00 £Decreased by 8.94 %
- Est sale value
- 259,122.10 £Decreased by 10.84 %
- Average area rental value
- 1,456.00 £/moDecreased by 14.05 %
- Est letting value
- 700.33 £/moUnchanged by 0.00 %
- Est rental Yield
- 4.87 %Decreased by 5.62 %
- Crime Rate
- 13.00 %Unchanged by 0.00 %
Agent Activity
Chancellors created the listing.
Nearby Schools
| Name | Type | Ofsted | Distance |
|---|---|---|---|
| Endeavour Academy, Oxford | Academy Special Sponsor Led | Good | 0.23 KM |
| Barton Children And Family Centre | Children's Centre | 0.23 KM | |
| Bayards Hill School | Academy Sponsor Led | Requires improvement | 0.67 KM |
| Sandhills Community Primary School | Academy Sponsor Led | 0.83 KM | |
| Headington Quarry Foundation Stage School | Local Authority Nursery School | Outstanding | 1.24 KM |
Images
Nearby Streets
| Name | Average Price | Average Sqft | Distance |
|---|---|---|---|
| Bayswater Farm Park | £ 0 | 0 | 0.00 KM |
| A40 | £ 0 | 0 | 0.00 KM |
| Stowford Court | £ 895,000 | 0 | 0.00 KM |
| Spring Lane | £ 340,000 | 0 | 0.00 KM |
| Beaumont Road | £ 0 | 0 | 0.00 KM |
Nearby Transport
| Name | NLC | TLC | Distance |
|---|---|---|---|
| Islip | 3110 | ISP | 8.82 KM |
| Oxford | 3115 | OXF | 9.18 KM |
Nearby Listings
| Address | Price | Type | Score | Distance |
|---|---|---|---|---|
| Headington, Oxford, OX3 | £ 375,000 | BUY | 6 / 10 | 0.00 KM |
| Green Ridges, Headington, Oxford | £ 235,000 | BUY | 6 / 10 | 0.06 KM |
| Green Ridges, Headington, Oxford | £ 235,000 | BUY | Unknown | 0.06 KM |
| Green Ridges, Headington, Oxford | £ 335,000 | BUY | 6 / 10 | 0.06 KM |
| Green Ridges, Headington, Oxford | £ 395,000 | BUY | 6 / 10 | 0.06 KM |
Nearby Properties
| Address | Price | Distance |
|---|---|---|
| 40 Green Ridges | £ 213,500 | 0.06 KM |
| 51 Green Ridges | £ 205,000 | 0.06 KM |
| 14 Green Ridges | £ 265,000 | 0.06 KM |
| 56 Green Ridges | £ 75,250 | 0.06 KM |
| 32 Green Ridges | £ 385,000 | 0.06 KM |