Broxholm Road, West Norwood, London, SE27
WI

Broxholm Road, West Norwood, London, SE27

By Winkworth

£ 1,350,000

Reviews

3 out of 5 stars

Winkworth says ..

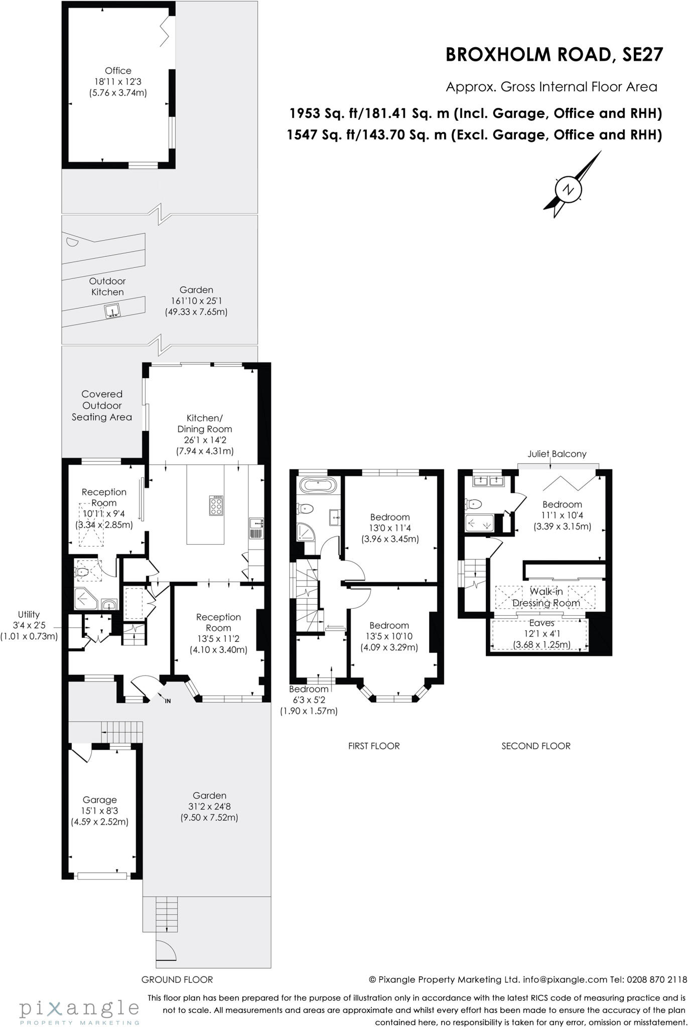
A Truly Unique Architectural Gem in the Heart of West Norwood. This exceptional home stands out as a one-of-a-kind residence, the result of an architect-led transformation that has reimagined every corner. Thoughtfully extended to the loft, side, and rear, the property has been meticulously rede...

Property Oracle says ..

This is a substantial semi-detached property located in West Norwood, London. The house features three bedrooms and three bathrooms, with a large square footage of 6,330.69 sqft. The property benefits from its proximity to local schools and transportation links. The interior appears to be modern and well-maintained, with a recently renovated kitchen and bathrooms. A standout feature is the expansive garden, which includes a patio, lawn, and a separate outbuilding suitable for use as a home office or studio. However, the asking price of £1,350,000 seems high in comparison to the average property prices in the area.

Therefore, we give this property 6 / 10. *Disclaimer: This is our option and does constitute a recommendation or financial advice. Do your own research. *

Price
2
Condition
8
Location
7
Land
9
Bedrooms
3
Bathrooms
3
Sqft (est)
6,330.69

The heatmap indicates the level of crime in the area. The color of the heatmap indicates the crime severity and recency.

Metrics Year-on-Year

Average area value
696,167.00 £
Decreased by 17.95 %
from 848,431.00 £
Est sale value
3,944,019.87 £
Decreased by 14.42 %
from 4,608,742.32 £
Average area rental value
2,133.00 £/mo
Decreased by 1.25 %
from 2,160.00 £/mo
Est letting value
6,330.69 £/mo
Unchanged by 0.00 %
from 6,330.69 £/mo
Est rental Yield
3.68 %
Increased by 20.26 %
from 3.06 %
Crime Rate
2.00 %
Unchanged by 0.00 %
from 2.00 %

Agent Activity

  • Winkworth created the listing.

Nearby Schools

NameTypeOfstedDistance
Hitherfield Primary SchoolCommunity SchoolGood0.43 KM
Hitherfield Primary School & Children'S Centre (P2)Children's Centre0.47 KM
Julian'S SchoolFoundation SchoolGood0.75 KM
Streatham Wells Primary SchoolCommunity SchoolGood0.80 KM
Dunraven SchoolAcademy ConverterOutstanding0.90 KM

Images

Picture No. 10 Picture No. 08 Picture No. 14 Picture No. 09 Picture No. 11 Picture No. 07 Picture No. 12 Picture No. 04 Picture No. 13 Picture No. 05 Picture No. 06 Picture No. 01 Picture No. 16 Picture No. 19 Picture No. 20 Picture No. 21 Picture No. 22 Picture No. 27 Picture No. 25 Picture No. 26 Picture No. 03 Picture No. 02 Picture No. 17 Picture No. 18 Picture No. 15

Nearby Streets

NameAverage PriceAverage SqftDistance
Yeomans Close £ 000.00 KM
Knollys Road £ 390,00000.00 KM
Caroline Close £ 000.00 KM
Neil Wates Crescent £ 375,00000.00 KM
Tredwell Road £ 000.00 KM

Nearby Transport

NameNLCTLCDistance
West Norwood5438WNW0.89 KM
Tulse Hill5390TUH0.93 KM
Streatham Hill5435SRH1.79 KM
West Dulwich5086WDU2.33 KM
Herne Hill5066HNH2.33 KM

Nearby Listings

AddressPriceTypeScoreDistance
Broxholm Road, West Norwood, London, SE27 £ 1,350,000BUY6 / 100.00 KM
Broxholm Road, London, SE27 £ 350,000BUY6 / 100.09 KM
Broxholm Road, London, SE27 £ 400,000BUYUnknown0.09 KM
Broxholm Road, West Norwood £ 475,000BUY6 / 100.10 KM
Knollys Road, London £ 775,000BUYUnknown0.12 KM

Nearby Properties

AddressPriceDistance
13 Portal Close £ 865,0000.08 KM
18 Portal Close £ 410,0000.08 KM
6 Portal Close £ 875,0000.08 KM
15 Portal Close £ 550,0000.08 KM
8 Portal Close £ 900,0000.08 KM