Ben Rose says ..
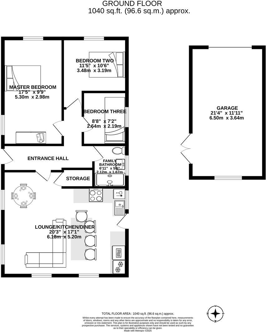
Ben Rose Estate Agents are delighted to bring to market this beautifully presented three-bedroom true fully detached bungalow with No Chain, ideally located in the highly desirable area of New Longton. Perfectly suited for small families or those seeking one level accommodation and offered with n...
Property Oracle says ..
Therefore, we give this property 8 / 10. *Disclaimer: This is our option and does constitute a recommendation or financial advice. Do your own research. *
- Price
- 9
- Condition
- 9
- Location
- 8
- Land
- 6
- Bedrooms
- 3
- Bathrooms
- 1
- Sqft (est)
- 1,040.00
The heatmap indicates the level of crime in the area. The color of the heatmap indicates the crime severity and recency.
Metrics Year-on-Year
- Average area value
- 472,750.00 £Decreased by 21.88 %
- Est sale value
- 799,760.00 £Increased by 27.74 %
- Average area rental value
- 1,418.00 £/moDecreased by 35.04 %
- Est letting value
- 2,080.00 £/moUnchanged by 0.00 %
- Est rental Yield
- 3.60 %Decreased by 16.86 %
- Crime Rate
- 40.00 %Unchanged by 0.00 %
from 605,189.00 £
from 626,080.00 £
from 2,183.00 £/mo
from 2,080.00 £/mo
from 4.33 %
from 40.00 %
Agent Activity
Ben Rose created the listing.
Nearby Schools
| Name | Type | Ofsted | Distance |
|---|---|---|---|
| New Longton All Saints Cofe Primary School | Voluntary Aided School | Good | 0.46 KM |
| Ashbridge Independent School | Other Independent School | 2.06 KM | |
| All Hallows Catholic High School | Voluntary Aided School | Outstanding | 2.21 KM |
| Howick Church Endowed Primary School | Voluntary Controlled School | Good | 2.35 KM |
| Aurora Brambles School | Other Independent Special School | Requires improvement | 2.46 KM |
Images
Nearby Streets
| Name | Average Price | Average Sqft | Distance |
|---|---|---|---|
| Churchside | £ 225,000 | 0 | 0.00 KM |
| The Cedars | £ 0 | 0 | 0.00 KM |
| Cage Lane | £ 519,983 | 0 | 0.00 KM |
| Lindle Lane | £ 0 | 0 | 0.00 KM |
Nearby Transport
| Name | NLC | TLC | Distance |
|---|---|---|---|
| Preston (Lancs) | 2753 | PRE | 5.71 KM |
| Lostock Hall | 2689 | LOH | 6.17 KM |
| Leyland | 2710 | LEY | 6.58 KM |
| Croston | 2313 | CSO | 6.90 KM |
| Bamber Bridge | 2561 | BMB | 9.14 KM |
Nearby Listings
| Address | Price | Type | Score | Distance |
|---|---|---|---|---|
| Brookdale, New Longton, Preston | £ 324,950 | BUY | 8 / 10 | 0.00 KM |
| Hawthorn Close, New Longton, Preston | £ 239,950 | BUY | 7 / 10 | 0.09 KM |
| Brookdale, New Longton, Preston | £ 269,950 | BUY | 7 / 10 | 0.22 KM |
| Mossway, New Longton | £ 235,000 | BUY | 6 / 10 | 0.22 KM |
| Hollings, New Longton | £ 225,000 | BUY | 7 / 10 | 0.28 KM |
Nearby Properties
| Address | Price | Distance |
|---|---|---|
| 60 Sheep Hill Lane | £ 285,000 | 0.07 KM |
| 62 Sheep Hill Lane | £ 298,000 | 0.07 KM |
| 63 Sheep Hill Lane | £ 250,000 | 0.07 KM |
| 51a Sheep Hill Lane | £ 148,000 | 0.07 KM |
| 40 Sheep Hill Lane | £ 233,000 | 0.07 KM |