Lower Vicarage Road, Kennington, TN24 9AP
DI

Lower Vicarage Road, Kennington, TN24 9AP

By Distinctive Homes

£ 1,000,000

Reviews

4 out of 5 stars

Distinctive Homes says ..

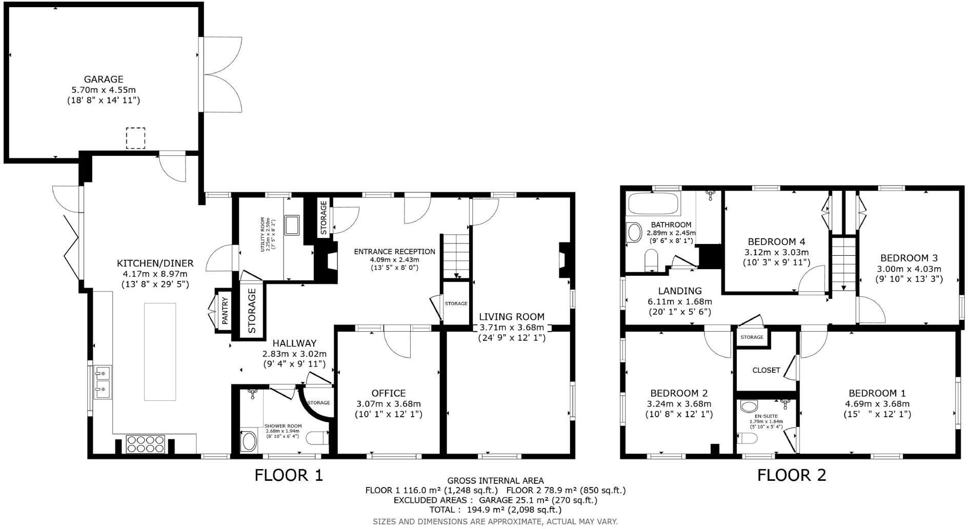
Lower Vicarage Road is a magnificent, Grade II listed detached period property. Built in the 1860s, this home has been meticulously refurbished and redecorated, seamlessly blending historic charm with contemporary luxury for supreme comfort.

Property Oracle says ..

Therefore, we give this property 8 / 10. *Disclaimer: This is our option and does constitute a recommendation or financial advice. Do your own research. *

Price
7
Condition
9
Location
8
Land
9
Bedrooms
4
Bathrooms
3

The heatmap indicates the level of crime in the area. The color of the heatmap indicates the crime severity and recency.

Metrics Year-on-Year

Average area value
257,097.00 £
Decreased by 8.25 %
from 280,201.00 £
Average area rental value
956.00 £/mo
Increased by 1.92 %
from 938.00 £/mo
Est rental Yield
4.46 %
Increased by 10.95 %
from 4.02 %
Crime Rate
1.00 %
Unchanged by 0.00 %
from 1.00 %

Agent Activity

  • Distinctive Homes created the listing.

Nearby Schools

NameTypeOfstedDistance
Sure Steps Children'S CentreChildren's Centre0.53 KM
Phoenix Community Primary SchoolFoundation SchoolGood0.53 KM
Towers School And Sixth Form CentreAcademy ConverterGood0.62 KM
Kennington Church Of England AcademyAcademy Sponsor LedGood0.76 KM
Goat Lees Primary SchoolFoundation SchoolGood0.91 KM

Images

Entrance Entrance Entrance Office Living Room Living Room Living Room Shower Room Shower Room Kitchen/Diner Kitchen/Diner Kitchen/Diner Kitchen/Diner Kitchen/Diner Utility Room Front Kitchen/Diner Bedroom 1 Bedroom 1 En-Suite Landing Kitchen/Diner Landing Bedroom 2 Bedroom 2 Bedroom 3 Bedroom 4 Bathroom Bathroom Front Garden Garden Garden Garden Garden Garden Garden Garden Garden Garden Garden Front Front Front Front Front Garden At Night Kitchen/Diner Entrance Hall

Nearby Streets

NameAverage PriceAverage SqftDistance
Rookery Close £ 325,00000.00 KM
Walnut Close £ 300,00000.00 KM
Grosvenor Road £ 297,50000.00 KM
Briar Close £ 000.00 KM
Underwood Close £ 000.00 KM

Nearby Transport

NameNLCTLCDistance
Ashford International5004AFK2.90 KM
Wye5031WYE5.56 KM

Nearby Listings

AddressPriceTypeScoreDistance
Lower Vicarage Road, Kennington, TN24 9AP £ 1,000,000BUY8 / 100.00 KM
Lower Vicarage Road, Kennington, TN24 £ 485,000BUY6 / 100.06 KM
Lower Vicarage Road, Kennington, Ashford TN24 £ 575,000BUY6 / 100.06 KM
Lower Vicarage Road, Kennington, Ashford, Kent, TN24 £ 290,000BUY6 / 100.11 KM
Lower Vicarage Road, Kennington, TN24 £ 265,000BUY6 / 100.11 KM

Nearby Properties

AddressPriceDistance
136 Lower Vicarage Road £ 148,5000.00 KM
134 Lower Vicarage Road £ 442,0000.00 KM
114 Lower Vicarage Road £ 215,0000.00 KM
90 Lower Vicarage Road £ 335,0000.00 KM
122 Lower Vicarage Road £ 269,0000.00 KM