Laleham Road, Staines-upon-Thames, TW18
By Gregory Brown
£ 900,000
Reviews
3 out of 5 stars
Gregory Brown says ..
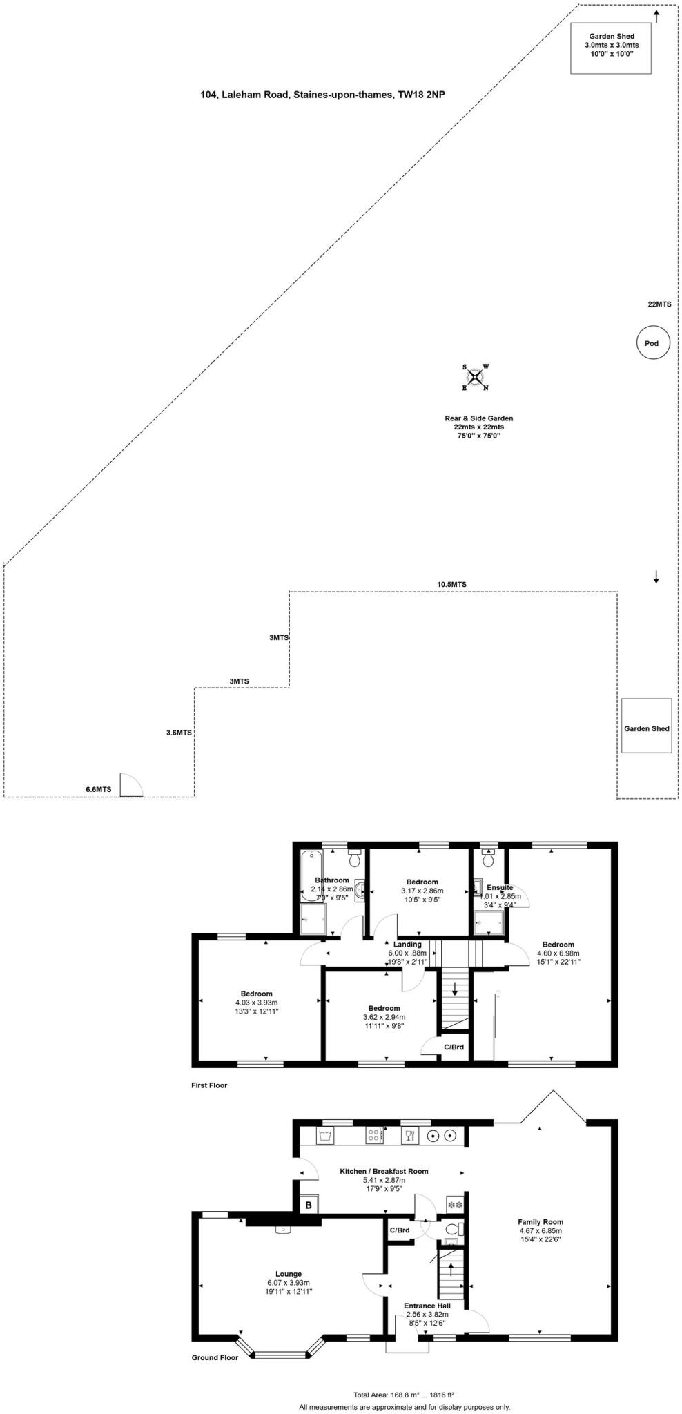
CHARMING DETACHED CHARACTER PROPERTY SITUATED ALONG THIS SOUGHT AFTER ROAD IDEALLY POSITIONED FOR EASY ACCESS TO STAINES TOWN CENTRE, MAINLINE TRAIN STATION, BUS ROUTES TO LHR/T5, LOCAL SHOPS & SCHOOLS. The property is in good order throughout and benefits from a spacious lounge, modern fi...
Property Oracle says ..
This property is a four bedroom detached house located on Laleham Road in Staines-upon-Thames. The location benefits from being close to local schools and transport links, including Staines train station which provides access to London Waterloo. The property itself is presented in good order and benefits from a recently extended kitchen and bi-fold doors leading to the rear garden. The property also benefits from a good sized garden and off street parking. The asking price of £900,000 is slightly higher than the average price for the area, but considering the property’s size, condition, and location, it could be considered reasonable. More information about the property’s square footage, plot size, and other features would help to further refine this assessment.
Therefore, we give this property 7 / 10. *Disclaimer: This is our option and does constitute a recommendation or financial advice. Do your own research. *
- Price
- 7
- Condition
- 8
- Location
- 9
- Land
- 7
- Bedrooms
- 4
- Bathrooms
- 2
- Sqft (est)
- 1,409.64
- Lot (est)
- 1,816.95
The heatmap indicates the level of crime in the area. The color of the heatmap indicates the crime severity and recency.
Metrics Year-on-Year
- Average area value
- 675,000.00 £Increased by 43.07 %
- Est sale value
- 575,133.12 £Decreased by 18.24 %
- Average area rental value
- 2,200.00 £/moIncreased by 22.22 %
- Est letting value
- 1,409.64 £/moUnchanged by 0.00 %
- Est rental Yield
- 3.91 %Decreased by 14.63 %
- Crime Rate
- 2.00 %Unchanged by 0.00 %
Agent Activity
Gregory Brown created the listing.
Nearby Schools
| Name | Type | Ofsted | Distance |
|---|---|---|---|
| Our Lady Of The Rosary Rc Primary School | Voluntary Aided School | Good | 0.23 KM |
| Riverbridge Primary School | Academy Converter | Good | 0.36 KM |
| Staines Preparatory School | Other Independent School | 0.94 KM | |
| The Magna Carta School | Academy Converter | Good | 1.86 KM |
| The Haven Sure Start Children'S Centre | Children's Centre | 1.92 KM |
Images
Nearby Streets
| Name | Average Price | Average Sqft | Distance |
|---|---|---|---|
| Park Avenue | £ 0 | 0 | 0.00 KM |
| St Peter's Close | £ 700,000 | 0 | 0.00 KM |
| Parkside Place | £ 0 | 0 | 0.00 KM |
| Thames Side | £ 0 | 0 | 0.00 KM |
| Pinewood Drive | £ 215,000 | 0 | 0.00 KM |
Nearby Transport
| Name | NLC | TLC | Distance |
|---|---|---|---|
| Staines | 5670 | SNS | 0.88 KM |
| Chertsey | 5553 | CHY | 4.23 KM |
| Ashford (Surrey) | 5667 | AFS | 4.30 KM |
| Egham | 5669 | EGH | 4.61 KM |
| Heathrow Terminal 5 | 9846 | HWV | 5.28 KM |
Nearby Listings
| Address | Price | Type | Score | Distance |
|---|---|---|---|---|
| Laleham Road, Staines-upon-Thames, TW18 | £ 900,000 | BUY | 7 / 10 | 0.00 KM |
| Laleham Road, Staines, Surrey, TW18 | £ 575,000 | BUY | 6 / 10 | 0.04 KM |
| Laleham Road, Staines, Surrey, TW18 | £ 900,000 | BUY | 7 / 10 | 0.04 KM |
| Laleham Road, Staines-upon-Thames, Surrey, TW18 | £ 300,000 | BUY | 6 / 10 | 0.05 KM |
| Laleham Road, Staines-upon-Thames, TW18 | £ 465,000 | BUY | 5 / 10 | 0.06 KM |
Nearby Properties
| Address | Price | Distance |
|---|---|---|
| 96 Laleham Road | £ 165,000 | 0.04 KM |
| 90 Laleham Road | £ 385,000 | 0.04 KM |
| 92 Laleham Road | £ 618,500 | 0.04 KM |
| 94 Laleham Road | £ 360,000 | 0.04 KM |
| 98 Laleham Road | £ 571,000 | 0.04 KM |