Dunkerton Close, Glastonbury, BA6
By Cooper & Tanner
£ 197,500
Reviews
3 out of 5 stars
Cooper & Tanner says ..
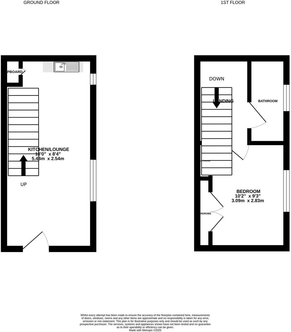
A rarely available one bedroom house (with Freehold) located in a small cul-de-sac close to open countryside. The property benefits from a new kitchen and bathroom, allocated parking and is offered to the market with vacant possession.
Property Oracle says ..
This property is a one bedroom, one bathroom terraced house located in Glastonbury, Somerset. Based on the provided images, the property appears to be in reasonable condition, with a recently updated kitchen and bathroom. There is a small, manageable garden. The list price of £197,500 seems reasonable when compared to other properties on Dunkerton Close and in the surrounding area. While the property is smaller than many others in the area, its price reflects its size and features. The location is convenient, with several schools within a reasonable distance. However, information on nearby transportation is lacking.
Therefore, we give this property 6 / 10. *Disclaimer: This is our option and does constitute a recommendation or financial advice. Do your own research. *
- Price
- 7
- Condition
- 7
- Location
- 6
- Land
- 4
- Bedrooms
- 1
- Bathrooms
- 1
- Sqft (est)
- 316.53
The heatmap indicates the level of crime in the area. The color of the heatmap indicates the crime severity and recency.
Metrics Year-on-Year
- Average area value
- 366,667.00 £Decreased by 1.64 %
- Est sale value
- 128,827.71 £Increased by 34.77 %
- Average area rental value
- 865.00 £/moDecreased by 6.49 %
- Est letting value
- 0.00 £/mo
- Est rental Yield
- 2.83 %Decreased by 5.03 %
- Crime Rate
- 3.00 %Unchanged by 0.00 %
Agent Activity
Cooper & Tanner created the listing.
Nearby Schools
| Name | Type | Ofsted | Distance |
|---|---|---|---|
| St John'S Church Of England Voluntary Controlled Infants School | Voluntary Controlled School | Good | 1.25 KM |
| Mendip West | Children's Centre | 1.43 KM | |
| St Benedict'S Church Of England Voluntary Aided Junior School | Voluntary Aided School | Good | 1.50 KM |
| St Dunstan'S School | Academy Converter | Good | 1.72 KM |
| Millfield Preparatory School | Other Independent School | 2.10 KM |
Images
Nearby Streets
| Name | Average Price | Average Sqft | Distance |
|---|---|---|---|
| Bilbury Lane | £ 0 | 0 | 0.00 KM |
| Meadow View | £ 395,000 | 0 | 0.00 KM |
| Cinnamon Lane | £ 0 | 0 | 0.00 KM |
| Launder Close | £ 0 | 0 | 0.00 KM |
| Cow Bridge Road | £ 0 | 0 | 0.00 KM |
Nearby Listings
| Address | Price | Type | Score | Distance |
|---|---|---|---|---|
| Dunkerton Close, Glastonbury, BA6 | £ 197,500 | BUY | 6 / 10 | 0.00 KM |
| Dunkerton Close, Glastonbury | £ 239,950 | BUY | 6 / 10 | 0.01 KM |
| Dunkerton Close, Glastonbury, BA6 | £ 285,000 | BUY | 7 / 10 | 0.03 KM |
| Coppin Close, Glastonbury, BA6 | £ 335,000 | BUY | 6 / 10 | 0.05 KM |
| Abbey Meads, Glastonbury | £ 380,000 | BUY | 7 / 10 | 0.15 KM |
Nearby Properties
| Address | Price | Distance |
|---|---|---|
| 9 Dunkerton Close | £ 235,000 | 0.01 KM |
| 15 Dunkerton Close | £ 133,000 | 0.01 KM |
| 3 Dunkerton Close | £ 141,000 | 0.01 KM |
| 17 Dunkerton Close | £ 112,500 | 0.01 KM |
| 7 Dunkerton Close | £ 130,000 | 0.01 KM |