CH
Kings Road, Harrow, HA2
By Christopher Edwards
£ 265,000
Reviews
3 out of 5 stars
Christopher Edwards says ..
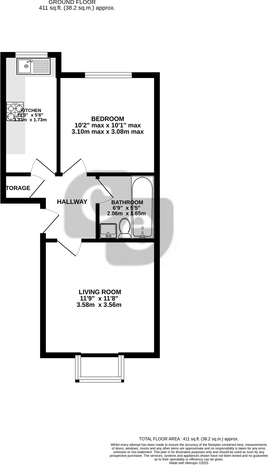
** NO ONWARD CHAIN ** A spacious and well maintained one bedroom ground floor flat conveniently located 0.4 miles from Rayners Lane Metropolitan/Piccadilly Line station. The property would make an ideal first time purchase or buy to let investment. The accommodation briefly comprises secure co...
Property Oracle says ..
Therefore, we give this property 6 / 10. *Disclaimer: This is our option and does constitute a recommendation or financial advice. Do your own research. *
- Price
- 7
- Condition
- 6
- Location
- 7
- Land
- 6
- Bedrooms
- 1
- Bathrooms
- 1
- Sqft (est)
- 411.00
The heatmap indicates the level of crime in the area. The color of the heatmap indicates the crime severity and recency.
Metrics Year-on-Year
- Average area value
- 341,429.00 £Increased by 9.95 %
- Est sale value
- 128,643.00 £Decreased by 25.65 %
- Average area rental value
- 875.00 £/moDecreased by 18.53 %
- Est letting value
- 0.00 £/moDecreased by 100.00 %
- Est rental Yield
- 3.08 %Decreased by 25.78 %
- Crime Rate
- 9.00 %Unchanged by 0.00 %
from 310,533.00 £
from 173,031.00 £
from 1,074.00 £/mo
from 411.00 £/mo
from 4.15 %
from 9.00 %
Agent Activity
Christopher Edwards created the listing.
Nearby Schools
| Name | Type | Ofsted | Distance |
|---|---|---|---|
| Newton Farm Nursery, Infant And Junior School | Community School | Outstanding | 0.21 KM |
| Alexandra School | Academy Special Converter | Outstanding | 0.73 KM |
| Roxbourne Primary School | Community School | Good | 0.93 KM |
| Heathland School | Academy Converter | 0.94 KM | |
| Gesher School | Other Independent School | Outstanding | 0.98 KM |
Images
Nearby Streets
| Name | Average Price | Average Sqft | Distance |
|---|---|---|---|
| Lynton Road | £ 0 | 0 | 0.00 KM |
| Newton Close | £ 282,500 | 0 | 0.00 KM |
| Dukes Avenue | £ 642,500 | 0 | 0.00 KM |
| Farm Avenue | £ 775,000 | 0 | 0.00 KM |
| Rodney Close | £ 895,000 | 0 | 0.00 KM |
Nearby Transport
| Name | NLC | TLC | Distance |
|---|---|---|---|
| Northolt Park | 1478 | NLT | 2.30 KM |
| South Ruislip | 3057 | SRU | 3.09 KM |
| Headstone Lane | 1434 | HDL | 4.04 KM |
| Harrow-On-The-Hill | 598 | HOH | 4.30 KM |
| Hatch End | 1398 | HTE | 4.34 KM |
Nearby Listings
| Address | Price | Type | Score | Distance |
|---|---|---|---|---|
| Kings Road, Harrow, HA2 | £ 265,000 | BUY | 6 / 10 | 0.00 KM |
| Chichester Court, Kings Road, Harrow, HA2 | £ 185,000 | BUY | 6 / 10 | 0.01 KM |
| Chichester Court, Kings Road, Rayners Lane, Middlesex, HA2 | £ 265,000 | BUY | 5 / 10 | 0.02 KM |
| Chichester Court, Rayners Lane, Middlesex, HA2 | £ 260,000 | BUY | 7 / 10 | 0.02 KM |
| Kings Road, Harrow | £ 900,000 | BUY | 6 / 10 | 0.19 KM |
Nearby Properties
| Address | Price | Distance |
|---|---|---|
| 260 Kings Road | £ 269,500 | 0.02 KM |
| 254 Kings Road | £ 183,500 | 0.02 KM |
| 265a Kings Road | £ 160,000 | 0.07 KM |
| 265 Kings Road | £ 204,950 | 0.07 KM |
| 267 Kings Road | £ 284,000 | 0.07 KM |