Torrington
ST

Torrington

By Stags

£ 180,000

Reviews

3 out of 5 stars

Stags says ..

Remaining two plots- A freehold development site with full planning permission for two semi detached houses within walking distance of all town amenities.

Property Oracle says ..

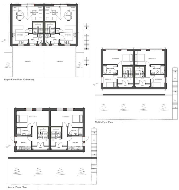
This property is a new build under construction located in Crowbeare Meadow, Great Torrington, Devon. The listing indicates the property is one of several plots available within a small development. The site plans show that each plot will have a garden which is an advantage. The external appearance in the photographs shows a relatively modern design. However, the property is not yet completed, and so a full analysis cannot be given. There is nearby schooling at the Great Torrington School and the Great Torrington Bluecoat Church of England Primary School. Both are within a reasonable distance making it suitable for families. The surrounding area offers views of open countryside and the images display that it may be relatively quiet. The price seems competitive based on nearby comparable listings, although a more accurate price-per-square-foot analysis isn’t possible due to incomplete property information. Without more details about internal finishes and the precise dimensions, and current stage of construction a complete valuation is impossible. Potential buyers should be aware they are purchasing a property under development, which involves inherent risks and uncertainties, particularly regarding timing and final finish quality.

Therefore, we give this property 6 / 10. *Disclaimer: This is our option and does constitute a recommendation or financial advice. Do your own research. *

Price
7
Condition
4
Location
7
Land
6
Bedrooms
0
Bathrooms
0
Sqft (est)
1,614.59

The heatmap indicates the level of crime in the area. The color of the heatmap indicates the crime severity and recency.

Metrics Year-on-Year

Average area value
283,167.00 £
Increased by 7.70 %
from 262,921.00 £
Est sale value
565,106.50 £
Increased by 33.59 %
from 423,022.58 £
Average area rental value
723.00 £/mo
Increased by 8.72 %
from 665.00 £/mo
Est letting value
0.00 £/mo
from 0.00 £/mo
Est rental Yield
3.06 %
Increased by 0.66 %
from 3.04 %
Crime Rate
20.00 %
Unchanged by 0.00 %
from 20.00 %

Agent Activity

  • Stags created the listing.

Nearby Schools

NameTypeOfstedDistance
Great Torrington SchoolAcademy ConverterGood0.32 KM
Bluecoat Children'S CentreChildren's Centre0.78 KM
Great Torrington Bluecoat Church Of England Primary SchoolVoluntary Controlled SchoolGood0.78 KM
Marland SchoolFoundation Special SchoolGood7.26 KM
Monkleigh Primary SchoolCommunity SchoolGood7.31 KM

Images

Plot 5 and 6.jpg Front Plan.png dji_fly_20240609_103822_64_1717925912445_photo_opt Screenshot 2024-06-11 101914.png Back plan.png North Elevation.png West Elevation.png South Elevation.png East Elevation.png image00061.jpeg image00064.jpeg image00065.jpeg image00062.jpeg image00066.jpeg image00069.jpeg image00070.jpeg image00067.jpeg

Nearby Streets

NameAverage PriceAverage SqftDistance
Jubilee Close £ 328,75000.00 KM
Cromwell Close £ 450,00000.00 KM
Watery Lane £ 233,33300.00 KM
Hunterswood £ 233,33300.00 KM
Well Street £ 209,21900.00 KM

Nearby Listings

AddressPriceTypeScoreDistance
Torrington £ 180,000BUY6 / 100.00 KM
Crowbeare Meadow, Torrington, Devon £ 150,000BUY6 / 100.07 KM
Torrington, Devon £ 230,000BUY7 / 100.17 KM
Torrington, Devon £ 250,000BUY7 / 100.18 KM
Jubilee Close, Torrington, Devon, EX38 £ 300,000BUY7 / 100.26 KM

Nearby Properties

AddressPriceDistance
1 Dartington Close £ 165,0000.10 KM
8 Dartington Close £ 149,9500.10 KM
11 Dartington Fields £ 85,0000.10 KM
26 Dartington Fields £ 195,0000.10 KM
28 Dartington Fields £ 137,0000.10 KM