Balmaclellan, Castle Douglas, Kirkcudbrightshire, DG7
SA

Balmaclellan, Castle Douglas, Kirkcudbrightshire, DG7

By Savills

£ 750,000

Reviews

3 out of 5 stars

Savills says ..

A picturesque smallholding within a desirable location

Property Oracle says ..

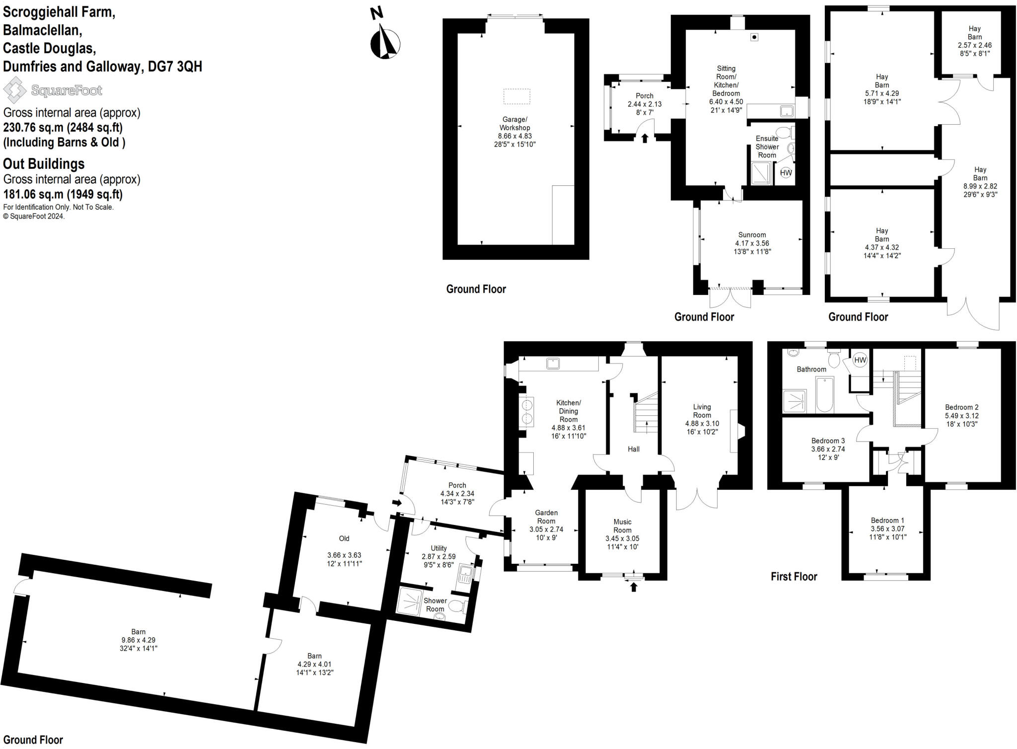
This property in Balmaclellan, Dumfries and Galloway, offers a substantial package, combining a sizeable dwelling with extensive grounds. The listing with Savills describes it as a picturesque smallholding, a description that appears accurate judging by the provided aerial photographs. The property appears to comprise a main house alongside several outbuildings, suggesting potential for various uses. The interior photographs reveal a traditional style, though perhaps somewhat dated in places. Some updating of the interior would likely enhance the property’s appeal and market value.

The lack of detailed information regarding proximity to amenities such as schools, shops, and transportation links makes it difficult to assess the location fully. The closest data points to nearby streets suggests a varying range of property prices but without enough details to offer definitive comparisons. The expansive grounds are a clear advantage, particularly for those seeking rural living or with specific agricultural interests.

Overall, this property is likely to appeal to buyers seeking a substantial rural property in a beautiful setting, who are prepared to either modernize the existing interior or manage the existing grounds. The current asking price would need to be considered in the context of a potential buyer’s budget and plans for any modernization or renovation, as the availability of precise information on similar properties in the immediate area is limited.

Therefore, we give this property 6 / 10. *Disclaimer: This is our option and does constitute a recommendation or financial advice. Do your own research. *

Price
7
Condition
6
Location
4
Land
7
Bedrooms
3
Bathrooms
2
Sqft (est)
2,483.88

The heatmap indicates the level of crime in the area. The color of the heatmap indicates the crime severity and recency.

Metrics Year-on-Year

Average area value
507,692.00 £
Decreased by 14.14 %
from 591,271.00 £
Est sale value
1,341,295.20 £
Increased by 25.58 %
from 1,068,068.40 £
Average area rental value
1,925.00 £/mo
Decreased by 6.28 %
from 2,054.00 £/mo
Est letting value
4,967.76 £/mo
Increased by 100.00 %
from 2,483.88 £/mo
Est rental Yield
4.55 %
Increased by 9.11 %
from 4.17 %
Crime Rate
0.00 %
from 0.00 %

Agent Activity

  • Savills created the listing.

Images

Scroggie Hall House Approach Kitchen Scroggie Hall Front View Garden Seating Area Kitchen Living Room Land Bothy Scroggie Hall Music Room Bothy Internal Aerial View Land Land Patio Garden Grounds Land Picture No. 31 Vegetable Garden Hill

Nearby Listings

AddressPriceTypeScoreDistance
Balmaclellan, Castle Douglas, Kirkcudbrightshire, DG7 £ 750,000BUY6 / 100.00 KM