FA
St. Barnabas Close, Gloucester
By Farr & Farr
£ 365,000
Reviews
3 out of 5 stars
Farr & Farr says ..
****A SURPRISINGLY LARGE CHALET STYLE DETACHED HOUSE OVERLOOKING AN AREA OF CENTRAL GREEN IN THIS POPULAR CUL DE SAC****
Property Oracle says ..
Therefore, we give this property 6 / 10. *Disclaimer: This is our option and does constitute a recommendation or financial advice. Do your own research. *
- Price
- 6
- Condition
- 6
- Location
- 7
- Land
- 7
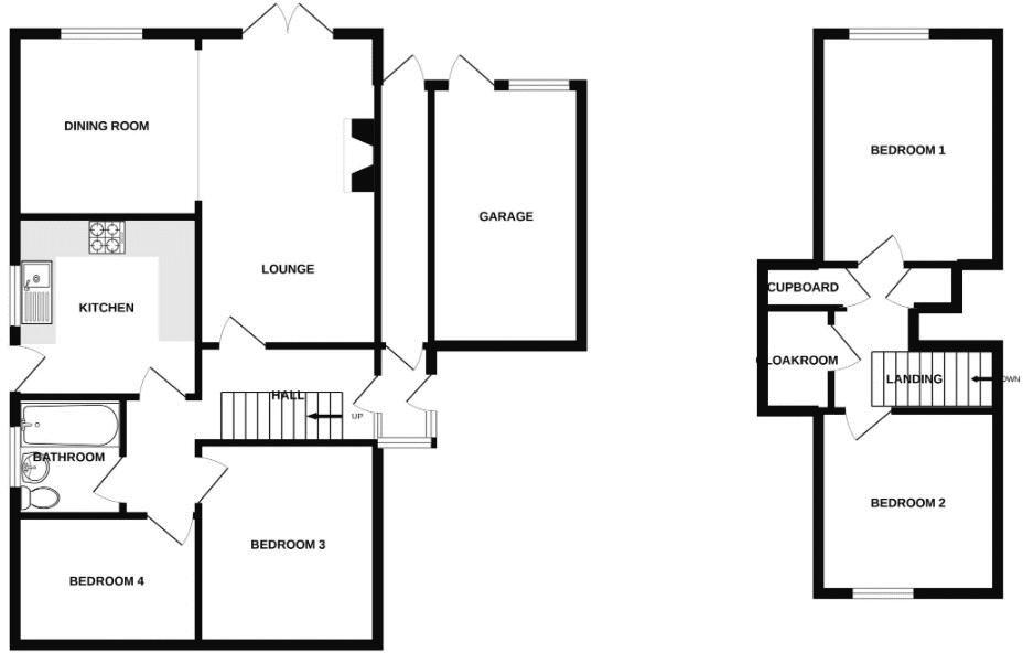
- Bedrooms
- 4
- Bathrooms
- 1
- Sqft (est)
- 1,173.00
The heatmap indicates the level of crime in the area. The color of the heatmap indicates the crime severity and recency.
Metrics Year-on-Year
- Average area value
- 290,495.00 £Decreased by 11.63 %
- Est sale value
- 381,225.00 £Increased by 0.31 %
- Average area rental value
- 1,124.00 £/moIncreased by 4.46 %
- Est letting value
- 1,173.00 £/moUnchanged by 0.00 %
- Est rental Yield
- 4.64 %Increased by 18.07 %
- Crime Rate
- 0.00 %
from 328,713.00 £
from 380,052.00 £
from 1,076.00 £/mo
from 1,173.00 £/mo
from 3.93 %
from 0.00 %
Agent Activity
Farr & Farr created the listing.
Nearby Schools
| Name | Type | Ofsted | Distance |
|---|---|---|---|
| Ribston Hall High School | Academy Converter | Good | 0.69 KM |
| The Crypt School | Academy Converter | Outstanding | 0.72 KM |
| Calton Primary School | Community School | Good | 0.73 KM |
| The Lighthouse | Children's Centre | 1.16 KM | |
| Linden Primary School | Community School | Good | 1.24 KM |
Images
Nearby Streets
| Name | Average Price | Average Sqft | Distance |
|---|---|---|---|
| Hill Road | £ 0 | 0 | 0.00 KM |
| Kemble Close | £ 0 | 0 | 0.00 KM |
| Raikes Road | £ 0 | 0 | 0.00 KM |
| Winget Close | £ 0 | 0 | 0.00 KM |
| Winchcombe Road | £ 0 | 0 | 0.00 KM |
Nearby Transport
| Name | NLC | TLC | Distance |
|---|---|---|---|
| Gloucester | 4760 | GCR | 2.91 KM |
Nearby Listings
| Address | Price | Type | Score | Distance |
|---|---|---|---|---|
| St. Barnabas Close, Gloucester | £ 365,000 | BUY | 6 / 10 | 0.00 KM |
| St. Barnabas Close, Gloucester, GL1 | £ 280,000 | BUY | 7 / 10 | 0.10 KM |
| Bridge Field Court, Stroud Road, Gloucester | £ 525,000 | BUY | 6 / 10 | 0.19 KM |
| Bridge Field Court, Gloucester, Gloucestershire, GL4 | £ 600,000 | BUY | 7 / 10 | 0.19 KM |
| Bridge Field Court, Gloucester, Gloucestershire, GL4 | £ 490,000 | BUY | 7 / 10 | 0.19 KM |
Nearby Properties
| Address | Price | Distance |
|---|---|---|
| 35 St Barnabas Close | £ 230,000 | 0.07 KM |
| 18 St Barnabas Close | £ 223,000 | 0.07 KM |
| 7 St Barnabas Close | £ 280,000 | 0.07 KM |
| 20 St Barnabas Close | £ 345,000 | 0.07 KM |
| 4 St Barnabas Close | £ 330,000 | 0.07 KM |