High Road, Wood Green
By Alex Crown Lettings & Estate Agents
£ 1,195,000
Reviews
1 out of 5 stars
Alex Crown Lettings & Estate Agents says ..
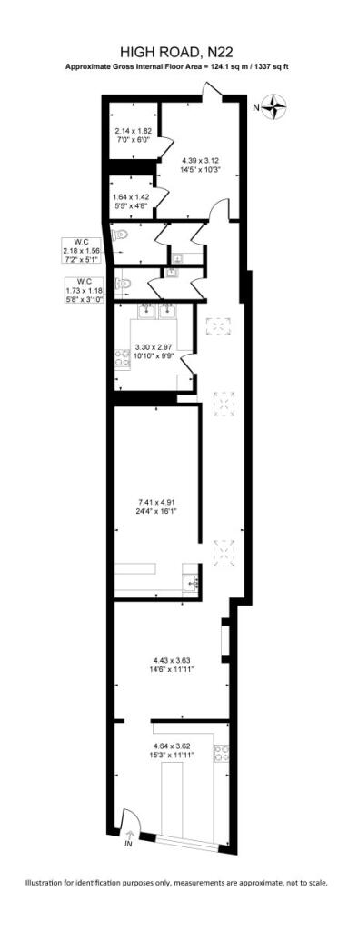
Freehold Mixed-Use Investment Opportunity - Restaurant with Two Residential Flats Above Location: High Road, N22 8JW An excellent opportunity to acquire a substantial freehold mixed-use property in a prime location on High Road, N22.
Property Oracle says ..
This property is located on the High Road in Wood Green, a bustling area with various amenities. The area benefits from good transport links with several train stations within walking distance. There are also numerous schools nearby, including highly-rated options. However, the property itself appears to be in need of significant renovation. The images show dated interiors and fixtures that would require substantial updating. The lack of plot size information makes it difficult to assess the land aspect. Considering the average house price and price per square foot in the area, the listed price of £1,195,000 seems high, especially given the condition of the property. A more accurate valuation would require a full survey and assessment of the property’s structural integrity and potential.
Therefore, we give this property 3 / 10. *Disclaimer: This is our option and does constitute a recommendation or financial advice. Do your own research. *
- Price
- 4
- Condition
- 3
- Location
- 7
- Land
- 1
- Bedrooms
- 5
- Bathrooms
- 2
- Sqft (est)
- 1,335.80
The heatmap indicates the level of crime in the area. The color of the heatmap indicates the crime severity and recency.
Metrics Year-on-Year
- Average area value
- 489,165.00 £Increased by 16.57 %
- Est sale value
- 832,203.40 £Increased by 28.45 %
- Average area rental value
- 1,679.00 £/moDecreased by 8.30 %
- Est letting value
- 2,671.60 £/moUnchanged by 0.00 %
- Est rental Yield
- 4.12 %Decreased by 21.37 %
- Crime Rate
- 8.00 %Unchanged by 0.00 %
Agent Activity
Alex Crown Lettings & Estate Agents created the listing.
Nearby Schools
| Name | Type | Ofsted | Distance |
|---|---|---|---|
| St Thomas More Catholic School | Academy Converter | Outstanding | 0.42 KM |
| Tottenhall Children'S Centre | Children's Centre | 0.44 KM | |
| Earlham Primary School | Community School | Good | 0.56 KM |
| The Tab Children'S Centre | Children's Centre Linked Site | 0.58 KM | |
| Tottenhall Infant School | Community School | Requires improvement | 0.60 KM |
Images
Nearby Streets
| Name | Average Price | Average Sqft | Distance |
|---|---|---|---|
| Spencer Avenue | £ 0 | 0 | 0.00 KM |
| The Mews | £ 0 | 0 | 0.00 KM |
| North Circular Road | £ 525,000 | 0 | 0.00 KM |
| Mohr Court | £ 0 | 0 | 0.00 KM |
| Lloyd Thomas Court | £ 0 | 0 | 0.00 KM |
Nearby Transport
| Name | NLC | TLC | Distance |
|---|---|---|---|
| Bowes Park | 6027 | BOP | 1.14 KM |
| Palmers Green | 6021 | PAL | 1.16 KM |
| Alexandra Palace | 6025 | AAP | 1.56 KM |
| Hornsey | 6015 | HRN | 2.40 KM |
| Winchmore Hill | 6024 | WIH | 3.08 KM |
Nearby Listings
| Address | Price | Type | Score | Distance |
|---|---|---|---|---|
| Green Lanes, London | £ 260,000 | BUY | 6 / 10 | 0.07 KM |
| Maryland Road, Wood Green, London, N22 | £ 390,000 | BUY | 6 / 10 | 0.07 KM |
| Green Lanes, London | £ 350,000 | BUY | Unknown | 0.08 KM |
| Spencer Avenue, Palmers Green, N13 | £ 749,995 | BUY | 6 / 10 | 0.13 KM |
| Spencer Avenue, London, N13 | £ 375,000 | BUY | 7 / 10 | 0.14 KM |
Nearby Properties
| Address | Price | Distance |
|---|---|---|
| 334a High Road | £ 430,000 | 0.00 KM |
| 334c High Road | £ 310,000 | 0.00 KM |
| 344 High Road | £ 234,500 | 0.00 KM |
| 334b High Road | £ 50,000 | 0.00 KM |
| 13a Green Lanes | £ 92,000 | 0.09 KM |