Chancellors says ..
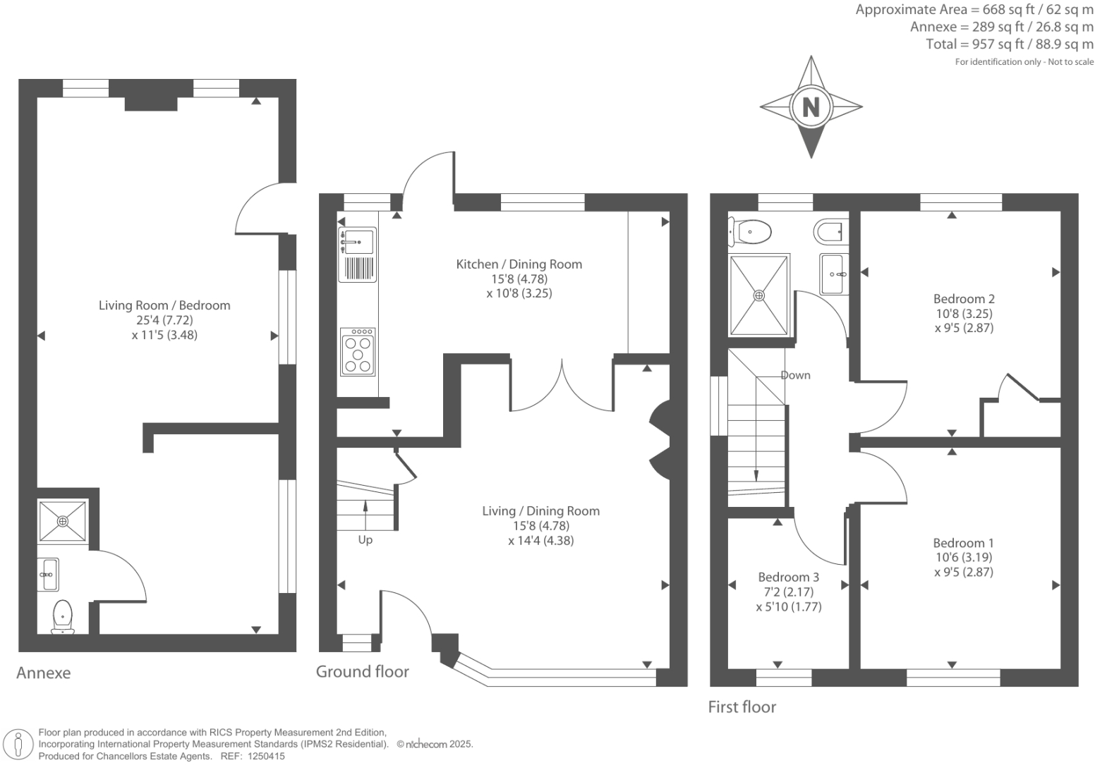
This semi-detached family home offers easy access to Woking Town Centre & Woking Station providing access into central London and beyond. Further benefits include a separate granny annex. There is further potential to enhance and extend subject to planning consents.
Property Oracle says ..
This is a three-bedroom semi-detached property located in Woking, Surrey. The property is in a fair condition, with some rooms in need of renovation. It has a garden with a shed and a decked area. The property is located close to schools and transportation links. The list price is reasonable for the area and the condition of the property.
Therefore, we give this property 6 / 10. *Disclaimer: This is our option and does constitute a recommendation or financial advice. Do your own research. *
- Price
- 7
- Condition
- 5
- Location
- 7
- Land
- 6
- Bedrooms
- 3
- Bathrooms
- 2
- Sqft (est)
- 956.91
- Lot (est)
- 288.47
The heatmap indicates the level of crime in the area. The color of the heatmap indicates the crime severity and recency.
Metrics Year-on-Year
- Average area value
- 531,250.00 £Increased by 10.45 %
- Est sale value
- 689,932.11 £Increased by 52.43 %
- Average area rental value
- 2,200.00 £/moIncreased by 7.53 %
- Est letting value
- 1,913.82 £/moUnchanged by 0.00 %
- Est rental Yield
- 4.97 %Decreased by 2.55 %
- Crime Rate
- 13.00 %Unchanged by 0.00 %
Agent Activity
Chancellors marked this listing as sold.
Chancellors created the listing.
Nearby Schools
| Name | Type | Ofsted | Distance |
|---|---|---|---|
| Hoe Bridge School | Other Independent School | 0.57 KM | |
| Woking College | Academy 16-19 Converter | Good | 0.87 KM |
| St John The Baptist Catholic Comprehensive School, Woking | Academy Converter | 0.97 KM | |
| Sythwood At Old Woking Sure Start Children'S Centre | Children's Centre Linked Site | 1.03 KM | |
| Kingfield Primary School | Academy Converter | 1.09 KM |
Images
Nearby Streets
| Name | Average Price | Average Sqft | Distance |
|---|---|---|---|
| Manor Way | £ 498,750 | 0 | 0.00 KM |
| Robinson Close | £ 0 | 0 | 0.00 KM |
| Church Street | £ 0 | 0 | 0.00 KM |
| Round Hill | £ 0 | 0 | 0.00 KM |
| Queen Elizabeth Way | £ 1,200,000 | 0 | 0.00 KM |
Nearby Transport
| Name | NLC | TLC | Distance |
|---|---|---|---|
| Woking | 5685 | WOK | 2.32 KM |
| Worplesdon | 5686 | WPL | 4.93 KM |
| West Byfleet | 5684 | WBY | 5.47 KM |
| Clandon | 5555 | CLA | 6.22 KM |
| London Road (Guildford) | 5632 | LRD | 7.64 KM |
Nearby Listings
| Address | Price | Type | Score | Distance |
|---|---|---|---|---|
| Woking, Surrey, GU22 | £ 495,000 | BUY | 6 / 10 | 0.00 KM |
| Ford Road, Woking, Surrey, GU22 | £ 425,000 | BUY | 6 / 10 | 0.13 KM |
| Rydens Way, Woking, Surrey, GU22 | £ 425,000 | BUY | 6 / 10 | 0.14 KM |
| Rydens Way, Woking, GU22 | £ 475,000 | BUY | 6 / 10 | 0.14 KM |
| Selwood Road, Woking, Surrey, GU22 | £ 400,000 | BUY | Unknown | 0.19 KM |
Nearby Properties
| Address | Price | Distance |
|---|---|---|
| 24 Ford Road | £ 205,000 | 0.13 KM |
| 8 Ford Road | £ 233,000 | 0.13 KM |
| 22 Ford Road | £ 457,500 | 0.13 KM |
| 20 Ford Road | £ 450,000 | 0.13 KM |
| 16 Ford Road | £ 245,000 | 0.13 KM |