Bradleys says ..
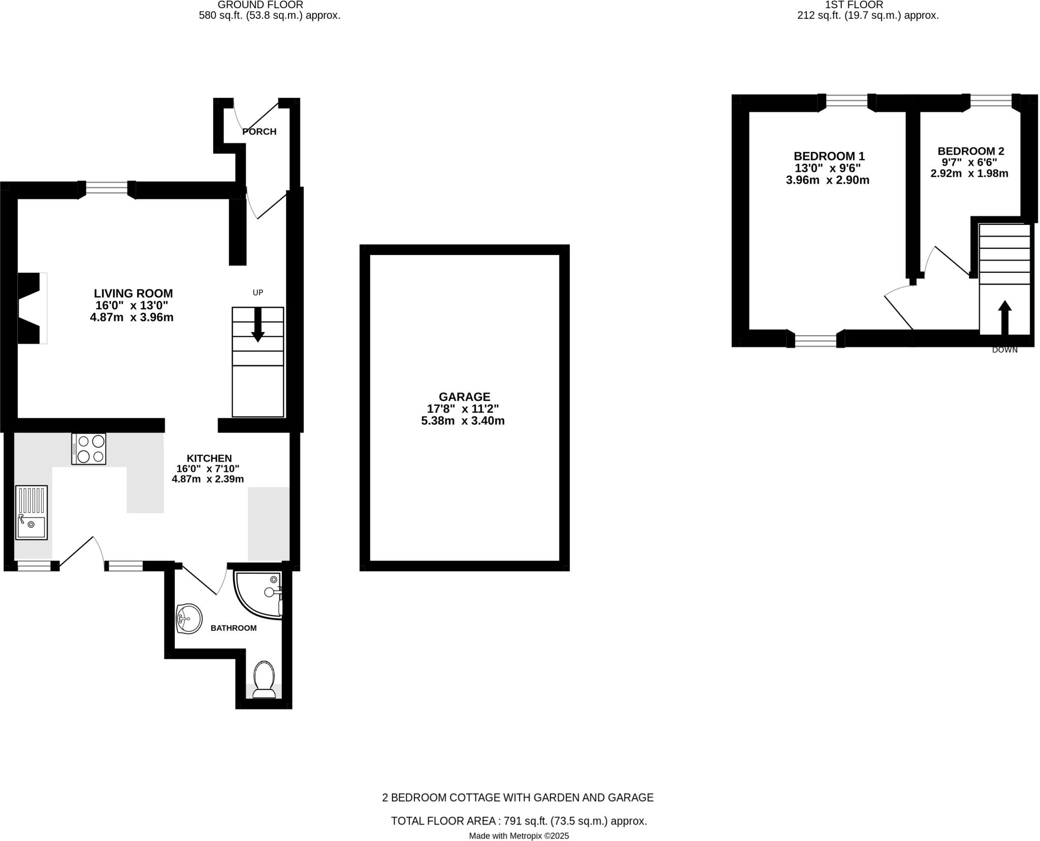
Surprisingly spacious 2 bedroom character cottage! Bradleys are pleased to present this end of terrace character cottage boasting two bedrooms, parking to the front, large garden to the rear with garage. This property is conveniently located within a short walk into Camborne high street...
Property Oracle says ..
Therefore, we give this property 7 / 10. *Disclaimer: This is our option and does constitute a recommendation or financial advice. Do your own research. *
- Price
- 6
- Condition
- 8
- Location
- 7
- Land
- 7
- Bedrooms
- 2
- Bathrooms
- 1
- Sqft (est)
- 715.80
The heatmap indicates the level of crime in the area. The color of the heatmap indicates the crime severity and recency.
Metrics Year-on-Year
- Average area value
- 380,500.00 £Decreased by 7.95 %
- Est sale value
- 218,319.00 £Increased by 0.66 %
- Average area rental value
- 1,550.00 £/moIncreased by 31.91 %
- Est letting value
- 715.80 £/mo
- Est rental Yield
- 4.89 %Increased by 43.40 %
- Crime Rate
- 26.00 %Unchanged by 0.00 %
from 413,363.00 £
from 216,887.40 £
from 1,175.00 £/mo
from 0.00 £/mo
from 3.41 %
from 26.00 %
Agent Activity
Bradleys created the listing.
Nearby Schools
| Name | Type | Ofsted | Distance |
|---|---|---|---|
| St John'S Catholic Primary School, Camborne | Academy Converter | Good | 0.60 KM |
| Roskear School | Academy Converter | Good | 0.84 KM |
| Rosemellin Community Primary School | Academy Converter | Good | 0.85 KM |
| Trevithick Learning Academy | Academy Converter | 0.89 KM | |
| Camborne Nursery School | Local Authority Nursery School | Outstanding | 0.94 KM |
Images
Nearby Streets
| Name | Average Price | Average Sqft | Distance |
|---|---|---|---|
| Mitchell Lane | £ 0 | 0 | 0.00 KM |
| Adelaide Street | £ 0 | 0 | 0.00 KM |
| Albert Place | £ 99,000 | 0 | 0.00 KM |
| Jubilee Place | £ 175,000 | 0 | 0.00 KM |
| Penhale Road | £ 0 | 0 | 0.00 KM |
Nearby Transport
| Name | NLC | TLC | Distance |
|---|---|---|---|
| Camborne | 3504 | CBN | 0.58 KM |
| Redruth | 3530 | RED | 8.00 KM |
Nearby Listings
| Address | Price | Type | Score | Distance |
|---|---|---|---|---|
| North Parade, Camborne, Cornwall | £ 190,000 | BUY | 7 / 10 | 0.00 KM |
| North Parade, Camborne, Camborne | £ 125,000 | BUY | 6 / 10 | 0.04 KM |
| Vyvyan Street, Camborne - requiring refreshment | £ 185,000 | BUY | 6 / 10 | 0.07 KM |
| Vyvyan Street, Camborne, Cornwall, TR14 | £ 100,000 | BUY | 5 / 10 | 0.08 KM |
| Vyvyan Street, Camborne, Cornwall | £ 200,000 | BUY | Unknown | 0.08 KM |
Nearby Properties
| Address | Price | Distance |
|---|---|---|
| 25 North Parade | £ 115,500 | 0.04 KM |
| 19a North Parade | £ 70,000 | 0.04 KM |
| 12 North Parade | £ 20,000 | 0.04 KM |
| 35 North Parade | £ 113,000 | 0.04 KM |
| 1 North Parade | £ 40,000 | 0.04 KM |