Gascoigne Halman says ..
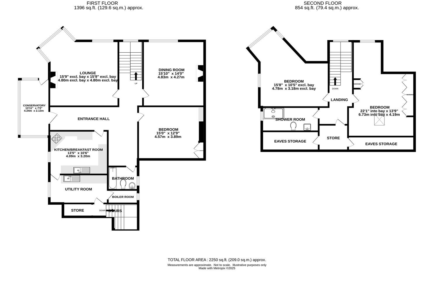
An impressive, spacious and beautifully presented duplex apartment in a characterful period property. The property offers generous accommodation throughout with high ceilings, period features and well proportioned rooms including a delightful first floor conservatory, two separate reception rooms...
Property Oracle says ..
This property is a 3 bedroom, 2 bathroom apartment located in Buxton, Derbyshire. The apartment is situated on Manchester Road in the Corbar area, and benefits from being within reasonable distance of local schools and transport links. The property itself appears to be in good condition, with a modern kitchen and bathrooms. The property also benefits from a good sized garden. While the list price is above the average for the area, the larger size and good condition of this property may justify the higher price.
Therefore, we give this property 7 / 10. *Disclaimer: This is our option and does constitute a recommendation or financial advice. Do your own research. *
- Price
- 7
- Condition
- 9
- Location
- 8
- Land
- 7
- Bedrooms
- 3
- Bathrooms
- 2
- Sqft (est)
- 1,275.48
- Lot (est)
- 2,250.00
The heatmap indicates the level of crime in the area. The color of the heatmap indicates the crime severity and recency.
Metrics Year-on-Year
- Average area value
- 334,167.00 £Increased by 24.23 %
- Est sale value
- 327,798.36 £Decreased by 19.44 %
- Average area rental value
- 1,252.00 £/moIncreased by 4.33 %
- Est letting value
- 0.00 £/moDecreased by 100.00 %
- Est rental Yield
- 4.50 %Decreased by 15.89 %
- Crime Rate
- 11.00 %Unchanged by 0.00 %
Agent Activity
Gascoigne Halman created the listing.
Nearby Schools
| Name | Type | Ofsted | Distance |
|---|---|---|---|
| Buxton And Leek College | Miscellaneous | 0.82 KM | |
| St Thomas More Catholic Voluntary Academy | Academy Converter | 1.10 KM | |
| St Anne'S Catholic Voluntary Academy | Academy Converter | 1.26 KM | |
| Buxton Community School | Voluntary Controlled School | Good | 1.32 KM |
| Burbage Primary School | Community School | Good | 1.37 KM |
Images
Nearby Streets
| Name | Average Price | Average Sqft | Distance |
|---|---|---|---|
| The Glade | £ 0 | 0 | 0.00 KM |
| Thornwood Court | £ 65,000 | 0 | 0.00 KM |
| Sycamore Close | £ 429,995 | 0 | 0.00 KM |
| A5004 | £ 0 | 0 | 0.00 KM |
| Saint John's Road | £ 376,213 | 0 | 0.00 KM |
Nearby Transport
| Name | NLC | TLC | Distance |
|---|---|---|---|
| Buxton | 2946 | BUX | 1.21 KM |
| Chapel-En-Le-Frith | 2762 | CEF | 5.59 KM |
| Dove Holes | 2766 | DVH | 5.64 KM |
| Chinley | 2823 | CLY | 8.97 KM |
Nearby Listings
| Address | Price | Type | Score | Distance |
|---|---|---|---|---|
| Manchester Road, Buxton | £ 360,000 | BUY | 7 / 10 | 0.00 KM |
| Park Road, Buxton | £ 425,000 | BUY | Unknown | 0.13 KM |
| Nithen End Farm, Buxton | £ 525,000 | BUY | 6 / 10 | 0.16 KM |
| Punch Bowl Park, Manchester Road, Buxton | £ 129,995 | BUY | 7 / 10 | 0.19 KM |
| Punch Bowl Caravan Park, Buxton | £ 165,000 | BUY | 7 / 10 | 0.19 KM |
Nearby Properties
| Address | Price | Distance |
|---|---|---|
| 145 Park Road | £ 275,000 | 0.17 KM |
| 1 Alder Grove | £ 310,000 | 0.22 KM |
| 12 Alder Grove | £ 250,000 | 0.22 KM |
| 69 Park Road | £ 387,500 | 0.28 KM |
| 73 Park Road | £ 390,000 | 0.28 KM |