Beaumaris Road, Plymouth, Devon, PL3 5SA
By Sensible Move
£ 250,000
Reviews
3 out of 5 stars
Sensible Move says ..
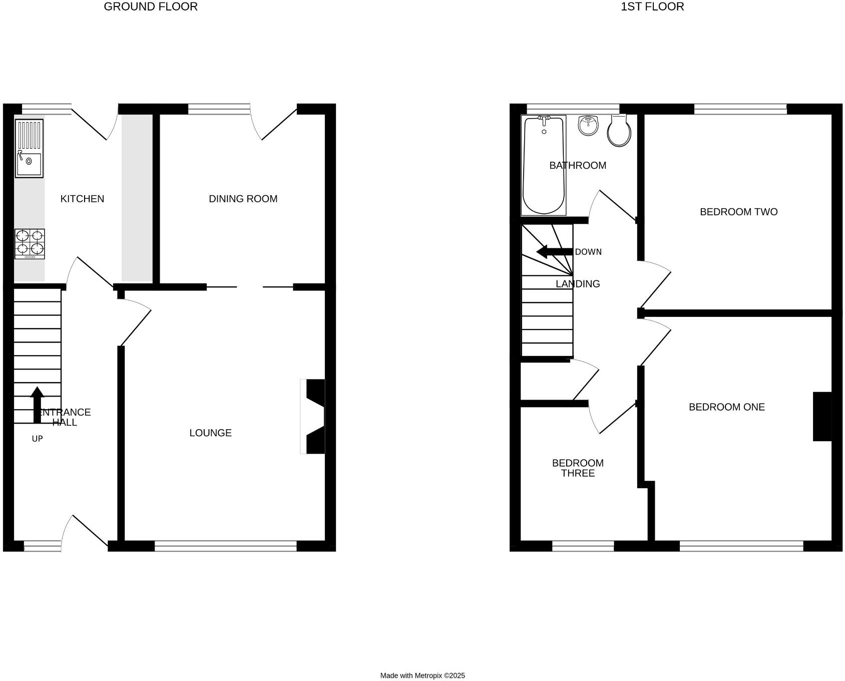
Semi Detached family home IN NEED OF MODERNISATION situated in a highly sought after residential area with 3 bedrooms - 2 receptions - garage and gardens
Property Oracle says ..
This property is a 3-bedroom semi-detached house located in Compton, Plymouth. The property benefits from being close to local schools and transport links. While the house itself is in need of modernisation and updating, the asking price appears reasonable in comparison to similar properties in the area. The garden is a decent size, though in need of some landscaping.
Therefore, we give this property 6 / 10. *Disclaimer: This is our option and does constitute a recommendation or financial advice. Do your own research. *
- Price
- 7
- Condition
- 4
- Location
- 7
- Land
- 6
- Bedrooms
- 3
- Bathrooms
- 1
The heatmap indicates the level of crime in the area. The color of the heatmap indicates the crime severity and recency.
Metrics Year-on-Year
- Average area value
- 332,250.00 £Increased by 4.68 %
- Average area rental value
- 769.00 £/moIncreased by 6.81 %
- Est rental Yield
- 2.78 %Increased by 2.21 %
- Crime Rate
- 1.00 %Unchanged by 0.00 %
Agent Activity
Sensible Move created the listing.
Nearby Schools
| Name | Type | Ofsted | Distance |
|---|---|---|---|
| Courtlands School | Academy Special Converter | Good | 0.59 KM |
| Widey Court Primary School | Academy Converter | Good | 0.71 KM |
| Manadon Vale Primary School | Academy Converter | Good | 0.75 KM |
| Eggbuckland Community College | Academy Converter | Requires improvement | 0.85 KM |
| Compton Cofe Primary School | Voluntary Controlled School | Good | 0.86 KM |
Images
Nearby Streets
| Name | Average Price | Average Sqft | Distance |
|---|---|---|---|
| Leighton Road | £ 0 | 0 | 0.00 KM |
| St Joseph's Close | £ 360,000 | 0 | 0.00 KM |
| Torr Crescent | £ 475,000 | 0 | 0.00 KM |
| Harlech Close | £ 0 | 0 | 0.00 KM |
| Fort Austin Avenue | £ 0 | 0 | 0.00 KM |
Nearby Transport
| Name | NLC | TLC | Distance |
|---|---|---|---|
| Plymouth | 3580 | PLY | 2.71 KM |
| Devonport | 3579 | DPT | 4.96 KM |
| Dockyard (Devonport) | 3588 | DOC | 5.32 KM |
| Keyham | 3571 | KEY | 5.49 KM |
| St Budeaux Ferry Road | 3590 | SBF | 6.21 KM |
Nearby Listings
| Address | Price | Type | Score | Distance |
|---|---|---|---|---|
| Beaumaris Road, Plymouth, Devon, PL3 5SA | £ 250,000 | BUY | 6 / 10 | 0.00 KM |
| Beaumaris Gardens, Hartley Vale, Plymouth | £ 255,000 | BUY | 6 / 10 | 0.06 KM |
| Corfe Avenue, Hartley, Plymouth | £ 315,000 | BUY | 6 / 10 | 0.07 KM |
| Corfe Avenue, Plymouth | £ 425,000 | BUY | 7 / 10 | 0.09 KM |
| Linketty Lane West, Plymouth | £ 280,000 | BUY | 6 / 10 | 0.14 KM |
Nearby Properties
| Address | Price | Distance |
|---|---|---|
| 86 Beaumaris Road | £ 206,000 | 0.00 KM |
| 77 Beaumaris Road | £ 140,000 | 0.00 KM |
| 97 Beaumaris Road | £ 216,750 | 0.00 KM |
| 73 Beaumaris Road | £ 268,000 | 0.00 KM |
| 75 Beaumaris Road | £ 199,995 | 0.00 KM |