Rodney Street, Merseyside, L1
By Harding Green
£ 895,000
Reviews
4 out of 5 stars
Harding Green says ..
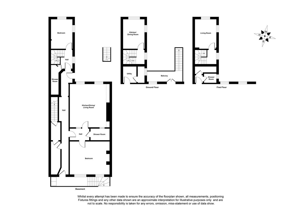
Built in circa 1800, “Number 50” is a Grade II listed maisonette with a private garden, located in Liverpool's historic Georgian Quarter
Property Oracle says ..
This property is located on Rodney Street in Liverpool, Merseyside. The area is known for its Georgian architecture and proximity to the city centre. The property itself is a substantial four-bedroom, four-bathroom house with a significant plot size of 3,329 sqft. Based on the photos provided, the property appears to be well-maintained and recently renovated to a high standard. The interior is modern and stylish, featuring a contemporary kitchen and updated bathrooms. The property also benefits from a private rear garden and is within walking distance of several schools and transport links. The list price of £895,000 is high compared to the average price in the area (£260,420), but this is expected given the property’s size, location, condition and unique features. Nearby comparable properties on Rodney Street have sold for significantly higher prices, suggesting the list price may be reasonable within the context of the local market for high-end properties. However, potential buyers should conduct their own thorough due diligence before making an offer.
Therefore, we give this property 8 / 10. *Disclaimer: This is our option and does constitute a recommendation or financial advice. Do your own research. *
- Price
- 7
- Condition
- 9
- Location
- 10
- Land
- 8
- Bedrooms
- 4
- Bathrooms
- 4
- Sqft (est)
- 2,310.00
- Lot (est)
- 3,329.00
The heatmap indicates the level of crime in the area. The color of the heatmap indicates the crime severity and recency.
Metrics Year-on-Year
- Average area value
- 277,018.00 £Decreased by 9.31 %
- Est sale value
- 924,000.00 £Increased by 21.95 %
- Average area rental value
- 1,179.00 £/moIncreased by 1.11 %
- Est letting value
- 2,310.00 £/moUnchanged by 0.00 %
- Est rental Yield
- 5.11 %Increased by 11.57 %
- Crime Rate
- 6.00 %Unchanged by 0.00 %
Agent Activity
Harding Green created the listing.
Nearby Schools
| Name | Type | Ofsted | Distance |
|---|---|---|---|
| Liverpool Institute Of Performing Arts | Higher Education Institutions | 0.22 KM | |
| Lipa Primary And High School | Free Schools | Good | 0.25 KM |
| Lipa Sixth Form College | Free Schools 16 To 19 | Outstanding | 0.25 KM |
| Liverpool John Moores University | Higher Education Institutions | 0.30 KM | |
| The City Of Liverpool College | Further Education | Good | 0.38 KM |
Images
Nearby Streets
| Name | Average Price | Average Sqft | Distance |
|---|---|---|---|
| Leece Street | £ 0 | 0 | 0.00 KM |
| Baltimore Street | £ 0 | 0 | 0.00 KM |
| Rodney Street | £ 1,700,000 | 0 | 0.00 KM |
| Rice Street | £ 0 | 0 | 0.00 KM |
| Oldham Place | £ 0 | 0 | 0.00 KM |
Nearby Transport
| Name | NLC | TLC | Distance |
|---|---|---|---|
| Liverpool Central | 2242 | LVC | 0.72 KM |
| Liverpool Lime Street | 2246 | LIV | 0.82 KM |
| Moorfields | 2226 | MRF | 1.90 KM |
| Brunswick | 3623 | BRW | 2.00 KM |
| Liverpool James Street | 2244 | LVJ | 2.06 KM |
Nearby Listings
| Address | Price | Type | Score | Distance |
|---|---|---|---|---|
| Rodney Street, Merseyside, L1 | £ 895,000 | BUY | 8 / 10 | 0.00 KM |
| 62 Rodney Street, Liverpool, L1 | £ 190,000 | BUY | 7 / 10 | 0.02 KM |
| Penthouse 1, Roscoe Street, Liverpool, L1 | £ 560,000 | BUY | Unknown | 0.05 KM |
| Penthouse 2, Roscoe Street, Liverpool, L1 | £ 460,000 | BUY | 8 / 10 | 0.05 KM |
| Liverpool, L1 | £ 560,000 | BUY | 7 / 10 | 0.06 KM |
Nearby Properties
| Address | Price | Distance |
|---|---|---|
| 52 Rodney Street | £ 950,000 | 0.05 KM |
| 26 Roscoe Street | £ 125,000 | 0.06 KM |
| 25 Pilgrim Street | £ 325,000 | 0.10 KM |
| 36 Pilgrim Street | £ 189,950 | 0.11 KM |
| 21 Rodney Street | £ 133,000 | 0.16 KM |