Highgate Avenue, Highgate, N6
By Drivers & Norris
£ 525,000
Reviews
2 out of 5 stars
Drivers & Norris says ..
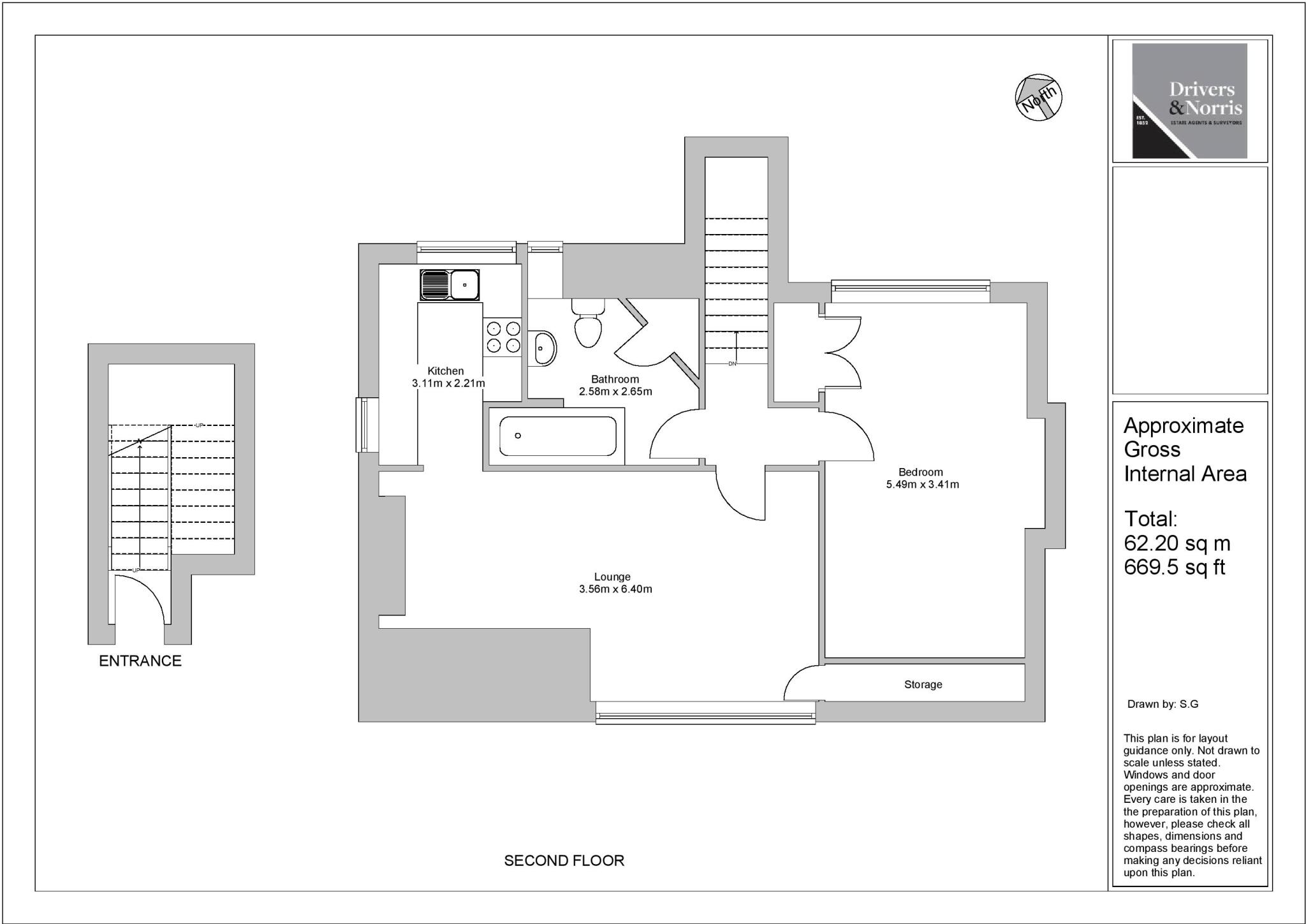
Top floor one bedroom converted apartment within this imposing double fronted semi detached period property located on this prestigious residential turning just a short distance to Highgate station (Northern Line) and the impressive array of cafes ,bars, restaurants and independent retailers in H...
Property Oracle says ..
The property is a one-bedroom apartment located on Highgate Avenue in Highgate, London. Based on the provided images, the property appears to be in reasonable condition, though some minor renovations or updates might enhance its appeal. The apartment is relatively small at 669.52 sqft and lacks outdoor space. Highgate is a desirable area known for its proximity to green spaces, good schools, and transport links. However, the lack of information regarding the specific location within Highgate and the absence of plot size data makes a precise evaluation of its location and land score challenging. The list price of £525,000 seems relatively high given the size and lack of outdoor space, especially when compared to similar properties in the area. More comprehensive information on comparable properties, including their square footage and plot sizes, would be needed to make a more informed judgment on the price.
Therefore, we give this property 4 / 10. *Disclaimer: This is our option and does constitute a recommendation or financial advice. Do your own research. *
- Price
- 5
- Condition
- 6
- Location
- 7
- Land
- 1
- Bedrooms
- 1
- Bathrooms
- 1
- Sqft (est)
- 669.52
The heatmap indicates the level of crime in the area. The color of the heatmap indicates the crime severity and recency.
Metrics Year-on-Year
- Average area value
- 1,309,500.00 £Decreased by 14.68 %
- Est sale value
- 1,047,129.28 £Increased by 31.65 %
- Average area rental value
- 2,427.00 £/moDecreased by 19.07 %
- Est letting value
- 1,339.04 £/moUnchanged by 0.00 %
- Est rental Yield
- 2.22 %Decreased by 5.13 %
- Crime Rate
- 4.00 %Unchanged by 0.00 %
Agent Activity
Drivers & Norris created the listing.
Nearby Schools
| Name | Type | Ofsted | Distance |
|---|---|---|---|
| The Avenue Pre-Preparatory School And Nursery | Other Independent School | 0.03 KM | |
| Odyssey House School | Other Independent School | 0.49 KM | |
| Channing School | Other Independent School | 0.62 KM | |
| Highgate School | Other Independent School | 0.65 KM | |
| St Michael'S Cofe Voluntary Aided Primary School | Voluntary Aided School | Good | 0.75 KM |
Images
Nearby Streets
| Name | Average Price | Average Sqft | Distance |
|---|---|---|---|
| Townsend Yard | £ 0 | 0 | 0.00 KM |
| Park Walk | £ 0 | 0 | 0.00 KM |
| Bishops Road | £ 0 | 0 | 0.00 KM |
| Broadbent Close | £ 0 | 0 | 0.00 KM |
| Highgate Hill | £ 0 | 0 | 0.00 KM |
Nearby Transport
| Name | NLC | TLC | Distance |
|---|---|---|---|
| Upper Holloway | 1524 | UHL | 2.16 KM |
| Gospel Oak | 1409 | GPO | 2.38 KM |
| Kentish Town | 1553 | KTN | 2.86 KM |
| Crouch Hill | 7406 | CRH | 3.09 KM |
| Hampstead Heath | 1413 | HDH | 3.26 KM |
Nearby Listings
| Address | Price | Type | Score | Distance |
|---|---|---|---|---|
| Highgate Avenue, Highgate, N6 | £ 525,000 | BUY | 4 / 10 | 0.00 KM |
| Highgate Avenue, Highgate, N6 | £ 630,000 | BUY | 7 / 10 | 0.00 KM |
| Highgate Avenue, Highgate, N6 | £ 350,000 | BUY | 5 / 10 | 0.05 KM |
| Southwood Avenue, Highgate | £ 2,450,000 | BUY | Unknown | 0.11 KM |
| Southwood Avenue, Highgate, London, N6 | £ 1,495,000 | BUY | 7 / 10 | 0.11 KM |
Nearby Properties
| Address | Price | Distance |
|---|---|---|
| 5 Highgate Avenue | £ 300,000 | 0.01 KM |
| 1 | £ 1,810,000 | 0.01 KM |
| 4 Highgate Avenue | £ 2,425,000 | 0.01 KM |
| 247 Archway Road | £ 930,000 | 0.09 KM |
| 245 Archway Road | £ 250,000 | 0.09 KM |