Rosedale Terrace Dalling Road, Hammersmith, London, W6
By Cow & Co
£ 950,000
Reviews
3 out of 5 stars
Cow & Co says ..
A superb three bedroom first and second floor maisonette located in the ever popular area known as Brackenbury village.
Property Oracle says ..
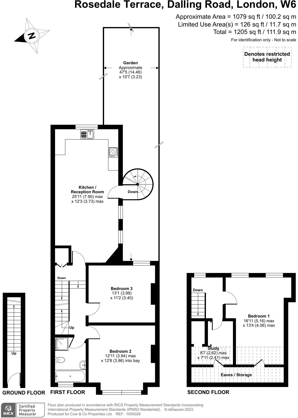
This three-bedroom maisonette located on Rosedale Terrace in Ravenscourt Park, Hammersmith, presents a compelling proposition for buyers seeking a family home in a highly sought-after area of West London. The property benefits from a convenient location within proximity to outstanding primary schools such as John Betts and Brackenbury Primary, both less than 0.3km away. Ravenscourt Park itself also offers green space and recreational amenities close at hand.
The interior is presented in generally good condition, though some features might benefit from modernization. The light and airy living spaces are complemented by a good size kitchen with access to a well-maintained garden; although compact, it still provides valuable outdoor space. The overall presentation suggests a property that is well-maintained but may offer scope for some further improvements to meet the preferences of a new owner.
The presence of three bedrooms is a significant advantage, catering to families or those needing additional space. The absence of specific details regarding the property’s square footage, along with limited comparable sales data, however, makes it challenging to firmly establish whether the asking price of £950,000 reflects outstanding value for money. However, consideration of nearby property sales suggests that the listing price could be deemed to be within a reasonable range for this location and property type.
Therefore, we give this property 7 / 10. *Disclaimer: This is our option and does constitute a recommendation or financial advice. Do your own research. *
- Price
- 7
- Condition
- 7
- Location
- 9
- Land
- 5
- Bedrooms
- 3
- Bathrooms
- 1
- Sqft (est)
- 1,205.00
- Lot (est)
- 475.00
The heatmap indicates the level of crime in the area. The color of the heatmap indicates the crime severity and recency.
Metrics Year-on-Year
- Average area value
- 1,500,000.00 £Increased by 39.77 %
- Est sale value
- 2,461,815.00 £Increased by 105.95 %
- Average area rental value
- 2,803.00 £/moIncreased by 1.19 %
- Est letting value
- 3,615.00 £/moIncreased by 50.00 %
- Est rental Yield
- 2.24 %Decreased by 27.74 %
- Crime Rate
- 2.00 %Unchanged by 0.00 %
Agent Activity
Cow & Co marked this listing as sold.
Cow & Co created the listing.
Nearby Schools
| Name | Type | Ofsted | Distance |
|---|---|---|---|
| John Betts Primary School | Voluntary Aided School | Outstanding | 0.20 KM |
| Brackenbury Primary School | Community School | Outstanding | 0.27 KM |
| Beyondautism Post-19 | Special Post 16 Institution | 0.33 KM | |
| Flora Gardens Children'S Centre | Children's Centre Linked Site | 0.37 KM | |
| Flora Gardens Primary School | Community School | Good | 0.37 KM |
Images
Nearby Streets
| Name | Average Price | Average Sqft | Distance |
|---|---|---|---|
| Parnell Close | £ 0 | 0 | 0.00 KM |
| Elgin Avenue | £ 512,500 | 0 | 0.00 KM |
| Glenthorne Road | £ 0 | 0 | 0.00 KM |
| Scotts Road | £ 599,950 | 0 | 0.00 KM |
| Hampshire Hog Lane | £ 680,000 | 0 | 0.00 KM |
Nearby Transport
| Name | NLC | TLC | Distance |
|---|---|---|---|
| Shepherd'S Bush | 9587 | SPB | 2.02 KM |
| Kensington (Olympia) | 3092 | KPA | 2.66 KM |
| Acton Central | 1404 | ACC | 3.37 KM |
| Barnes Bridge | 5580 | BNI | 3.53 KM |
| Barnes | 5551 | BNS | 3.55 KM |
Nearby Listings
| Address | Price | Type | Score | Distance |
|---|---|---|---|---|
| Rosedale Terrace Dalling Road, Hammersmith, London, W6 | £ 950,000 | BUY | 7 / 10 | 0.00 KM |
| Dalling Road, Hammersmith, London, W6 | £ 650,000 | BUY | 7 / 10 | 0.03 KM |
| Dalling Road, London | £ 550,000 | BUY | 6 / 10 | 0.04 KM |
| Dalling Road, London | £ 550,000 | BUY | 6 / 10 | 0.04 KM |
| Dalling Road, London | £ 650,000 | BUY | 6 / 10 | 0.04 KM |
Nearby Properties
| Address | Price | Distance |
|---|---|---|
| 14 Nasmyth Street | £ 640,000 | 0.02 KM |
| 52 Nasmyth Street | £ 1,560,000 | 0.02 KM |
| 30 Nasmyth Street | £ 1,625,000 | 0.02 KM |
| 62 Nasmyth Street | £ 1,350,000 | 0.02 KM |
| 56 Nasmyth Street | £ 1,523,523 | 0.02 KM |