Villa Fontaine, Sydenham Hill, London, SE26
By Caddingtons
£ 625,000
Reviews
3 out of 5 stars
Caddingtons says ..
Designed by Craftworks, a global award winning company and one of Britain's most enterprising and intelligent architect practices, voted one of the world's top 50 best-emerging architects by Wallpaper magazine.
Property Oracle says ..
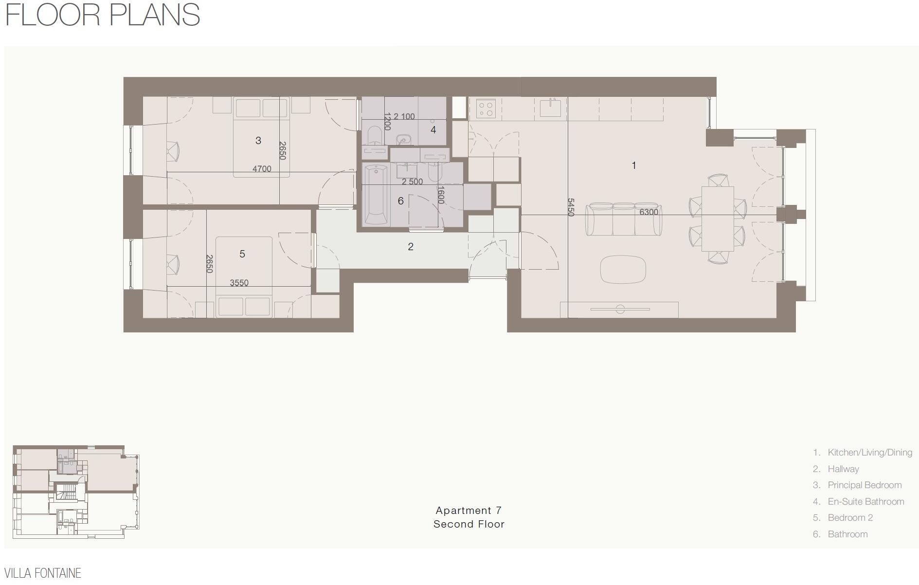
This is a modern apartment located in the desirable Sydenham Hill area of London. The property is well-connected in terms of transportation and is located near several schools. The apartment is in excellent condition, with modern fixtures and fittings. While the price is slightly above the average for the area, it reflects the quality and location of the property. The apartment includes a balcony.
Therefore, we give this property 6 / 10. *Disclaimer: This is our option and does constitute a recommendation or financial advice. Do your own research. *
- Price
- 6
- Condition
- 9
- Location
- 7
- Land
- 5
- Bedrooms
- 2
- Bathrooms
- 2
- Sqft (est)
- 204,514.31
The heatmap indicates the level of crime in the area. The color of the heatmap indicates the crime severity and recency.
Metrics Year-on-Year
- Average area value
- 541,000.00 £Increased by 7.25 %
- Est sale value
- 139,683,273.73 £Increased by 51.44 %
- Average area rental value
- 1,900.00 £/moIncreased by 1.17 %
- Est letting value
- 409,028.62 £/moIncreased by 100.00 %
- Est rental Yield
- 4.21 %Decreased by 5.82 %
- Crime Rate
- 3.00 %Unchanged by 0.00 %
Agent Activity
Caddingtons created the listing.
Nearby Schools
| Name | Type | Ofsted | Distance |
|---|---|---|---|
| Dulwich Wood Children'S Centre And Nursery School & Children'S Centre | Children's Centre | 0.52 KM | |
| Dulwich Wood Nursery School | Local Authority Nursery School | Good | 0.59 KM |
| Dulwich Wood Primary School | Community School | Good | 0.91 KM |
| Paxton Primary School | Community School | Outstanding | 0.95 KM |
| Kingsdale Foundation School | Academy Converter | Outstanding | 1.14 KM |
Images
Nearby Streets
| Name | Average Price | Average Sqft | Distance |
|---|---|---|---|
| Bluebell Close | £ 650,000 | 0 | 0.00 KM |
| Westwood Hill | £ 0 | 0 | 0.00 KM |
| Hitherwood Court | £ 0 | 0 | 0.00 KM |
| Bowley Close | £ 0 | 0 | 0.00 KM |
| Crystal Palace Parade | £ 650,000 | 0 | 0.00 KM |
Nearby Transport
| Name | NLC | TLC | Distance |
|---|---|---|---|
| Sydenham Hill | 5085 | SYH | 0.73 KM |
| Gipsy Hill | 5363 | GIP | 1.02 KM |
| Crystal Palace | 5356 | CYP | 1.18 KM |
| Penge West | 5378 | PNW | 2.02 KM |
| Anerley | 5397 | ANZ | 2.09 KM |
Nearby Listings
| Address | Price | Type | Score | Distance |
|---|---|---|---|---|
| Villa Fontaine, Sydenham Hill, London, SE26 | £ 595,000 | BUY | 7 / 10 | 0.00 KM |
| Villa Fontaine, Sydenham Hill, London, SE26 | £ 625,000 | BUY | 6 / 10 | 0.00 KM |
| 13 Sydenham Hill, London, SE26 | £ 475,000 | BUY | 7 / 10 | 0.00 KM |
| Villa Fontaine, Sydenham Hill, SE26 | £ 595,000 | BUY | 7 / 10 | 0.02 KM |
| Villa Fontaine, Sydenham Hill, SE26 | £ 625,000 | BUY | 7 / 10 | 0.02 KM |
Nearby Properties
| Address | Price | Distance |
|---|---|---|
| 7 Chestnut Place | £ 245,000 | 0.09 KM |
| 5 Chestnut Place | £ 495,000 | 0.09 KM |
| 4 Chestnut Place | £ 390,000 | 0.09 KM |
| 1 Chestnut Place | £ 291,000 | 0.10 KM |
| 3 Chestnut Place | £ 1,042,000 | 0.10 KM |