Hampton Court Road, Birmingham, B17 9AG
By MECS Sales & Lettings
£ 350,000
Reviews
3 out of 5 stars
MECS Sales & Lettings says ..
Charming Two-Bedroom Terraced Home in Prime Harborne Location with off road parking
Property Oracle says ..
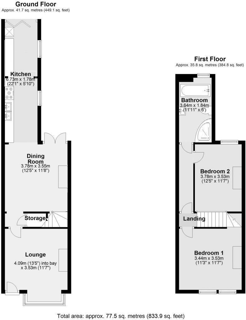
This is a well-presented two-bedroom terraced house in a popular location in Quinton, Birmingham. The property is in good condition and benefits from a modern interior, a well-maintained garden, and proximity to local amenities and schools. The property is ideally suited to a small family or first-time buyer.
Therefore, we give this property 7 / 10. *Disclaimer: This is our option and does constitute a recommendation or financial advice. Do your own research. *
- Price
- 7
- Condition
- 8
- Location
- 7
- Land
- 7
- Bedrooms
- 2
- Bathrooms
- 1
- Sqft (est)
- 834.20
The heatmap indicates the level of crime in the area. The color of the heatmap indicates the crime severity and recency.
Metrics Year-on-Year
- Average area value
- 343,500.00 £Decreased by 10.23 %
- Est sale value
- 251,094.20 £Increased by 62.70 %
- Average area rental value
- 1,207.00 £/moDecreased by 5.18 %
- Est letting value
- 834.20 £/mo
- Est rental Yield
- 4.22 %Increased by 5.76 %
- Crime Rate
- 5.00 %Unchanged by 0.00 %
Agent Activity
MECS Sales & Lettings created the listing.
Nearby Schools
| Name | Type | Ofsted | Distance |
|---|---|---|---|
| Queen Alexandra College | Special Post 16 Institution | Good | 0.52 KM |
| Baskerville School | Foundation Special School | Good | 0.61 KM |
| Our Lady Of Fatima Catholic Primary School | Academy Converter | 0.87 KM | |
| Keystone Children'S Centre | Children's Centre | 0.99 KM | |
| Welsh House Farm Community School And Special Needs Resources Base | Community School | Good | 1.08 KM |
Images
Nearby Streets
| Name | Average Price | Average Sqft | Distance |
|---|---|---|---|
| Oak Close | £ 445,000 | 0 | 0.00 KM |
| Grosvenor Road | £ 469,618 | 0 | 0.00 KM |
| Wood Lane | £ 433,750 | 0 | 0.00 KM |
| Beech Road | £ 165,000 | 0 | 0.00 KM |
| Hamilton Avenue | £ 1,475,000 | 0 | 0.00 KM |
Nearby Transport
| Name | NLC | TLC | Distance |
|---|---|---|---|
| University (Birmingham) | 4504 | UNI | 3.86 KM |
| Smethwick Rolfe Street | 1150 | SMR | 3.86 KM |
| Selly Oak | 1105 | SLY | 4.36 KM |
| Smethwick Galton Bridge | 1114 | SGB | 4.61 KM |
| The Hawthorns | 4523 | THW | 4.90 KM |
Nearby Listings
| Address | Price | Type | Score | Distance |
|---|---|---|---|---|
| Hampton Court Road, Birmingham, B17 9AG | £ 350,000 | BUY | 7 / 10 | 0.00 KM |
| Hampton Court Road, Harborne, B17 | £ 330,000 | BUY | 6 / 10 | 0.00 KM |
| Hampton Court Road, Harborne, Birmingham, B17 9AG | £ 285,000 | BUY | 5 / 10 | 0.04 KM |
| Earls Court Road, Harborne, Birmingham, B17 9AH | £ 315,000 | BUY | 7 / 10 | 0.09 KM |
| Earls Court Road, Birmingham, West Midlands, B17 | £ 420,000 | BUY | 7 / 10 | 0.11 KM |
Nearby Properties
| Address | Price | Distance |
|---|---|---|
| 148 Hampton Court Road | £ 127,000 | 0.00 KM |
| 126 Hampton Court Road | £ 325,000 | 0.00 KM |
| 150 Hampton Court Road | £ 285,000 | 0.00 KM |
| 124 Hampton Court Road | £ 212,500 | 0.00 KM |
| 120 Hampton Court Road | £ 282,000 | 0.00 KM |